Lataa liitetiedosto [PDF]
Liitetiedosto
Vuokrataan toimistotilat - Helsinki
Pohjoinen Rautatiekatu 25, Kamppi, 00101 Helsinki #10840778
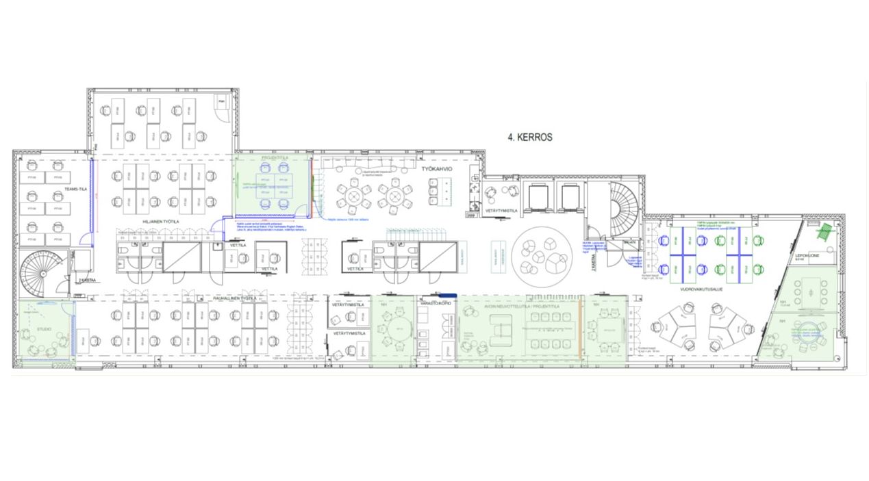
Vuokrataan kiinteistön 2-3. kerroksen tilat yhteensä n. 1255 m2, kerroskoot 617m2/638m2. Kiinteistö on remontoitu vuosina 2016-2017, joten tilojen tekniikka on uudenveroista. Tilat ovat muuntojoustavia vuokralaisen tarpeen mukaan ja niistä on upeat kaupunkinäkymät.
Osoite
Pohjoinen Rautatiekatu 25, 00101 Helsinki
Tilatyyppi
Toimistotilaa
636 m2
Tilajako
Jaettavissa
2.krs 617m2/3.krs 638m2
Pohjapiirros
Kiinteistö
Vuokrattavana vuonna 1999 valmistunut nykyaikainen kiinteistö yhdelle tai useammalle käyttäjälle, jäähdyttävä ilmastointi ym. mukavuudet. Talossa on lisäksi varastotiloja sekä autohalli. KATSO TALON PDF- ESITE linkistä oikealla. SOITA JA KYSY LISÄÄ!
Sijainti
Keskeinen sijainti Kampissa metroaseman lähellä.
Pysäköinti
Omassa hallissa 15 autopaikkaa.
Kulkuyhteydet
Kampin terminaali ja metro ovat lähellä
Muuta
Kiinteistön kellarissa on pyöräkellari pukuhuoneineen ja varastotilaa. Ensimmäisessä kerroksessa ovat kaikkien vuokralaisten käytössä olevat neuvottelu- ja kokoustilat.
Vapautuu
Heti
Rakennusvuosi
1999
Kerros
3 / 7
Energiatehokkuusluokka
Ei lain edellyttämää energiatodistusta
Näkyvällä paikalla
Jaettavissa
Hissi
Liitetiedostot
Ota yhteyttä
Senaatin Notariaatti Oy LKV
Lämmittäjänkatu 4 A
FIN-00880 Helsinki
Tel:
Näytä puhelinnumero
+358 9 7745 100
Pyydä lisätietoa
