Vuokrataan liiketilat - Kemi
Karjalahdenkatu 22, Karjalahti, 94600 Kemi #10840730
Kemin Karjalahden alueella sijaitseva myymälä-, liike- ja toimistokiinteistö, joka soveltuu monipuoliseen käyttöön. Rakennus on valmistunut v. 1972 ja peruskorjattu v. 2000. Kyseessä on hallityyppinen rakennus, jonka ensimmäinen kerros on myymälätilaa ja toisessa toimisto- ja sos.tilat. Rakennus on betonirakenteinen ja se on liitetty kaukolämpöön.
Sovi aika tarkemmalle tutustumiselle. Julia Hoikkala 050 411 8747 tai julia.hoikkala@op.fi.
Osoite
Karjalahdenkatu 22, 94600 Kemi
Tilatyyppi
Liiketilaa
1318 m2
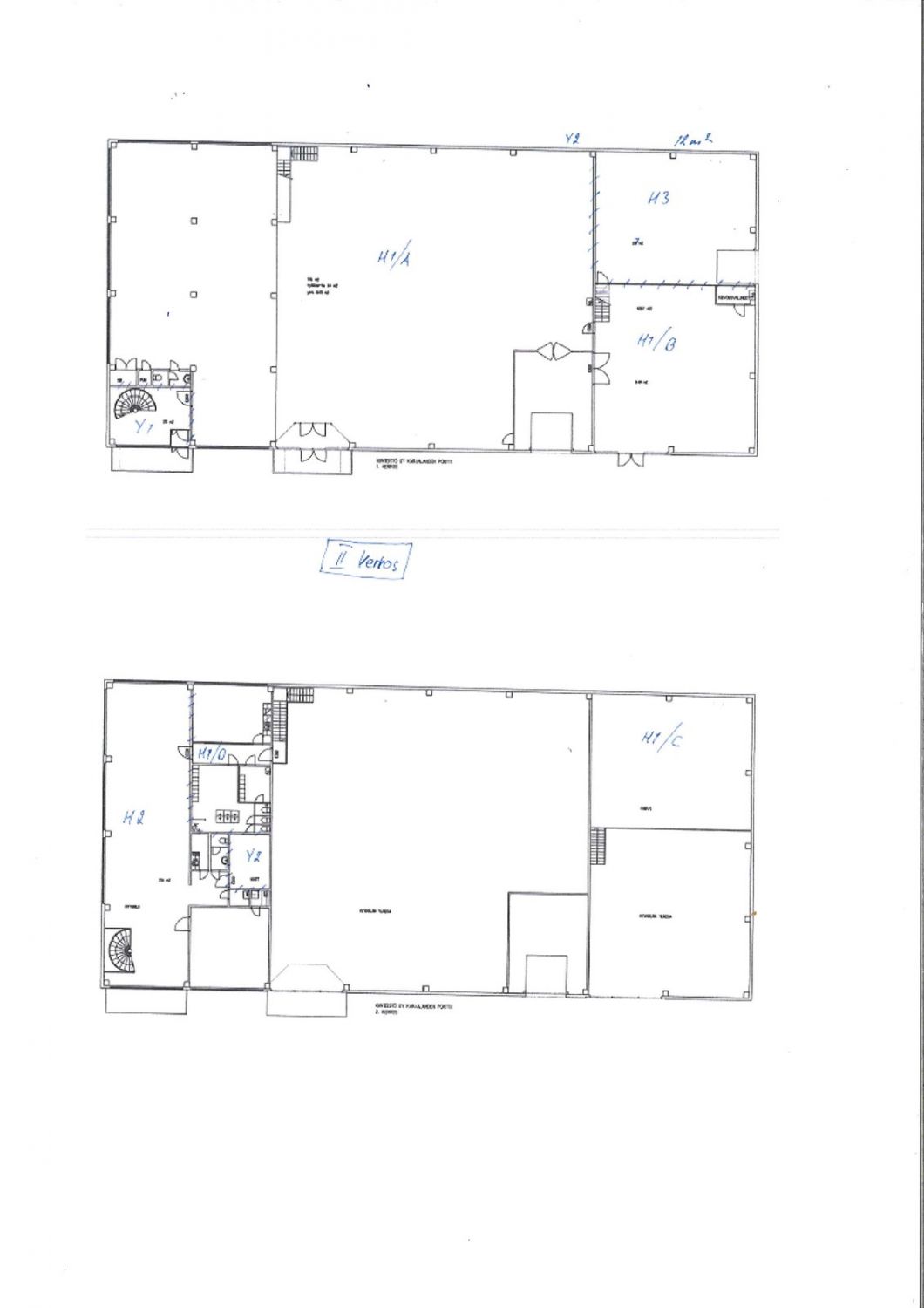
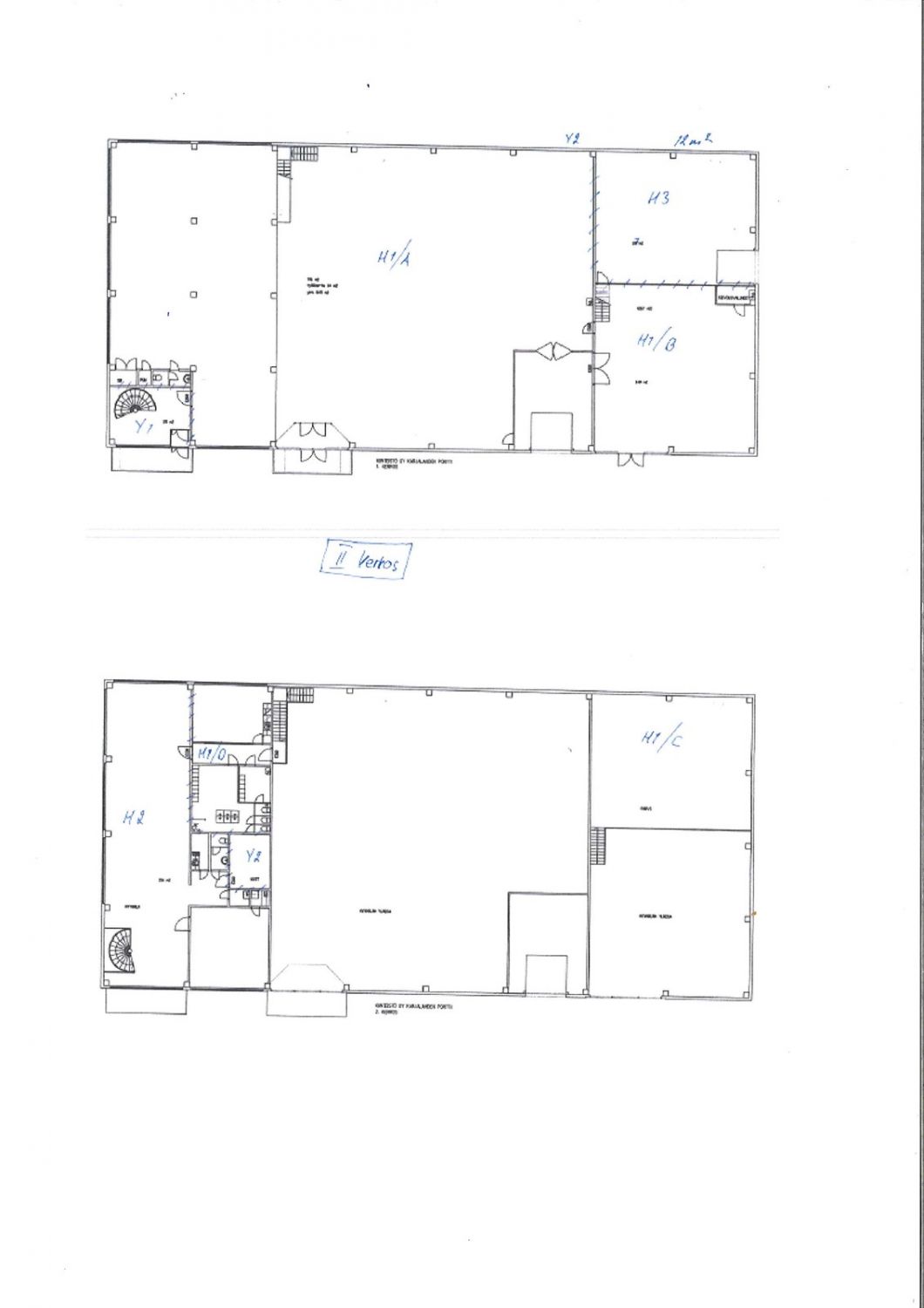
Tilajako
Jaettavissa
Tila on jaettavissa. Tilanjakoa voidaan tehdä ja myös vuokrata pienempi kokonaisuus,
Vuokra
6590.00
Kiinteistö
Kohteella ei ole lain edellyttämää energiatodistusta ja sen vuoksi energialuokka ei ole tiedossa
Sijainti
Asemakaava
Muuta
Kemin Karjalahden alueella sijaitseva myymälä-, liike- ja toimistokiinteistö, joka soveltuu monipuoliseen käyttöön. Rakennus on valmistunut v. 1972 ja peruskorjattu v. 2000. Kyseessä on hallityyppinen rakennus, jonka ensimmäinen kerros on myymälätilaa ja toisessa toimisto- ja sos.tilat. Rakennus on betonirakenteinen ja se on liitetty kaukolämpöön.
VUOKRAUS
- pääomavuokra 5,00 / m2 (vuokranantaja maksaa vakuutuksen, kiinteistöveron ja korjaukset)
- kokonaisvuokra 7,20 / m2 (vuokranantaja maksaa edellisten lisäksi lämmityksen ja normaalin käyttöveden)
- mikäli vuokrataan pienempi tila, tai tiloihin tehdään muutostöistä vuokranantajan kustannuksella, neuvotellaan vuokra / m2 erikseen.
MYYNTI
- kiinteistön osakekannan velaton hinta 680.000 euroa. Kysy lisätiedot tarvittaessa.
Sovi aika tarkemmalle tutustumiselle.
Muut tilat:
Monipuolinen tilanjako. Tutustu kuviin ja kysy tarvittaessa lisätiedot. Käynnit kohteessa sopimuksen mukaan.
VUOKRAUS
- pääomavuokra 5,00 / m2 (vuokranantaja maksaa vakuutuksen, kiinteistöveron ja korjaukset)
- kokonaisvuokra 7,20 / m2 (vuokranantaja maksaa edellisten lisäksi lämmityksen ja normaalin käyttöveden)
- mikäli vuokrataan pienempi tila, tai tiloihin tehdään muutostöistä vuokranantajan kustannuksella, neuvotellaan vuokra / m2 erikseen.
MYYNTI
- kiinteistön osakekannan velaton hinta 680.000 euroa. Kysy lisätiedot tarvittaessa.
Sovi aika tarkemmalle tutustumiselle.
Muut tilat:
Monipuolinen tilanjako. Tutustu kuviin ja kysy tarvittaessa lisätiedot. Käynnit kohteessa sopimuksen mukaan.
Vapautuu
Heti
Jaettavissa
Ota yhteyttä
OP Koti Pohjoinen Oy LKV
Toimitila- ja vuokravälitys
Lekatie 6
90140 OULU
Julia Hoikkala
Myyntineuvottelija, Toimitilat, LVV, Trad.
Näytä puhelinnumero
050 411 8747
Pyydä lisätietoa
