Vuokrataan/myydään toimistotilat, työtilat, muut tilat - Porvoo
Pellavapolku 3, 06450 Porvoo #10840637
Hyvä toimitila myytävänä ja vuokrattavana Porvoon Eestinmäessä!
Osoite
Pellavapolku 3, 06450 Porvoo
Tilatyyppi
Toimistotilaa
89 m2
Työtilaa
89 m2
Muuta tilaa
89 m2
Yhteensä
89 m2
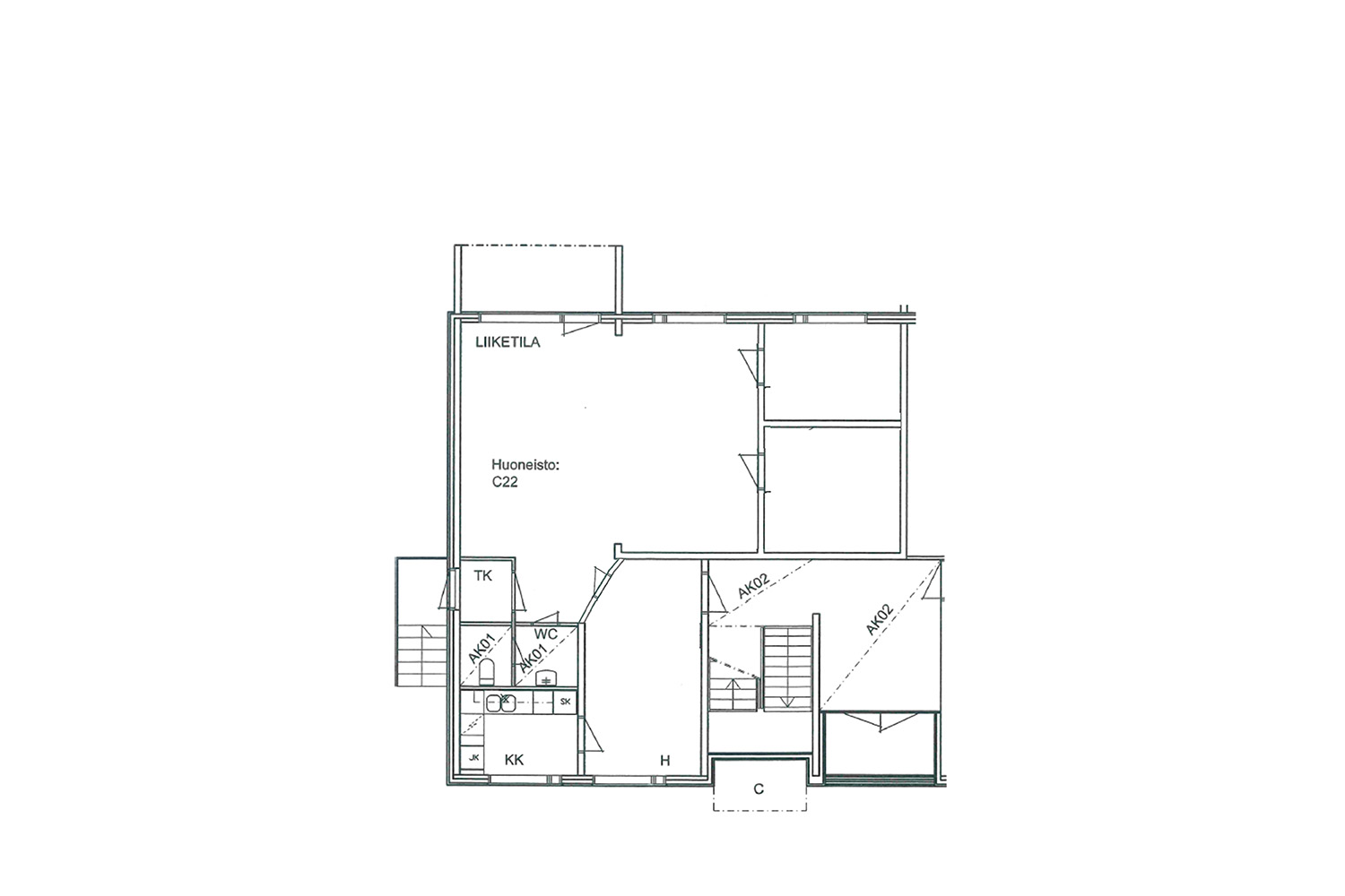
Pohjapiirros
Virtuaaliesittely
Vuokra
590 €/kk, alv-vapaa
Myyntihinta
59'000 € (velaton)
Muuta
Eestinmäessä on myytävänä ja vuokrattavana ensimmäisen kerroksen toimitila, joka sijaitsee kerrostaloyhtiön tiloissa. Tässä on erinomainen tila esim. tilitoimistolle, juristille, arkkitehdille, taiteilijalle tai asiakasvastaanottotilaksi hierojalle ja fysioterapeutille!
Tila ei sovellu kahvilaksi, ravintolaksi eikä asunnoksi.
Erinomaisessa kunnossa oleva toimitila on pinta-alaltaan noin 89 m²:n ja se on pääosin avointa tilaa. Tilan takaosassa on kaksi erillistä toimistohuonetta, etuosassa erillinen neuvotteluhuone/taukotila ja vastaremontoitu keittiö, ilmalämpöpumppu sekä yksi WC. Huoneistoon on oma sisäänkäynti rakennuksen eteläpuolelta muutaman porrasaskelman kautta. Sisäänkäynti ei ole esteetön. Huoneistossa siistit pinnat ja neutraalit värit sekä pienet ikkunat taloyhtiön etupihalle ja takapihalle. Ilmoituksessa on kuvia tilan ollessa käytössä sekä tyhjänä.
Mikäli uudella vuokralaisella on jotain muutostyötarpeita tilaan, on niistä sovittava erikseen ja muutostyökustannus vuokralaisen lukuun.
Vehreät, siistit piha-alueet ja lähistöllä ilmaisia parkkipaikkoja.
Rakennus sijaitsee Eestinmäen asuinalueella, josta nopea yhteys moottoriteille ja Porvoon keskustaan.
Erinomainen vaikkapa toimistoksi tai työtilaksi!
Kohdetiedot
Sijainti
Katuosoite: Pellavapolku 3, 06450 Porvoo
Kaupunginosa: Eestinmäki
Ympäristö: Asuinaluetta
Rakennus/huoneisto
Pinta-alat: Noin 89 m²
Kiinteistötyyppi: Kerrostalo
Rakennusvuosi: 1974
Energiatodistus: Ei lain vaatimaa energiatodistusta
Tilatyyppi: Taloyhtiön toimitila
Kunto, varusteet ja palvelut: Hyväkuntoiset tilat. Kaksi toimistohuonetta, avointa tilaa, neuvotteluhuone/taukotila, keittiö, wc, siivouskomero.
Vapautuu: Heti vapaa
Myyntihinta ja kulut
Velatonhinta: 59’000 €
Hoitovastike: 253 €/kk
Vesiennakko: 28 €/kk
Vuokrahinta ja kulut
Kuukausivuokra: 590 €/kk, alv-vapaa
Vesimaksu: 28 €/kk (vesiennakko)
Sähkö: Oma sähkösopimus
Lämmitys: Sisältyy vuokraan
Jätehuolto: Sisältyy vuokraan
Muut ehdot: Vakuus 3 kk:n vuokraa vastaava summa, minimisopimus 12 kk, luottotietojen oltava kunnossa
Tila ei sovellu kahvilaksi, ravintolaksi eikä asunnoksi.
Erinomaisessa kunnossa oleva toimitila on pinta-alaltaan noin 89 m²:n ja se on pääosin avointa tilaa. Tilan takaosassa on kaksi erillistä toimistohuonetta, etuosassa erillinen neuvotteluhuone/taukotila ja vastaremontoitu keittiö, ilmalämpöpumppu sekä yksi WC. Huoneistoon on oma sisäänkäynti rakennuksen eteläpuolelta muutaman porrasaskelman kautta. Sisäänkäynti ei ole esteetön. Huoneistossa siistit pinnat ja neutraalit värit sekä pienet ikkunat taloyhtiön etupihalle ja takapihalle. Ilmoituksessa on kuvia tilan ollessa käytössä sekä tyhjänä.
Mikäli uudella vuokralaisella on jotain muutostyötarpeita tilaan, on niistä sovittava erikseen ja muutostyökustannus vuokralaisen lukuun.
Vehreät, siistit piha-alueet ja lähistöllä ilmaisia parkkipaikkoja.
Rakennus sijaitsee Eestinmäen asuinalueella, josta nopea yhteys moottoriteille ja Porvoon keskustaan.
Erinomainen vaikkapa toimistoksi tai työtilaksi!
Kohdetiedot
Sijainti
Katuosoite: Pellavapolku 3, 06450 Porvoo
Kaupunginosa: Eestinmäki
Ympäristö: Asuinaluetta
Rakennus/huoneisto
Pinta-alat: Noin 89 m²
Kiinteistötyyppi: Kerrostalo
Rakennusvuosi: 1974
Energiatodistus: Ei lain vaatimaa energiatodistusta
Tilatyyppi: Taloyhtiön toimitila
Kunto, varusteet ja palvelut: Hyväkuntoiset tilat. Kaksi toimistohuonetta, avointa tilaa, neuvotteluhuone/taukotila, keittiö, wc, siivouskomero.
Vapautuu: Heti vapaa
Myyntihinta ja kulut
Velatonhinta: 59’000 €
Hoitovastike: 253 €/kk
Vesiennakko: 28 €/kk
Vuokrahinta ja kulut
Kuukausivuokra: 590 €/kk, alv-vapaa
Vesimaksu: 28 €/kk (vesiennakko)
Sähkö: Oma sähkösopimus
Lämmitys: Sisältyy vuokraan
Jätehuolto: Sisältyy vuokraan
Muut ehdot: Vakuus 3 kk:n vuokraa vastaava summa, minimisopimus 12 kk, luottotietojen oltava kunnossa
Vapautuu
Heti
Rakennusvuosi
1974
Kerros
1 / 3
Näkyvällä paikalla
Ota yhteyttä
Tilat.fi
KTM, LKV Antti Soivio
Näytä puhelinnumero
0400 446 553
OTM, LKV Riikka Tuominen
Näytä puhelinnumero
0400 551 790
KTM, LKV Maria-Sofia Puhakka
Näytä puhelinnumero
0400-150330
MBA Susanne Wallenius
Näytä puhelinnumero
0400-128877
Yrityksen virallinen nimi: LKV Tilat.fi Oy.
Toimitilojen välitykseen erikoistunut yritys.
Pyydä lisätietoa
