Vuokrataan toimistotilat - Helsinki
Fredrikinkatu 48, Kamppi, 00100 Helsinki #10840552
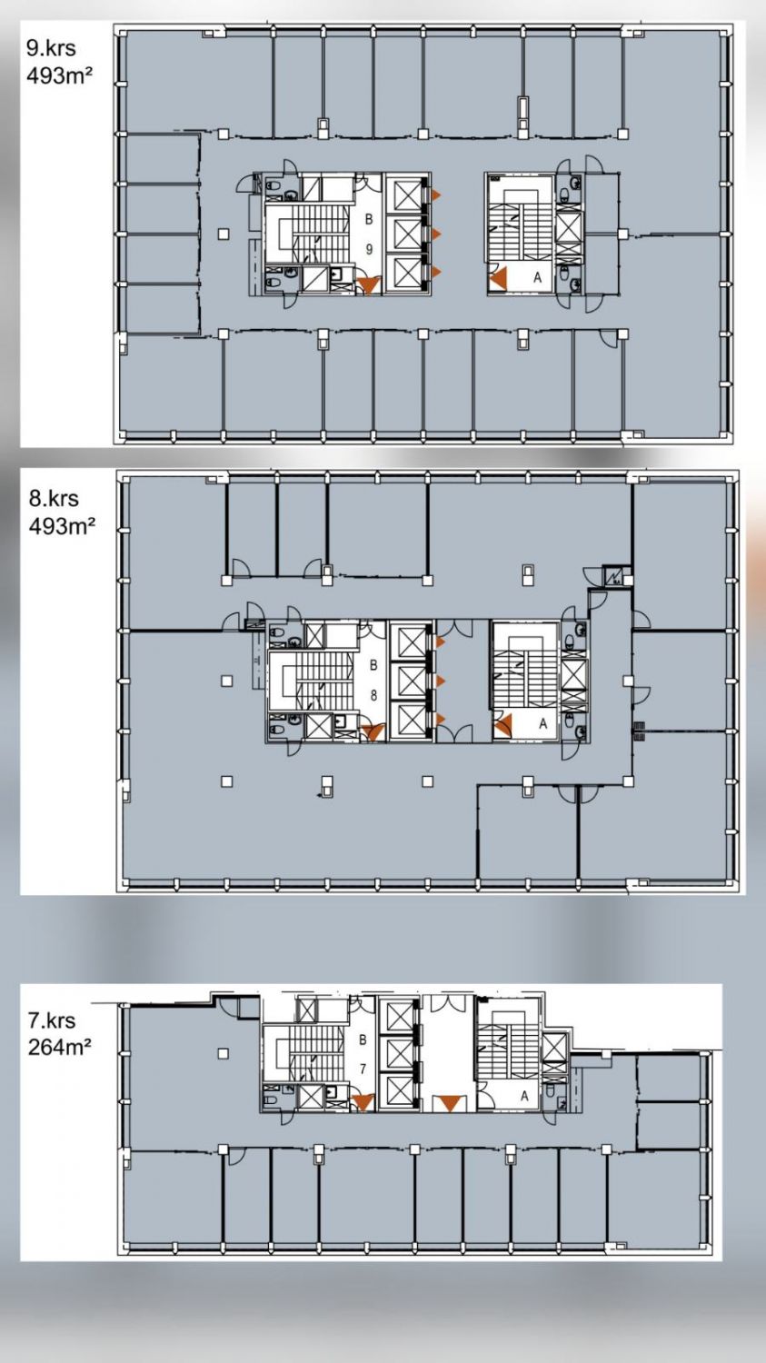
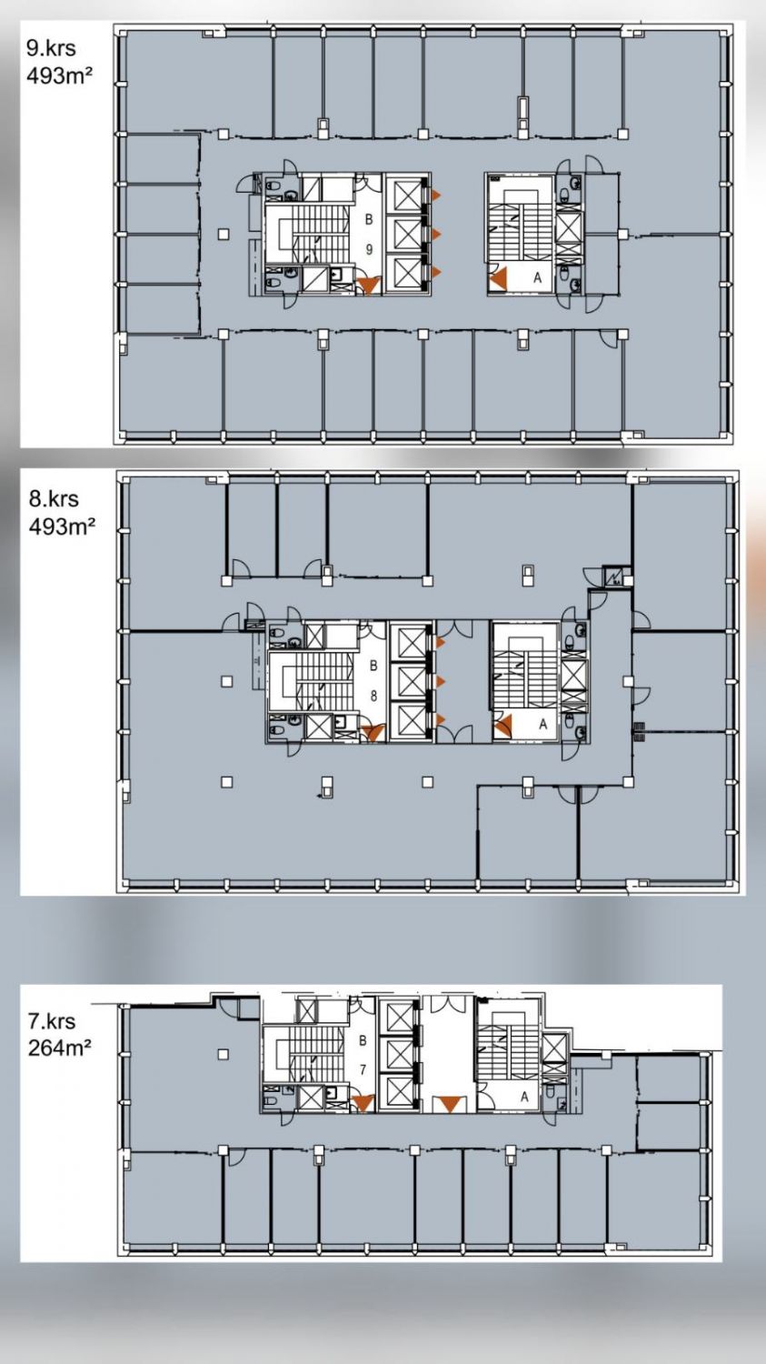
Vuokrataan Helsingin Kampista 7. - 9. kerroksen n. 1 250 m² toimistotila kokonaisuus. Tila käsittää n. puolet kerroksesta 7. (264 m²) sekä ylemmät kerrokset 8. ja 9. kokonaan.
Helsingin Autotalo tarjoaa yrityksellesi nykyaikaiset ja muuntojoustavat tilat, jotka soveltuvat erinomaisesti monenlaisiin tarpeisiin. Kiinteistö sijaitsee keskeisellä paikalla hyvien kulkuyhteyksien varrella, mikä tekee siitä helposti saavutettavan niin julkisilla kulkuvälineillä kuin omalla autolla.
Tilat ovat valoisia ja tehokkaasti suunniteltuja, ja kiinteistössä on kaikki tarvittavat palvelut sujuvaan arkeen. Läheltä löytyvät myös monipuoliset palvelut ja lounasvaihtoehdot, jotka tukevat työpäivän sujuvuutta.
Jos etsit toimistotilaa, joka tukee yrityksesi kasvua ja tarjoaa viihtyisän ympäristön, tämä kohde on erinomainen valinta. Kysy rohkeasti lisätietoja ja sovitaan käynti kohteella jo tänään!
Jaettavissa
Hissi
Hausala Oy
Erkkilänkatu 11, 33100 Tampere
Näytä puhelinnumero
050 472 7077
Mikko Ranta
Näytä puhelinnumero
050 360 6500
Mika Savikko
Näytä puhelinnumero
050 472 7077
