Vuokrataan toimistotilat - Helsinki
Paasivuorenkatu 3, Hakaniemi, 00530 Helsinki #10839823
Valoisa ja edustava 680 m² toimistokokonaisuus Hakaniemessä
Osoite
Paasivuorenkatu 3, 00530 Helsinki
Tilatyyppi
Toimistotilaa
680 m2
Tilajako
Jaettavissa
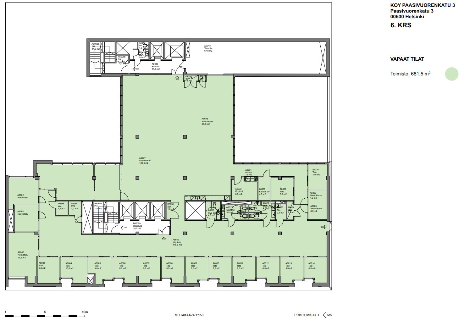
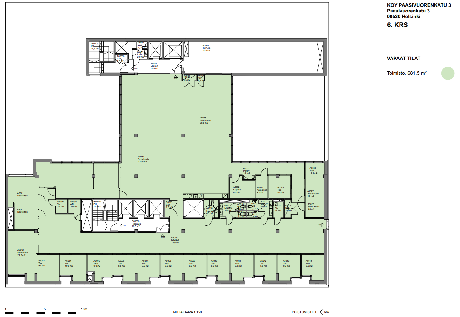
Pohjapiirros
Kiinteistö
Paasivuorenkadun 680 m² kokoinen toimistotila tarjoaa yritykselle toimivan ja arvokkaan ympäristön Helsingin Hakaniemen paraatipaikalla. Tilat yhdistävät avaruutta ja tehokkuutta, ja pohjaratkaisu mahdollistaa sekä tiimityöskentelyn että erillisten työhuoneiden ja neuvottelutilojen käytön. Ikkunanäkymät avautuvat kauniisti Paasivuorenpuistikkoon, mikä tuo työympäristöön valoisuutta ja viihtyisyyttä.
Rakennus on peruskorjattu vuonna 2011 sen alkuperäistä henkeä kunnioittaen. Historiallinen pankkisali, jyhkeä pääporrashuone ja luonnonkivilaatoitus ovat säilyneet, ja ne luovat tilaan arvokkuutta ja ainutlaatuista tunnelmaa. Samalla toimitilat on varustettu nykyaikaisella teknologialla, mikä takaa toimivuuden ja käyttömukavuuden. Kohteella on BREEAM Excellent -sertifikaatti ja se käyttää kotimaista tuulisähköä, joten kyseessä on myös vastuullinen ja energiatehokas ratkaisu.
Vuokralaiset pääsevät nauttimaan kiinteistön monipuolisista palveluista. Käytössä ovat aulapalvelut, laadukas lounasravintola ja kahvila sekä edustavat saunatilat. Lisäksi sisäpihalta löytyy viihtyisä talvipuutarha, ja pysäköintihalli tarjoaa autopaikkoja sekä sähköautojen latausmahdollisuuden. Wellness-palvelut tukevat henkilöstön hyvinvointia ja tekevät arjesta sujuvaa.
Rakennus on peruskorjattu vuonna 2011 sen alkuperäistä henkeä kunnioittaen. Historiallinen pankkisali, jyhkeä pääporrashuone ja luonnonkivilaatoitus ovat säilyneet, ja ne luovat tilaan arvokkuutta ja ainutlaatuista tunnelmaa. Samalla toimitilat on varustettu nykyaikaisella teknologialla, mikä takaa toimivuuden ja käyttömukavuuden. Kohteella on BREEAM Excellent -sertifikaatti ja se käyttää kotimaista tuulisähköä, joten kyseessä on myös vastuullinen ja energiatehokas ratkaisu.
Vuokralaiset pääsevät nauttimaan kiinteistön monipuolisista palveluista. Käytössä ovat aulapalvelut, laadukas lounasravintola ja kahvila sekä edustavat saunatilat. Lisäksi sisäpihalta löytyy viihtyisä talvipuutarha, ja pysäköintihalli tarjoaa autopaikkoja sekä sähköautojen latausmahdollisuuden. Wellness-palvelut tukevat henkilöstön hyvinvointia ja tekevät arjesta sujuvaa.
Sijainti
Sijainti Hakaniemessä tarjoaa erinomaiset kulkuyhteydet kaikkiin ilmansuuntiin. Metro- ja raitiovaunupysäkit ovat vain noin sadan metrin päässä, bussipysäkit löytyvät 50 metrin etäisyydeltä ja Helsingin päärautatieasema on noin 1,1 kilometrin päässä. Helsinki-Vantaan lentoasemalle on vain 18 kilometrin matka, mikä tekee tilasta helposti saavutettavan myös kansainvälisille toimijoille.
Vapautuu
Heti
Rakennusvuosi
1987
Saneerausvuosi
2010
Kerros
6 / 7
Energiatehokkuusluokka
Ei lain edellyttämää energiatodistusta
Näkyvällä paikalla
Jaettavissa
Hissi
Ota yhteyttä
ScanReal Oy LKV
Opus Business Park
Hitsaajankatu 24
00810 Helsinki
info@scanreal.fi
Puh:
Näytä puhelinnumero
020 730 8830
Sopivat toimitilat yhdellä otolla!
Kartoitamme toimitilatarpeesi ja etsimme yrityksellesi parhaiten sopivat vapaat toimitilat. Koska vuokranantajat maksavat palvelumme, on tämä yrityksellesi veloituksetonta.
OTA YHTEYTTÄ - SOVI NÄYTTÖ!
Kaikki kohteemme eivät ole netissä, kerro tilatarpeesi niin kartoitamme vaihtoehdot.
Palvelumme on tilanhakijalle ilmainen
Pyydä lisätietoa
