Vuokrataan toimistotilat - Helsinki
Paasivuorenkatu 3, Hakaniemi, 00530 Helsinki #10839821
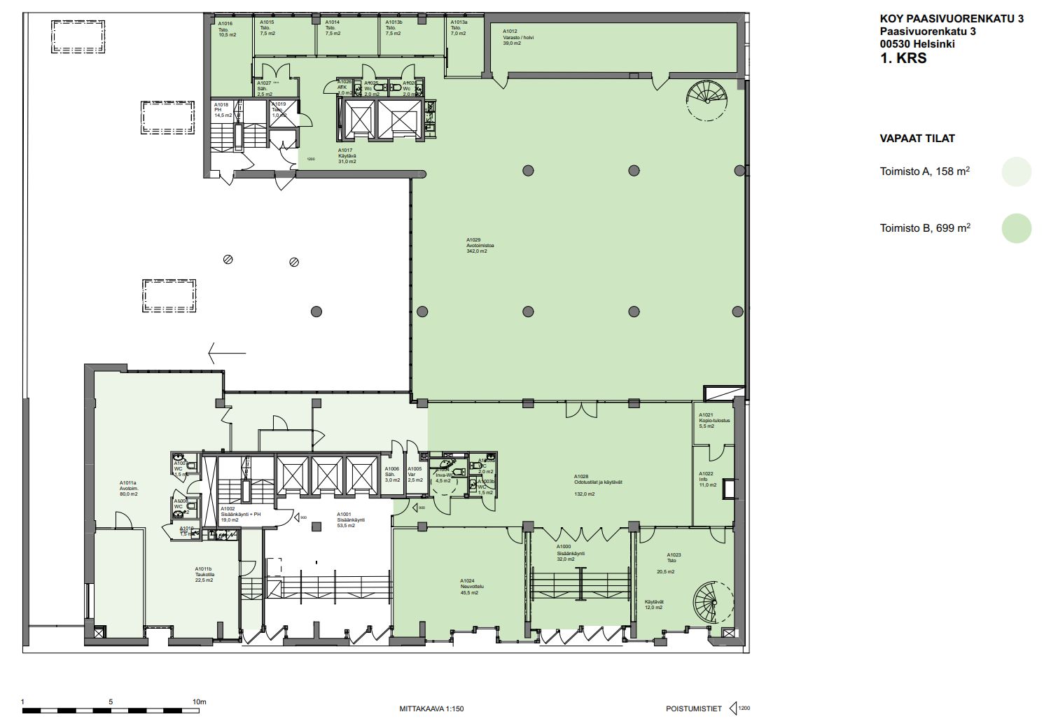
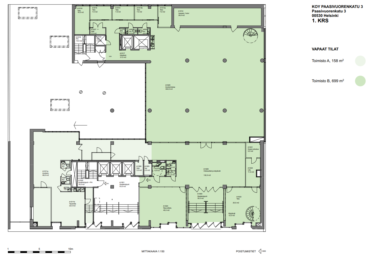
Uniikki 815,5 m² toimitila vanhassa pankkisalissa Hakaniemessä
Osoite
Paasivuorenkatu 3, 00530 Helsinki
Tilatyyppi
Toimistotilaa
815,5 m2
Tilajako
Jaettavissa
Pohjapiirros
Kiinteistö
Paasivuorenkadun ensimmäisessä kerroksessa sijaitseva 815,5 m² kokoinen toimitila tarjoaa yritykselle ainutlaatuiset ja edustavat puitteet. Tilaa hallitsee vanha pankkisali, jonka korkea huonekorkeus ja avara pohjaratkaisu tekevät siitä näyttävän ja monikäyttöisen kokonaisuuden. Kuvista poiketen tilan alkuperäinen marmorilattia on otettu osittain uudelleen esille, mikä korostaa rakennuksen arvokasta historiaa ja antaa tilalle erityisluonteen.
Kiinteistö on peruskorjattu vuonna 2011 sen alkuperäistä tunnelmaa kunnioittaen. Rakennuksen klassiset yksityiskohdat, kuten luonnonkivilaatoitus ja jyhkeä pääporrashuone, yhdistyvät moderniin toimitilateknologiaan. Kohteella on BREEAM Excellent -sertifikaatti ja se hyödyntää kotimaista tuulisähköä, mikä tekee siitä vastuullisen ja kestävän toimitilaratkaisun.
Vuokralaiset hyötyvät kiinteistön kattavista palveluista, jotka lisäävät arjen sujuvuutta ja edustavuutta. Rakennuksessa on aulapalvelut, laadukas lounasravintola ja kahvila sekä monipuoliset wellness-palvelut. Lisäksi vuokralaisten käytössä on sisäpihan viihtyisä talvipuutarha, edustavat saunatilat ja pysäköintihalli, jossa on sähköautojen latauspisteitä.
Kiinteistö on peruskorjattu vuonna 2011 sen alkuperäistä tunnelmaa kunnioittaen. Rakennuksen klassiset yksityiskohdat, kuten luonnonkivilaatoitus ja jyhkeä pääporrashuone, yhdistyvät moderniin toimitilateknologiaan. Kohteella on BREEAM Excellent -sertifikaatti ja se hyödyntää kotimaista tuulisähköä, mikä tekee siitä vastuullisen ja kestävän toimitilaratkaisun.
Vuokralaiset hyötyvät kiinteistön kattavista palveluista, jotka lisäävät arjen sujuvuutta ja edustavuutta. Rakennuksessa on aulapalvelut, laadukas lounasravintola ja kahvila sekä monipuoliset wellness-palvelut. Lisäksi vuokralaisten käytössä on sisäpihan viihtyisä talvipuutarha, edustavat saunatilat ja pysäköintihalli, jossa on sähköautojen latauspisteitä.
Sijainti
Sijainti Hakaniemessä tarjoaa erinomaiset kulkuyhteydet kaikkiin ilmansuuntiin. Metro- ja raitiovaunupysäkit ovat vain noin sadan metrin päässä, bussipysäkit löytyvät 50 metrin etäisyydeltä ja Helsingin päärautatieasema on noin 1,1 kilometrin päässä. Helsinki-Vantaan lentoasemalle on vain 18 kilometrin matka, mikä tekee tilasta helposti saavutettavan myös kansainvälisille toimijoille.
Vapautuu
Heti
Rakennusvuosi
1987
Saneerausvuosi
2010
Kerros
1 / 7
Energiatehokkuusluokka
Ei lain edellyttämää energiatodistusta
Katutasossa
Näkyvällä paikalla
Jaettavissa
Hissi
Ota yhteyttä
ScanReal Oy LKV
Opus Business Park
Hitsaajankatu 24
00810 Helsinki
info@scanreal.fi
Puh:
Näytä puhelinnumero
020 730 8830
Sopivat toimitilat yhdellä otolla!
Kartoitamme toimitilatarpeesi ja etsimme yrityksellesi parhaiten sopivat vapaat toimitilat. Koska vuokranantajat maksavat palvelumme, on tämä yrityksellesi veloituksetonta.
OTA YHTEYTTÄ - SOVI NÄYTTÖ!
Kaikki kohteemme eivät ole netissä, kerro tilatarpeesi niin kartoitamme vaihtoehdot.
Palvelumme on tilanhakijalle ilmainen
Pyydä lisätietoa
