Vuokrataan toimistotilat - Helsinki
Paasivuorenkatu 3, Hakaniemi, 00530 Helsinki #10839817
Valoisa ja monipuolinen 902 m² toimistokokonaisuus Hakaniemessä
Osoite
Paasivuorenkatu 3, 00530 Helsinki
Tilatyyppi
Toimistotilaa
902 m2
Tilajako
Jaettavissa
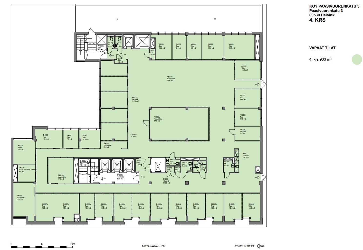
Pohjapiirros
Kiinteistö
Paasivuorenkadun neljännessä kerroksessa sijaitseva 902 m² toimisto tarjoaa yritykselle joustavat ja toimivat tilat. Pohjaratkaisu yhdistää avaraa avotilaa, erikokoisia työ- ja neuvotteluhuoneita sekä toimivat tukitilat. Tiloista löytyy keittiö ja taukotila, useita wc-tiloja sekä erillinen suihkullinen sosiaalitila. Suuret ikkunapinnat tuovat runsaasti luonnonvaloa ja näkymät avautuvat kauniisti Paasivuorenpuistikkoon, mikä tekee työympäristöstä miellyttävän ja inspiroivan.
Rakennus on peruskorjattu vuonna 2011 sen alkuperäistä tunnelmaa kunnioittaen. Historiallinen pankkisali, jyhkeä luonnonkivilaatoitus ja pääporrashuoneen arvokkuus on säilytetty, mutta tilat on varustettu modernilla toimitilateknologialla. Kohteella on BREEAM Excellent -sertifikaatti ja se käyttää kotimaista tuulisähköä, mikä tekee siitä kestävän ja vastuullisen toimitilaratkaisun.
Vuokralaisilla on käytettävissään monipuoliset kiinteistöpalvelut, jotka tukevat työpäivän sujuvuutta ja viihtyisyyttä. Rakennuksessa toimii aulapalvelu, laadukas lounasravintola ja kahvila, sekä wellness-palveluja. Lisäksi vuokralaisia palvelevat sisäpihan viihtyisä talvipuutarha, edustavat saunatilat sekä pysäköintihalli sähköauton latauspisteineen.
Rakennus on peruskorjattu vuonna 2011 sen alkuperäistä tunnelmaa kunnioittaen. Historiallinen pankkisali, jyhkeä luonnonkivilaatoitus ja pääporrashuoneen arvokkuus on säilytetty, mutta tilat on varustettu modernilla toimitilateknologialla. Kohteella on BREEAM Excellent -sertifikaatti ja se käyttää kotimaista tuulisähköä, mikä tekee siitä kestävän ja vastuullisen toimitilaratkaisun.
Vuokralaisilla on käytettävissään monipuoliset kiinteistöpalvelut, jotka tukevat työpäivän sujuvuutta ja viihtyisyyttä. Rakennuksessa toimii aulapalvelu, laadukas lounasravintola ja kahvila, sekä wellness-palveluja. Lisäksi vuokralaisia palvelevat sisäpihan viihtyisä talvipuutarha, edustavat saunatilat sekä pysäköintihalli sähköauton latauspisteineen.
Sijainti
Sijainti Hakaniemessä tarjoaa erinomaiset kulkuyhteydet kaikkiin ilmansuuntiin. Metro- ja raitiovaunupysäkit ovat vain noin sadan metrin päässä, bussipysäkit löytyvät 50 metrin etäisyydeltä ja Helsingin päärautatieasema on noin 1,1 kilometrin päässä. Helsinki-Vantaan lentoasemalle on vain 18 kilometrin matka, mikä tekee tilasta helposti saavutettavan myös kansainvälisille toimijoille.
Vapautuu
Heti
Rakennusvuosi
1987
Saneerausvuosi
2010
Kerros
2 / 7
Energiatehokkuusluokka
Ei lain edellyttämää energiatodistusta
Näkyvällä paikalla
Jaettavissa
Hissi
Ota yhteyttä
ScanReal Oy LKV
Opus Business Park
Hitsaajankatu 24
00810 Helsinki
info@scanreal.fi
Puh:
Näytä puhelinnumero
020 730 8830
Sopivat toimitilat yhdellä otolla!
Kartoitamme toimitilatarpeesi ja etsimme yrityksellesi parhaiten sopivat vapaat toimitilat. Koska vuokranantajat maksavat palvelumme, on tämä yrityksellesi veloituksetonta.
OTA YHTEYTTÄ - SOVI NÄYTTÖ!
Kaikki kohteemme eivät ole netissä, kerro tilatarpeesi niin kartoitamme vaihtoehdot.
Palvelumme on tilanhakijalle ilmainen
Pyydä lisätietoa
