Vuokrataan toimistotilat - Helsinki
Paasivuorenkatu 3, Hakaniemi, 00530 Helsinki #10839811
Tyylikäs 370 m² toimistokokonaisuus Hakaniemessä
Osoite
Paasivuorenkatu 3, 00530 Helsinki
Tilatyyppi
Toimistotilaa
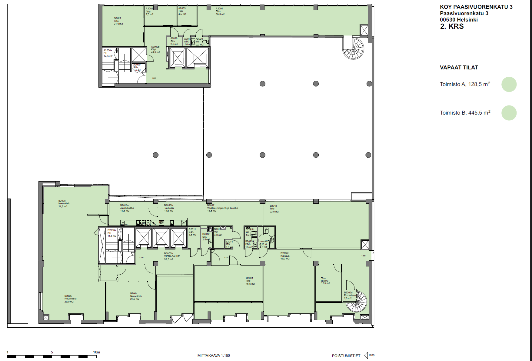
370 m2
Tilajako
Jaettavissa
Pohjapiirros
Kiinteistö
Paasivuorenkadun toisessa kerroksessa sijaitseva 370 m² kokoinen toimitila tarjoaa toimivat ja edustavat puitteet yrityksen tarpeisiin. Pohjaratkaisu yhdistää avotilaa ja useita erikokoisia työ- ja neuvotteluhuoneita, jotka tukevat sekä tiimityötä että rauhallista työskentelyä. Tilasta löytyy myös keittiö- ja taukotila sekä useita wc-tiloja. Suuret ikkunat tuovat tiloihin runsaasti luonnonvaloa ja avautuvat kauniisti Paasivuorenpuistikkoon.
Rakennus on peruskorjattu vuonna 2011 sen alkuperäistä tunnelmaa kunnioittaen. Kiinteistön arvokas arkkitehtuuri, kuten pankkisalin ja pääporrashuoneen luonnonkivilaatoitus, on säilytetty ja yhdistetty moderniin toimitilateknologiaan. Kohteelle on myönnetty BREEAM Excellent -ympäristösertifikaatti, ja se käyttää kotimaista tuulisähköä, mikä tekee siitä vastuullisen ja energiatehokkaan toimitilaratkaisun.
Vuokralaisilla on käytössään kiinteistön monipuoliset palvelut, jotka lisäävät arjen sujuvuutta ja viihtyisyyttä. Aulapalvelut, laadukas lounasravintola ja kahvila sekä wellness-palvelut ovat helposti saatavilla. Lisäksi kiinteistössä on sisäpihan viihtyisä talvipuutarha, edustavat saunatilat sekä pysäköintihalli, jossa on sähköautojen latauspisteitä.
Rakennus on peruskorjattu vuonna 2011 sen alkuperäistä tunnelmaa kunnioittaen. Kiinteistön arvokas arkkitehtuuri, kuten pankkisalin ja pääporrashuoneen luonnonkivilaatoitus, on säilytetty ja yhdistetty moderniin toimitilateknologiaan. Kohteelle on myönnetty BREEAM Excellent -ympäristösertifikaatti, ja se käyttää kotimaista tuulisähköä, mikä tekee siitä vastuullisen ja energiatehokkaan toimitilaratkaisun.
Vuokralaisilla on käytössään kiinteistön monipuoliset palvelut, jotka lisäävät arjen sujuvuutta ja viihtyisyyttä. Aulapalvelut, laadukas lounasravintola ja kahvila sekä wellness-palvelut ovat helposti saatavilla. Lisäksi kiinteistössä on sisäpihan viihtyisä talvipuutarha, edustavat saunatilat sekä pysäköintihalli, jossa on sähköautojen latauspisteitä.
Sijainti
Sijainti Hakaniemessä tarjoaa erinomaiset kulkuyhteydet kaikkiin ilmansuuntiin. Metro- ja raitiovaunupysäkit ovat vain noin sadan metrin päässä, bussipysäkit löytyvät 50 metrin etäisyydeltä ja Helsingin päärautatieasema on noin 1,1 kilometrin päässä. Helsinki-Vantaan lentoasemalle on vain 18 kilometrin matka, mikä tekee tilasta helposti saavutettavan myös kansainvälisille toimijoille.
Vapautuu
Heti
Rakennusvuosi
1987
Saneerausvuosi
2010
Kerros
2 / 7
Energiatehokkuusluokka
Ei lain edellyttämää energiatodistusta
Näkyvällä paikalla
Jaettavissa
Hissi
Ota yhteyttä
ScanReal Oy LKV
Opus Business Park
Hitsaajankatu 24
00810 Helsinki
info@scanreal.fi
Puh:
Näytä puhelinnumero
020 730 8830
Sopivat toimitilat yhdellä otolla!
Kartoitamme toimitilatarpeesi ja etsimme yrityksellesi parhaiten sopivat vapaat toimitilat. Koska vuokranantajat maksavat palvelumme, on tämä yrityksellesi veloituksetonta.
OTA YHTEYTTÄ - SOVI NÄYTTÖ!
Kaikki kohteemme eivät ole netissä, kerro tilatarpeesi niin kartoitamme vaihtoehdot.
Palvelumme on tilanhakijalle ilmainen
Pyydä lisätietoa
