Vuokrataan toimistotilat - Oulu
Vanhantullinkatu 3, Etu-Lyötty, 90100 Oulu #10839723
Osoite
Vanhantullinkatu 3, 90100 Oulu
Tilatyyppi
Toimistotilaa
110 m2
Muuta
Vuokrataan toimistotilaa Vanhantullinkatu 3, 90100 Oulu.
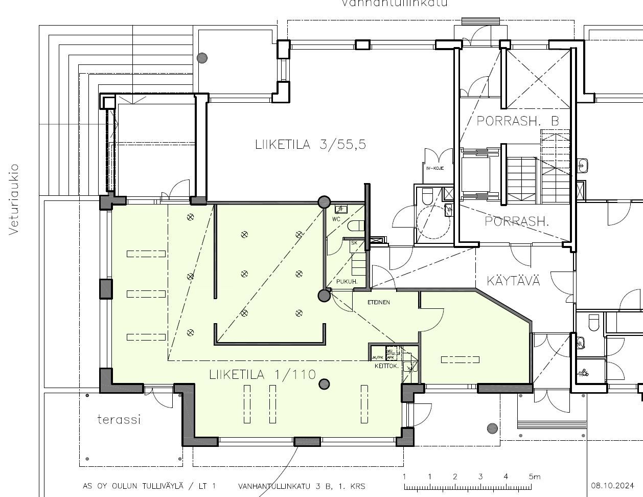
Huoneisto sijaitsee rakennuksen 1. kerroksessa. Sisäänkäynti rakennuksen porrashuoneen kautta (hissi on). Huoneistoon on myös kolme muuta sisäänkäyntiä (ktso pohjakuva), mahdollista myös kadun puolelta asiakassisäänkäyntinä rakennuksen nurkalla olevasta ovesta.
Pinta-ala 110 m2.
Huoneistossa on 1 huone, keittiö/neuvottelutila sekä toinen avotila. Keskeltä huoneisto on jaettu kevyellä väliseinällä (avoin ylhäältä).
Huoneistossa on koneellinen tulo- ja poistoilmanvaihto. Pääasiallinen näkymä on Veturinaukion puolelle.
Vuokralainen vastaa käyttösähköstä mittauksen mukaan (oma sopimus), vesi- ja jätevesimaksuu kulutuksen mukaan. Vuokralainen vastaa tilojen siivouksesta, valaisinhuollosta sekä kulunvalvonta- ja vartiointikuluistaan. Toimistojäte sisältyy vuokraan.
Liikenteellisesti rakennus on hyvin saavutettavissa henkilöautoilla, rakennuksen edustalla kadunvarrella asiakaspysäköintipaikkoja (p-kiekkopaikkoja) samoin kuin läheisellä Kansankadulla. Oulun ydinkeskusta on kävelymatkan etäisyydellä ja rakennuksen lähistöltä Rautatienkatua pitkin kulkee Citybussin reitti ja alikulku Taka-Lyötyn puolelle on ihan vieressä.
1 kpl autopaikka vuorkattavissa talon alta autokellarista.
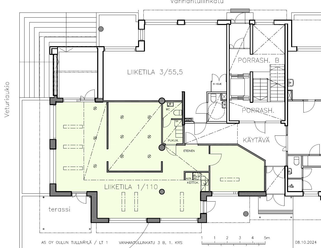
Huoneisto sijaitsee rakennuksen 1. kerroksessa. Sisäänkäynti rakennuksen porrashuoneen kautta (hissi on). Huoneistoon on myös kolme muuta sisäänkäyntiä (ktso pohjakuva), mahdollista myös kadun puolelta asiakassisäänkäyntinä rakennuksen nurkalla olevasta ovesta.
Pinta-ala 110 m2.
Huoneistossa on 1 huone, keittiö/neuvottelutila sekä toinen avotila. Keskeltä huoneisto on jaettu kevyellä väliseinällä (avoin ylhäältä).
Huoneistossa on koneellinen tulo- ja poistoilmanvaihto. Pääasiallinen näkymä on Veturinaukion puolelle.
Vuokralainen vastaa käyttösähköstä mittauksen mukaan (oma sopimus), vesi- ja jätevesimaksuu kulutuksen mukaan. Vuokralainen vastaa tilojen siivouksesta, valaisinhuollosta sekä kulunvalvonta- ja vartiointikuluistaan. Toimistojäte sisältyy vuokraan.
Liikenteellisesti rakennus on hyvin saavutettavissa henkilöautoilla, rakennuksen edustalla kadunvarrella asiakaspysäköintipaikkoja (p-kiekkopaikkoja) samoin kuin läheisellä Kansankadulla. Oulun ydinkeskusta on kävelymatkan etäisyydellä ja rakennuksen lähistöltä Rautatienkatua pitkin kulkee Citybussin reitti ja alikulku Taka-Lyötyn puolelle on ihan vieressä.
1 kpl autopaikka vuorkattavissa talon alta autokellarista.
Vapautuu
Kysy
Kerros
1
Ota yhteyttä
Catella Property Oy
Kirkkokatu 6, 5. krs, 90100 OULU
Näytä puhelinnumero
010 5220 100
Pekka Laurila-Harju
Näytä puhelinnumero
010 5220 603
Pyydä lisätietoa
