Vuokrataan toimistotilat - Helsinki
Siltasaarenkatu 8-10, Hakaniemi, 00530 Helsinki #10839457
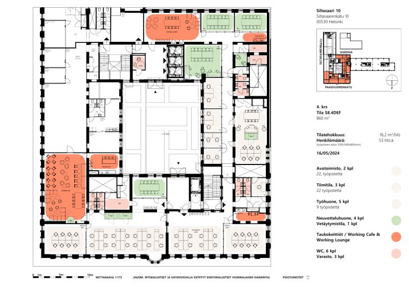
Vuokrattavana muuttovalmis 4. kerroksen 860 m2:n valoisa toimistotila
Hakaniemessä täysin saneeraatussa kohteessa Hakaniemen torin laidalla. Tilasta löytyy useita neuvotteluhuoneita ja vetäytymistiloja, suuri keittiölounge, tiimitilaa, avotoimistotilaa, yhteisöllinen työskentelyalue sekä wc-tilat. SILTASAARI 10 on Hakaniemen uusi liike-elämän ja luovan toimintaympäristön kohtaamiskeskus inspiroivassa ja kulttuurihistoriallisesti arvokkaassa kiinteistössä. Soita ja sovi yrityksellesi esittely ja tarpeitasi ja toiveitasi vastaava projektisuunnittelu, vuokrauspalvelumme on tilanhakijoille maksuton!
Uudiskohde
Jaettavissa
Liitetiedostot
Senaatin Notariaatti Oy LKV
Lämmittäjänkatu 4 A
FIN-00880 Helsinki
Tel:
Näytä puhelinnumero
+358 9 7745 100
