Vuokrataan tuotantotilat, varastotilat, työtilat, autotalli/-hallitilat - Porvoo
Puusepänkaarre 7, 06150 Porvoo #10839082
Suuri hallitila Porvoon Kaupunginhaasta!
Osoite
Puusepänkaarre 7, 06150 Porvoo
Tilatyyppi
Tuotantotilaa
480 m2
Varastotilaa
480 m2
Työtilaa
480 m2
Autotalli/-hallitilaa
480 m2
Yhteensä
480 m2
Virtuaaliesittely
Vuokra
Alkaen 6 €/m²/kk + alv
Muuta
Kaupunginhaan uudella ja kasvavalla yritysalueella on monenlaisille yrityksille sopiva hallitila vuokrattavana. Hyvä sijainti aivan Porvoonväylän kupeessa.
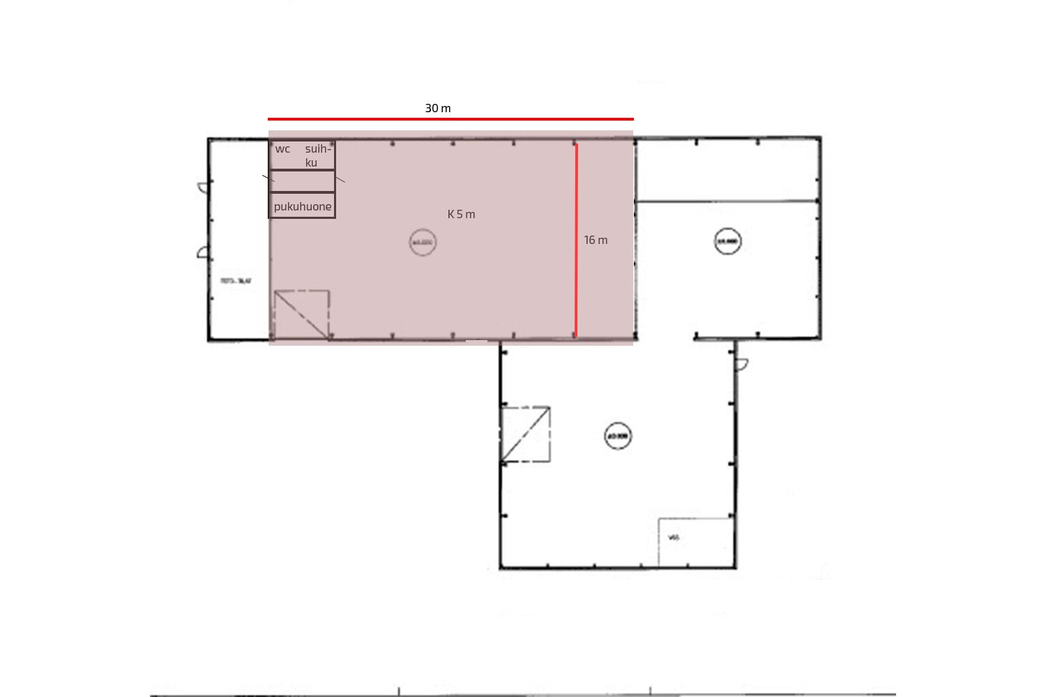
Korkea ja hyvin valaistu hallitila on noin 480 m² ja hallitilan yhteydessä on wc, pukuhuone ja suihku. Tilat voidaan jakaa erikseen sovitusti. Hallissa on tilava 81 m² parvi toimistotilojen päällä varastointia varten. Hallissa on korkea nosto-ovi (K4,3 m x L4,3 m) käyntiovella ja kaksi lattiakaivoa. Korkeus hallissa on korkeimmassa kohdassa noin 5,7 metriä ja matalimmassa kohdassa noin 4,3 metriä. Hallin päädyssä yhteiskäytössä viereisen toimistotilan kanssa wc -ja suihkutilat sekä pukuhuone.
Lämmitys, sähkö- ja vesi mittauksen mukaan. Siisti ja asfaltoitu piha-alue, mistä löytyvät parkkipaikat. Parkkipaikkojen määrästä sovittava erikseen.
Tila vuokrataan ensisijaisesti kokonaisuutena, mutta hallitila on myös mahdollista vuokrata noin 250m² osissa, jolloin kuukausivuokrahinta on 7 €/m² + alv.
Tästä monenlaisille yrityksille hyvät toimitilat!
Kohdetiedot
Sijainti
Katuosoite: Puusepänkaarre 7, 06150 Porvoo
Kaupunginosa: Kaupunginhaka
Ympäristö: Teollisuusalue
Rakennus/huoneisto
Pinta-alat: Noin 480 m²
Huoneistoselitelmä: Hallitila
Kunto, varusteet ja palvelut: Hyväkuntoinen tila. Lattiakaivot, nosto-ovi, vesipiste, wc – ja suihkutilat sekä voimavirta
Pysäköinti: Pihalla
Vapautuu: 1.12.2025
Vuokrahinta ja kulut
Kuukausivuokra: Alkaen 6 €/m² + alv
Sähkömaksu: Kulutuksen mukaan
Vesimaksu: Kulutuksen mukaan
Lämmitys: Kaukolämmöllä kulutuksen mukaan
Muuta: Vakuus 3kk vuokraa vastaava summa, minimisopimus 12kk ja luottotietojen on oltava kunnossa
Korkea ja hyvin valaistu hallitila on noin 480 m² ja hallitilan yhteydessä on wc, pukuhuone ja suihku. Tilat voidaan jakaa erikseen sovitusti. Hallissa on tilava 81 m² parvi toimistotilojen päällä varastointia varten. Hallissa on korkea nosto-ovi (K4,3 m x L4,3 m) käyntiovella ja kaksi lattiakaivoa. Korkeus hallissa on korkeimmassa kohdassa noin 5,7 metriä ja matalimmassa kohdassa noin 4,3 metriä. Hallin päädyssä yhteiskäytössä viereisen toimistotilan kanssa wc -ja suihkutilat sekä pukuhuone.
Lämmitys, sähkö- ja vesi mittauksen mukaan. Siisti ja asfaltoitu piha-alue, mistä löytyvät parkkipaikat. Parkkipaikkojen määrästä sovittava erikseen.
Tila vuokrataan ensisijaisesti kokonaisuutena, mutta hallitila on myös mahdollista vuokrata noin 250m² osissa, jolloin kuukausivuokrahinta on 7 €/m² + alv.
Tästä monenlaisille yrityksille hyvät toimitilat!
Kohdetiedot
Sijainti
Katuosoite: Puusepänkaarre 7, 06150 Porvoo
Kaupunginosa: Kaupunginhaka
Ympäristö: Teollisuusalue
Rakennus/huoneisto
Pinta-alat: Noin 480 m²
Huoneistoselitelmä: Hallitila
Kunto, varusteet ja palvelut: Hyväkuntoinen tila. Lattiakaivot, nosto-ovi, vesipiste, wc – ja suihkutilat sekä voimavirta
Pysäköinti: Pihalla
Vapautuu: 1.12.2025
Vuokrahinta ja kulut
Kuukausivuokra: Alkaen 6 €/m² + alv
Sähkömaksu: Kulutuksen mukaan
Vesimaksu: Kulutuksen mukaan
Lämmitys: Kaukolämmöllä kulutuksen mukaan
Muuta: Vakuus 3kk vuokraa vastaava summa, minimisopimus 12kk ja luottotietojen on oltava kunnossa
Vapautuu
Heti
Katutasossa
Näkyvällä paikalla
Ota yhteyttä
Tilat.fi
KTM, LKV Antti Soivio
Näytä puhelinnumero
0400 446 553
OTM, LKV Riikka Tuominen
Näytä puhelinnumero
0400 551 790
KTM, LKV Maria-Sofia Puhakka
Näytä puhelinnumero
0400-150330
MBA Susanne Wallenius
Näytä puhelinnumero
0400-128877
LKV Tilat.fi Oy on toimitilojen välitykseen erikoistunut yritys.
http://www.tilat.fiPyydä lisätietoa
