Vuokrataan toimistotilat - Helsinki
Hämeentie 11, Sörnäinen, 00530 Helsinki #10838563
Vuokrataan korkelaatuisilla materiaaleilla tyylikkäästi saneerattu, pääosin erikokoisiin huoneisiin jaettu persoonallinen toimistotila. Tila on hienossa kunnossa, vuokranantaja tekee tilaan vuokralaisen toiminnan edellyttämät muutostyöt pohjaratkaisun ym. suhteen. Ota yhteyttä ja sovi esittely, vuokrauspalvelumme on tilanhakijoille maksuton.
Osoite
Hämeentie 11, 00530 Helsinki
Tilatyyppi
Toimistotilaa
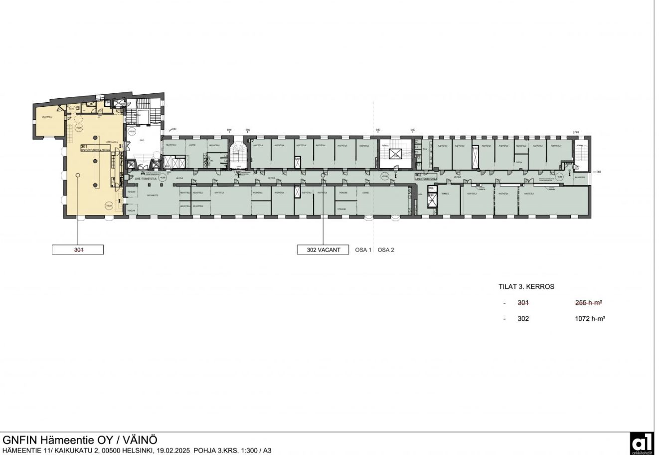
1072 m2
Tilajako
Jaettavissa
Tila on jaettavissa kahteen osaan, kysy jakomahdollisuuksia tarepeesi mukaan.
Pohjapiirros
Kiinteistö
Hämeentie 11 tunnetaan entisenä Osuusliike Elannon pääkonttorina. Rakennuksen on suunnitellut Väinö Vähäkallio ja se valmistui v.1927. Helsingin kaupungin Opetusvirasto, muutti tiloista pois joulukuussa 2016, jonka jälkeen kiinteistössä on tehty täydellinen saneeraus. Talossa yhdistyy 1920-luvun arkkitehtuuri ja 2020-luvun upea talotekniikka ja vastikään saneeratut toimitilat.
Sijainti
Kiinteistö sijaitsee Hämeentien ja Kaikukadun kulmassa.
Kulkuyhteydet
Hakaniemen ja Sörnäisen metropysäkit ovat vain noin 500 metrin päässä. Raitiovaunupysäkit ovat aivan rakennuksen vieressä ja bussilla pääsee keskustaan viidessä minuutissa.
Vapautuu
Heti
Rakennusvuosi
1927
Saneerausvuosi
2017
Kerros
3
Energiatehokkuusluokka
Ei lain edellyttämää energiatodistusta
Näkyvällä paikalla
Jaettavissa
Hissi
Liitetiedostot
Ota yhteyttä
Senaatin Notariaatti Oy LKV
Lämmittäjänkatu 4 A
FIN-00880 Helsinki
Tel:
Näytä puhelinnumero
+358 9 7745 100
Pyydä lisätietoa
