Myydään toimistotilat, liiketilat, työtilat, muut tilat - Porvoo
Linnankoskenkatu 16, 06100 Porvoo #10838556
Myydään liike-/vastaanotto tai työ-/toimistotila Porvoossa! Velaton hinta: 69’000 €
Osoite
Linnankoskenkatu 16, 06100 Porvoo
Tilatyyppi
Toimistotilaa
28 m2
Liiketilaa
28 m2
Työtilaa
28 m2
Muuta tilaa
28 m2
Yhteensä
28 m2
Virtuaaliesittely
Myyntihinta
Velaton hinta 69’000 €
Muuta
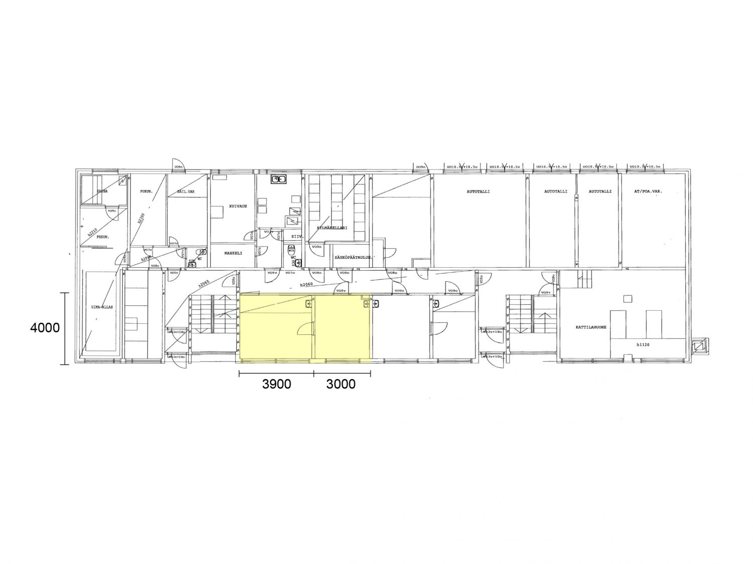
Porvoon keskustassa on myytävänä asuinkerrostalon katutasossa sijaitseva erinomaisessa kunnossa oleva huoneisto (pohjakuvassa keltaisella värillä), joka käy loistavasti työhuoneeksi, toimistoksi tai vastaanotto/liiketilaksi.
Tila myydään vuokrattuna (toistaiseksi voimassa olevalla sopimuksella).
Tila on toiminut kampaamona ja soveltuu erinomaisesti esimerkiksi kampaajalle ja kosmetologille vaikka yhteiseksi toimitilaksi tai se on muunneltavissa moneen käyttötarkoitukseen. Tiloissa on 2 erillistä huonetta joissa molemmissa on hyvän kokoiset ikkunat, omat vesipisteet sekä sisäänkäynnit tarpeen vaatiessa. Lisäksi tilan hyvään varusteluun kuuluu integroitu jääkaappi/pakastin ja integroitu pyykinpesukone.
Huoneisto on pinta-alaltaan 28-neliöinen ja sisätilan korkeus on 2,4 metriä, muut mitat näkyvät pohjakuvassa.
Tiloissa on koneellinen poistoilma. Huoneistolla on yhteiskäyttöinen wc aivan tilaa vastapäätä. Mikäli tila vuokrataan, vastaa vuokralainen sähköstä ja vesimaksuista. Lämmitys sisältyy vuokraan.
Kadun varressa on ilmaisia pysäköintipaikkoja. Rakennus on erinomaisella paikalla. Kaikki Porvoon keskustan palvelut ovat lähellä.
Toimitila on keskustan ja helppojen kulkuyhteyksien tuntumassa!
Kohdetiedot
Sijainti
Katuosoite: Linnankoskenkatu 16, 06100 Porvoo
Kaupunginosa: Keskusta
Ympäristö: Asuinrakennuksia
Tontti
Pinta-ala: 1’851,40 m²
Omistusmuoto: Oma
Rakennus/huoneisto
Pinta-ala: Noin 28 m²
Kiinteistötyyppi: Asuinkerrostalo
Rakennusvuosi: 1968
Tilatyyppi: Työ-, toimisto- tai liiketila
Kunto, varusteet ja palvelut: Hyvä kunto, kaksi huonetta, kaksi vesipistettä, yhteiskäyttöinen wc, keskustan palvelut lähellä
Energiatodistus: E2013
Lämmitys: Kaukolämpö (sis. vastikkeeseen)*
Vapautuminen: Myydään vuokrattuna
Myyntihinta ja kulut
Myyntihinta: 58’458,21 €
Velkaosuus: 10’541,79 €
Velatonhinta: 69’000 €
Hoitovastike: 124,53 €/kk
Rahoitusvastike: 157,73 €/kk
Tila myydään vuokrattuna (toistaiseksi voimassa olevalla sopimuksella).
Tila on toiminut kampaamona ja soveltuu erinomaisesti esimerkiksi kampaajalle ja kosmetologille vaikka yhteiseksi toimitilaksi tai se on muunneltavissa moneen käyttötarkoitukseen. Tiloissa on 2 erillistä huonetta joissa molemmissa on hyvän kokoiset ikkunat, omat vesipisteet sekä sisäänkäynnit tarpeen vaatiessa. Lisäksi tilan hyvään varusteluun kuuluu integroitu jääkaappi/pakastin ja integroitu pyykinpesukone.
Huoneisto on pinta-alaltaan 28-neliöinen ja sisätilan korkeus on 2,4 metriä, muut mitat näkyvät pohjakuvassa.
Tiloissa on koneellinen poistoilma. Huoneistolla on yhteiskäyttöinen wc aivan tilaa vastapäätä. Mikäli tila vuokrataan, vastaa vuokralainen sähköstä ja vesimaksuista. Lämmitys sisältyy vuokraan.
Kadun varressa on ilmaisia pysäköintipaikkoja. Rakennus on erinomaisella paikalla. Kaikki Porvoon keskustan palvelut ovat lähellä.
Toimitila on keskustan ja helppojen kulkuyhteyksien tuntumassa!
Kohdetiedot
Sijainti
Katuosoite: Linnankoskenkatu 16, 06100 Porvoo
Kaupunginosa: Keskusta
Ympäristö: Asuinrakennuksia
Tontti
Pinta-ala: 1’851,40 m²
Omistusmuoto: Oma
Rakennus/huoneisto
Pinta-ala: Noin 28 m²
Kiinteistötyyppi: Asuinkerrostalo
Rakennusvuosi: 1968
Tilatyyppi: Työ-, toimisto- tai liiketila
Kunto, varusteet ja palvelut: Hyvä kunto, kaksi huonetta, kaksi vesipistettä, yhteiskäyttöinen wc, keskustan palvelut lähellä
Energiatodistus: E2013
Lämmitys: Kaukolämpö (sis. vastikkeeseen)*
Vapautuminen: Myydään vuokrattuna
Myyntihinta ja kulut
Myyntihinta: 58’458,21 €
Velkaosuus: 10’541,79 €
Velatonhinta: 69’000 €
Hoitovastike: 124,53 €/kk
Rahoitusvastike: 157,73 €/kk
Vapautuu
Myydään vuokrattuna
Rakennusvuosi
1968
Energiatehokkuusluokka
E2013
Katutasossa
Näkyvällä paikalla
Ota yhteyttä
Tilat.fi
KTM, LKV Antti Soivio
Näytä puhelinnumero
0400 446 553
OTM, LKV Riikka Tuominen
Näytä puhelinnumero
0400 551 790
KTM, LKV Maria-Sofia Puhakka
Näytä puhelinnumero
0400-150330
HTM, LKV Aleksandra Riki
Näytä puhelinnumero
0400-211288
LKV Tilat.fi Oy on toimitilojen välitykseen erikoistunut yritys.
http://www.tilat.fiPyydä lisätietoa
