Vuokrataan varastotilat - Naantali
Noutokatu 3, Luolala, 21100 Naantali #10838272
Uutta varasto/työtilaa Naantalin Luolalan alueella
Osoite
Noutokatu 3, 21100 Naantali
Tilatyyppi
Varastotilaa
133,5 - 267 m2
Muuta
Vuokrattavana uutta toimitilaa Naantalin Luolalan alueella osoitteessa Noutokatu 3.
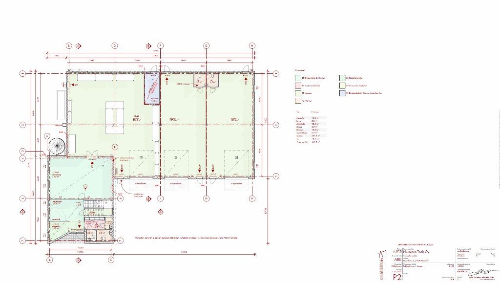
Kyseessä on monipuolinen 267 m² tila, joka voidaan tarvittaessa jakaa kahteen erilliseen osaan.
Tilat soveltuvat erinomaisesti tuotanto-, varasto- tai muuhun yritystoimintaan, ja ne ovat muokattavissa käyttäjän tarpeiden mukaisesti.
Esimerkiksi tilaan on mahdollista rakentaa parvi, mikä lisää käyttömahdollisuuksia ja joustavuutta.
Kohde valmistuu marraskuussa 2025. Vuokra määräytyy pääomavuokran mukaisesti.
Vuokrahintaan lisätään erikseen vesi-, sähkö- ja lämmityskustannukset kulutuksen mukaan.
Tilassa on kattavat tekniset ratkaisut, jotka tukevat monenlaista käyttöä: vesikiertoinen lattialämmitys, keskitetty ilmanvaihto lämmön talteenotolla, paineilmaverkosto, led-valaistus sekä manuaaliset nosto-ovet.
Kiinteistössä on 125A sulake ja paloluokitus P1. Vuokraan sisältyy kaksi katettua autopaikkaa, joissa on 11 kW sähköauton latausmahdollisuus.
Tervetuloa tutustumaan, varaathan välittäjältä oman esittelyaikasi.
Voit kysyä meiltä myös muita sopivia vaihtoehtoja, kauttamme löydät juuri Teidän tarpeisiinne sopivat tilat.
Palvelumme on tilanhakijalle veloitukseton!
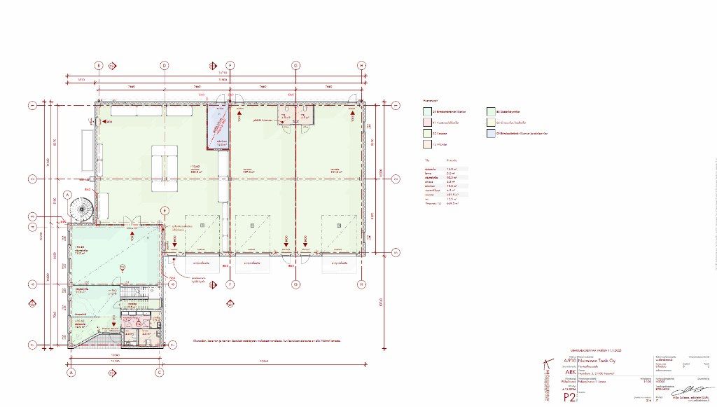
Kyseessä on monipuolinen 267 m² tila, joka voidaan tarvittaessa jakaa kahteen erilliseen osaan.
Tilat soveltuvat erinomaisesti tuotanto-, varasto- tai muuhun yritystoimintaan, ja ne ovat muokattavissa käyttäjän tarpeiden mukaisesti.
Esimerkiksi tilaan on mahdollista rakentaa parvi, mikä lisää käyttömahdollisuuksia ja joustavuutta.
Kohde valmistuu marraskuussa 2025. Vuokra määräytyy pääomavuokran mukaisesti.
Vuokrahintaan lisätään erikseen vesi-, sähkö- ja lämmityskustannukset kulutuksen mukaan.
Tilassa on kattavat tekniset ratkaisut, jotka tukevat monenlaista käyttöä: vesikiertoinen lattialämmitys, keskitetty ilmanvaihto lämmön talteenotolla, paineilmaverkosto, led-valaistus sekä manuaaliset nosto-ovet.
Kiinteistössä on 125A sulake ja paloluokitus P1. Vuokraan sisältyy kaksi katettua autopaikkaa, joissa on 11 kW sähköauton latausmahdollisuus.
Tervetuloa tutustumaan, varaathan välittäjältä oman esittelyaikasi.
Voit kysyä meiltä myös muita sopivia vaihtoehtoja, kauttamme löydät juuri Teidän tarpeisiinne sopivat tilat.
Palvelumme on tilanhakijalle veloitukseton!
Vapautuu
Kysy
Ota yhteyttä
Tuloskiinteistöt Oy
Kauppiaskatu 11 C 23, 20100 Turku
Näytä puhelinnumero
(02) 274 3500
Ritva Nuotio
Commercial Real Estate Advisor LKV, KED
Näytä puhelinnumero
+358 50 5261 744
Karoliina Eklund
Leasing Support Specialist
Näytä puhelinnumero
+358 40 017 8999
Pyydä lisätietoa
