Vuokrataan toimistotilat - Helsinki
Hämeentie 19, Sörnäinen, 00500 Helsinki #10838004
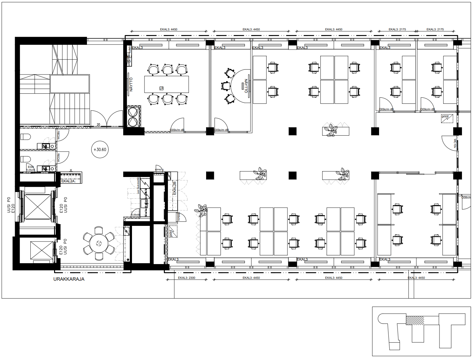
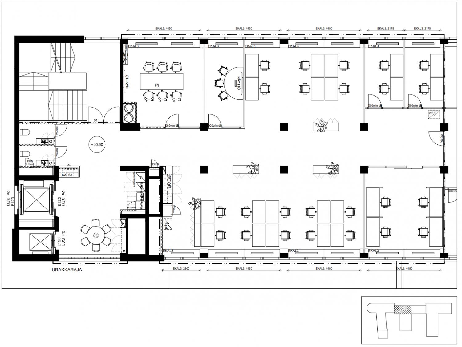
Siisti monitoiminen 286 m² toimisto Hämeentien upean kiinteistön 4. kerroksesta.
Osoite
Hämeentie 19, 00500 Helsinki
Tilatyyppi
Toimistotilaa
286 m2
Pohjapiirros
Kiinteistö
Osittain suojeltu Hämeentie 19 henkii 20-luvun funktionalismia. Upea ja arvokas, vuonna 1933 Keskusosuusliike OTK:n hallintorakennukseksi valmistunut funkkistalo yhdistää Sörnäisissä arkkitehtonisesti vaikuttavan estetiikan ja modernin talotekniikan, joka on uusittu vastaamaan nykyajan tarpeita. Vilkkaan Hämeentien varressa sijaitseva toimitilarakennus uudistettiin kunnioittaen sen alkuperäistä arkkitehtuuria ja historiaa.
Tämä Väinö Vähäkallion suunnittelema talo on erinomaisten liikenneyhteyksien päässä. Sörnäisten metroasema on aivan talon vieressä, ja Hämeentiellä on myös hyvät bussi- ja raitiolinjayhteydet. Lähistöltä löytyy myös paljon ravintoloita, kahviloita ja muita erikoisliikkeitä.
Hämeentie 19 valloittaa vieraansa menneen ajan hienostuneisuudella mutta toimii tämän päivän tekniikalla. Kiinteistössä on mm. aulapalvelu ja täysin uudistettu lounasravintola.
Hämeentie 19:sta on myönnetty harvinainen BREEAM In-Use -sertifikaatin Excellent-taso osoituksena kiinteistön poikkeuksellisen vahvasta vastuullisuuden tasosta.
Tämä Väinö Vähäkallion suunnittelema talo on erinomaisten liikenneyhteyksien päässä. Sörnäisten metroasema on aivan talon vieressä, ja Hämeentiellä on myös hyvät bussi- ja raitiolinjayhteydet. Lähistöltä löytyy myös paljon ravintoloita, kahviloita ja muita erikoisliikkeitä.
Hämeentie 19 valloittaa vieraansa menneen ajan hienostuneisuudella mutta toimii tämän päivän tekniikalla. Kiinteistössä on mm. aulapalvelu ja täysin uudistettu lounasravintola.
Hämeentie 19:sta on myönnetty harvinainen BREEAM In-Use -sertifikaatin Excellent-taso osoituksena kiinteistön poikkeuksellisen vahvasta vastuullisuuden tasosta.
Vapautuu
Heti
Rakennusvuosi
1933
Saneerausvuosi
2010
Kerros
4 / 9
Energiatehokkuusluokka
Ei lain edellyttämää energiatodistusta
Näkyvällä paikalla
Hissi
Ota yhteyttä
ScanReal Oy LKV
Opus Business Park
Hitsaajankatu 24
00810 Helsinki
info@scanreal.fi
Puh:
Näytä puhelinnumero
020 730 8830
Sopivat toimitilat yhdellä otolla!
Kartoitamme toimitilatarpeesi ja etsimme yrityksellesi parhaiten sopivat vapaat toimitilat. Koska vuokranantajat maksavat palvelumme, on tämä yrityksellesi veloituksetonta.
OTA YHTEYTTÄ - SOVI NÄYTTÖ!
Kaikki kohteemme eivät ole netissä, kerro tilatarpeesi niin kartoitamme vaihtoehdot.
Palvelumme on tilanhakijalle ilmainen
Pyydä lisätietoa
