Vuokrataan toimistotilat - Kuopio

Kumpusaarentie 52, 70620 Kuopio #10837986

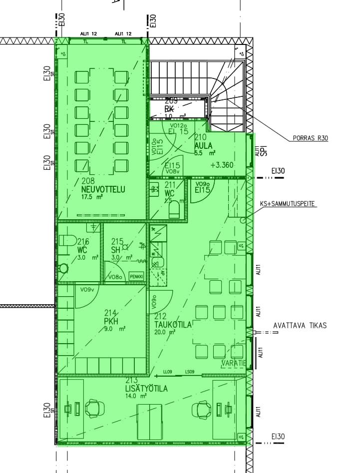
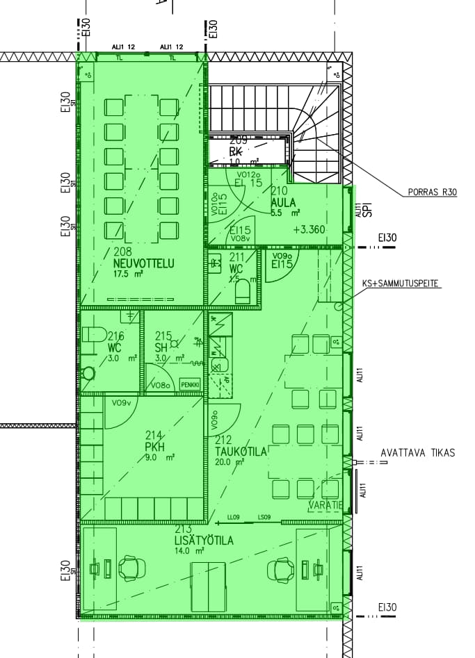
Vuokrattavana toisen kerroksen toimistotila (73,5 m²), joka koostuu tauko- ja neuvottelutiloista, erillisestä työhuoneesta sekä keittiöstä. Tilassa on myös wc- ja suihkutilat sekä pukuhuone. Moderni varustelu, isot ikkunat tuovat runsaasti luonnonvaloa ja näkymät avautuvat Kallavedelle.

Tilat soveltuvat hyvin toimistokäyttöön tai yrityksen tukitiloiksi. Rakennuksessa on hyvät pysäköintimahdollisuudet sekä sujuvat kulkuyhteydet.

Osoite
Kumpusaarentie 52, 70620 Kuopio
Tilatyyppi
Toimistotilaa
73,5 m2
Pohjapiirros
Kiinteistö
Uusi ja moderni toimitilakiinteistö, jossa laadukkaat toimisto-, sosiaali- ja varastotilat. Rakennus on suunniteltu yritysten tarpeisiin, ja siinä on käytännölliset tilaratkaisut sekä nykyaikainen varustelu.
Sijainti
Kohde sijaitsee Kumpusaarentiellä, Kuopion Sorsasalon yritysalueella, vain muutaman minuutin ajomatkan päässä Kuopion keskustasta ja valtatie 5:ltä.
Ympäristö
Alueella toimii useita teollisuuden, logistiikan ja palvelualojen yrityksiä. Toimitila tarjoaa edustavat näkymät Kallavedelle ja vehreään ympäristöön.
Pysäköinti
Kiinteistön pihalla on runsaasti pysäköintitilaa henkilökunnalle ja asiakkaille.
Palvelut
Kuopion keskustan kattavat palvelut ovat lyhyen ajomatkan päässä. Lisäksi alueella on yritysten tarvitsemia tukipalveluita.
Kulkuyhteydet
Erinomaiset liikenneyhteydet autolla, sillä kiinteistö sijaitsee aivan valtatie 5:n tuntumassa. Julkisella liikenteellä pääsee keskustasta alueelle bussiyhteyksillä.
Muuta
Tilat ovat heti vapaina ja muunneltavissa käyttäjän tarpeiden mukaan. Sopii hyvin yrityksille, jotka arvostavat moderneja tiloja ja toimivia sosiaalitiloja luonnonläheisessä ympäristössä.

Muut kustannukset
Kohteessa maalämpö
Vesi ja sähkö kulutuksen mukaan
Vapautuu
Heti
Kerros
2 / 2
Ota yhteyttä

Fine LKV

Minna Moisio
Toimitilavuokraus, LKV
Näytä puhelinnumero 0505417349
minna@finelkv.fi
Leväsentie 2, 70700 Kuopio
Yliopistonkatu 28, 40100 Jyväskylä

Toimin kaupallisena managerina ja toimitilavuokraajana, otathan yhteyttä jos mietit mahdollisia muutostöitä tai esillä olevista toimitiloista ei löydy sitä mitä etsit. Selvitetään muut tila mahdollisuudet. Asiakaslähtöisyys on minulle tärkeää sekä asioiden sujuvuus. Ota yhteyttä, mielelläni autan sinua.

Pyydä lisätietoa

Kohteesta Kumpusaarentie 52, Kuopio

 

B2B palvelut

LASTAUSRATKAISUT

Mainos
Lastauksien ratkaisut tehokkaammin ja turvallisemmin

HALLIT