Vuokrataan toimistotilat - Jyväskylä
Vesangantie 1, 40700 Jyväskylä #10837895
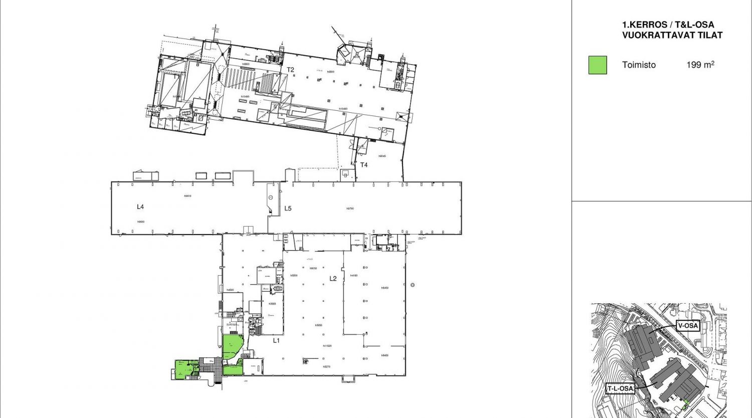
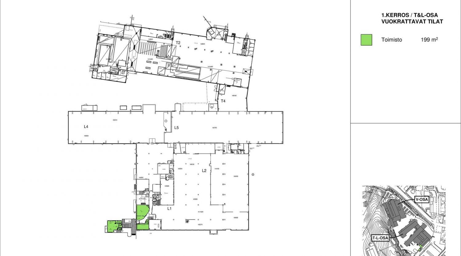
Katutason toimistotilat, jotka voidaan vuokrata yhdessä tai erikseen. Tilojen yhteydessä on keittiö ja wc-tilat. Tiloista on sisäyhteys kiinteistön tuotanto- ja varastotiloihin.
Ohessa havainnollistavia kuvia.
Rautpohjan alueella Jyväskylä keskustan kupeessa teollis-tuotannollinen kiinteistökokonaisuus sisältää toimisto-, tuotanto- ja varasto/hallitiloja, jotka ovat jaettavissa eri kokonaisuuksiin.
Lisätietoja numerosta 020 7290 710. Lisää kohteita osoitteessa www.premises.fi.
Kohteella ei ole lain edellyttämää energiatodistusta tai energialuokka ei tiedossa.
Tämän kohteen omistaa Logicor Oy.Kerros: 1
CRE PREMISES
Puh. Näytä puhelinnumero 020 7290 710
Vantaankoskentie 14
01670 VANTAA
