Vuokrataan tuotantotilat, varastotilat, työtilat, autotalli/-hallitilat - Vantaa
Pyöräkuja 4, Korso, 01450 Vantaa #10837753
Sadevesihiekan ja lietteen vastaanotto altaat vuokrattavana!
Osoite
Pyöräkuja 4, 01450 Vantaa
Tilatyyppi
Tuotantotilaa
390 m2
Varastotilaa
390 m2
Työtilaa
390 m2
Autotalli/-hallitilaa
390 m2
Yhteensä
390 m2
Virtuaaliesittely
Vuokra
8 €/m²/kk + alv
Muuta
Nyt mahdollisuus vuokrata hallirakennus missä kaksi allasta sadevesikaivojen ja hiekanerotuskaivojen tyhjennysjätteen vastaanottoa ja käsittelyä varten.
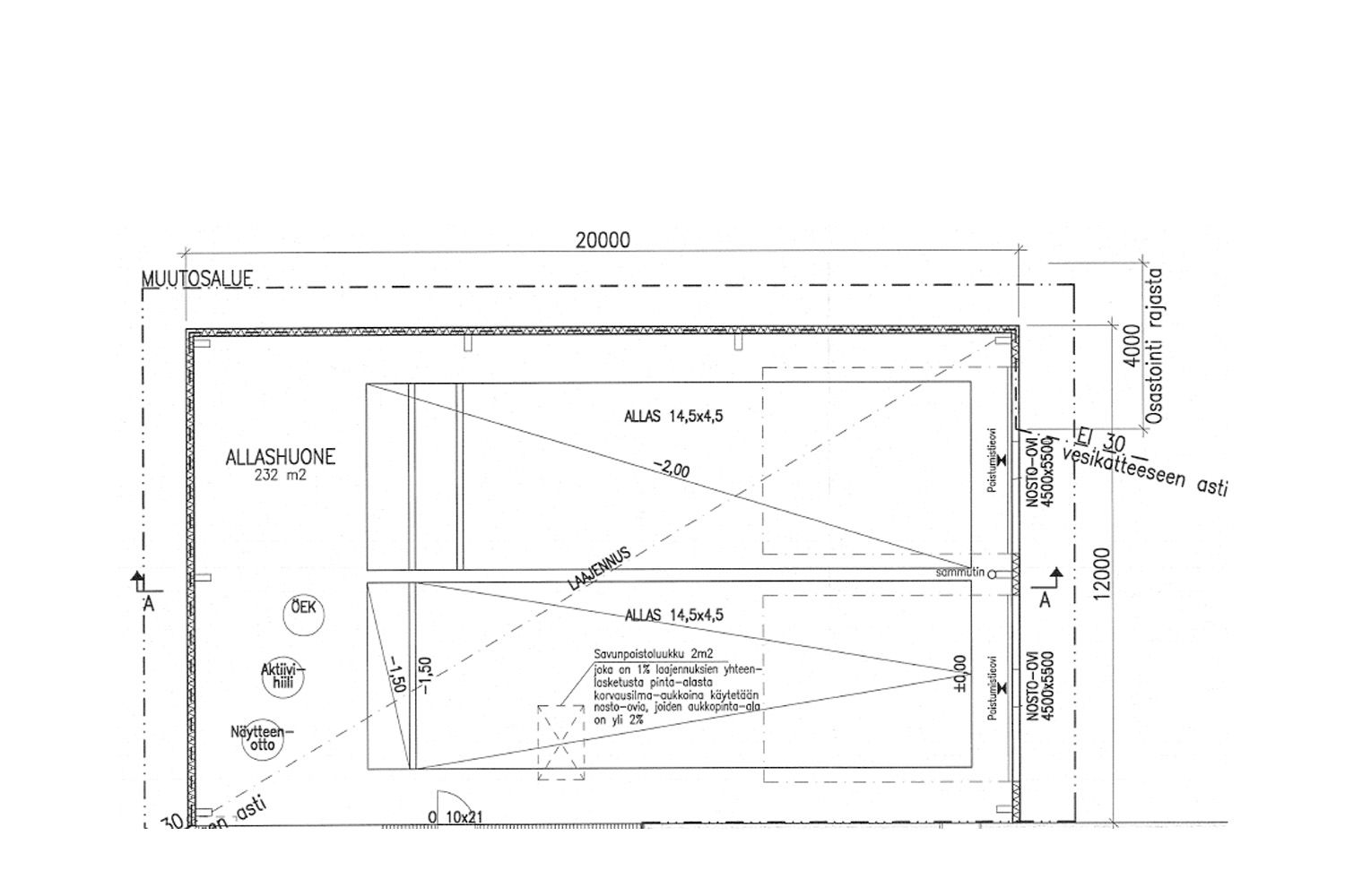
Vuokrattavana on noin 390 m² hallitilaa. Toinen halleista on noin 230 m² ja toinen halli on noin 160 m². Isomman hallin allas on noin 120 m3 ja pienemmän noin 80 m3 vetoisuudeltaan. Halleissa altaiden lisäksi lattiapinta-alaa noin 200 m² esimerkiksi kahdelle imuautolle.
Kummassakin hallissa on 2kpl nosto-ovia (L4,5 m x K5,4 m ja L3,8 m x K5,1 m).
Lämmitysmuotona tiloissa on sähkölämmitys.
Tilaan ei kuulu ajoväylien lisäksi varsinaista piha-aluetta.
Hyvä sijainti suositulla Kelan teollisuusalueella Vantaalla.
Mahdollisuus imuautoyritykselle – Harvoin tarjolla!
Kohdetiedot
Sijainti
Katuosoite: Pyöräkuja 4, 01450 Vantaa
Ympäristö: Kelatien teollisuusalue
Rakennus
Pinta-alat: Noin 390 m²
Rakennustyppi: Tuotanto- ja pienteollisuusrakennus
Rakennusvuosi: 2002
Energiatodistus: Laki ei edellytä
Huoneistoselitelmä/käyttötarkoitus: Tuotanto-, varasto- ja toimistotilaa
Kunto, varusteet ja palvelut: Nosto-ovet, lietelattiakaivot, voimavirtaa, vesipiste
Pysäköinti: Pihalla ovien edessä
Lämmitys: Sähkölämmitys
Vapautuu: Heti vapaa
Vuokrahinta ja kulut
Kuukausivuokra: 8 €/m²/kk + alv
Sähkö- ja vesimaksut: Veloitetaan erikseen mittauksen mukaan
Lämmitys: Vuokralainen maksaa
Jätehuolto ja auraus: Vuokralainen vastaa kuluista ja järjestelyistä itse
Muut ehdot: Minimisopimuskausi 12kk, vakuus 3kk vuokraa vastaava summa ja luottotietojen on oltava kunnossa
Vuokrattavana on noin 390 m² hallitilaa. Toinen halleista on noin 230 m² ja toinen halli on noin 160 m². Isomman hallin allas on noin 120 m3 ja pienemmän noin 80 m3 vetoisuudeltaan. Halleissa altaiden lisäksi lattiapinta-alaa noin 200 m² esimerkiksi kahdelle imuautolle.
Kummassakin hallissa on 2kpl nosto-ovia (L4,5 m x K5,4 m ja L3,8 m x K5,1 m).
Lämmitysmuotona tiloissa on sähkölämmitys.
Tilaan ei kuulu ajoväylien lisäksi varsinaista piha-aluetta.
Hyvä sijainti suositulla Kelan teollisuusalueella Vantaalla.
Mahdollisuus imuautoyritykselle – Harvoin tarjolla!
Kohdetiedot
Sijainti
Katuosoite: Pyöräkuja 4, 01450 Vantaa
Ympäristö: Kelatien teollisuusalue
Rakennus
Pinta-alat: Noin 390 m²
Rakennustyppi: Tuotanto- ja pienteollisuusrakennus
Rakennusvuosi: 2002
Energiatodistus: Laki ei edellytä
Huoneistoselitelmä/käyttötarkoitus: Tuotanto-, varasto- ja toimistotilaa
Kunto, varusteet ja palvelut: Nosto-ovet, lietelattiakaivot, voimavirtaa, vesipiste
Pysäköinti: Pihalla ovien edessä
Lämmitys: Sähkölämmitys
Vapautuu: Heti vapaa
Vuokrahinta ja kulut
Kuukausivuokra: 8 €/m²/kk + alv
Sähkö- ja vesimaksut: Veloitetaan erikseen mittauksen mukaan
Lämmitys: Vuokralainen maksaa
Jätehuolto ja auraus: Vuokralainen vastaa kuluista ja järjestelyistä itse
Muut ehdot: Minimisopimuskausi 12kk, vakuus 3kk vuokraa vastaava summa ja luottotietojen on oltava kunnossa
Vapautuu
Heti
Rakennusvuosi
2002
Katutasossa
Näkyvällä paikalla
Ota yhteyttä
Tilat.fi
KTM, LKV Antti Soivio
Näytä puhelinnumero
0400 446 553
OTM, LKV Riikka Tuominen
Näytä puhelinnumero
0400 551 790
KTM, LKV Maria-Sofia Puhakka
Näytä puhelinnumero
0400-150330
MBA, LKV Susanne Wallenius
Näytä puhelinnumero
0400-128877
Yrityksen virallinen nimi: LKV Tilat.fi Oy.
Toimitilojen välitykseen erikoistunut yritys.
Pyydä lisätietoa
