Vuokrataan työtilat - Riihimäki
KOY Riihimäen Talliosake 4 TYÖTILA 12 – parvi, wc, suihkuvaraus, Yrittäjänkatu 9, 11710 Riihimäki #10837705
Suositulla Riihimäen Talliosakkeelta kauan odotettua työtilaa! Tilassa 12 valmiina parvi sekä wc suihkuvarauksella.
Osoite
Yrittäjänkatu 9, 11710 Riihimäki
Tilatyyppi
Työtilaa
92 m2
Vuokra
1190 € / kk
Kiinteistö
KOY Riihimäen Talliosake 4
Sijainti
Riihimäen Talliosake 4 sijaitsee huippupaikalla Mattilan kaupunginosassa, Riihimäen eteläisen moottoritieliittymän ja Hämeenlinnantien liittymän kupeessa. Riihimäen keskustan palvelut vajaan 10 minuutin ajomatkan päässä.
Muuta
Vuokrataan vain yritysasiakkaille – vuokraan lisätään ALV 25,5%.
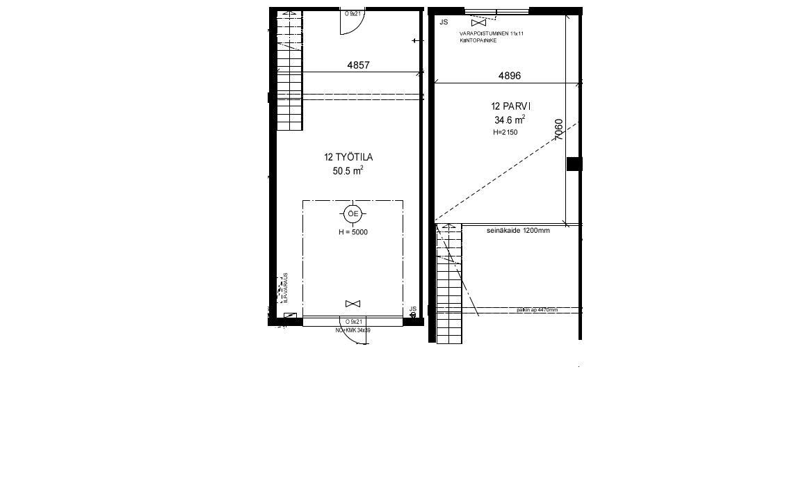
Moottoroitu nosto-ovi erillisellä käyntiovella. Autolla sisään ajettava tila. Tilamitat: 11,87 (Pituus) 4,85 (Leveys) 5,00 (Korkeus). Ovimitat: 3,40 (Leveys) 3,90 (Korkeus).
Tilan lattiapinta-ala on 57 m² ja parven 35 m². Yhteispinta-ala 92 m².
Yhtiön pihalla sähköauton latauspiste.
Käyttötarkoitusesimerkkejä: - toimitila - varastotila - yrityksen työtarvikevarasto / kalustovarasto - kimppatalli - harrastetila - bändikämppä - autotalli - moottoripyörätalli - mönkijätalli. Tila ei sovellu autokorjaamoksi eikä autopesulaksi.
Tila on sähkölämmitteinen. Vuokralainen tekee tilaan oman sähkösopimuksen. Vesi- ja sähkömaksu kulutuksen mukaan. Vakuus kahden kuukauden vuokraa vastaava määrä. Haetaan pitkäaikaista vuokralaista. Luottotiedot tarkistetaan.
Talliosake tuottaa joustavasti muunneltavia hallitiloja ympäri Suomen, joita yritykset ja yksityishenkilöt käyttävät tukikohtinaan erilaisille toiminnoille: yritys- ja liiketoimintaan, varastointiin sekä harrastuksiin.
Moottoroitu nosto-ovi erillisellä käyntiovella. Autolla sisään ajettava tila. Tilamitat: 11,87 (Pituus) 4,85 (Leveys) 5,00 (Korkeus). Ovimitat: 3,40 (Leveys) 3,90 (Korkeus).
Tilan lattiapinta-ala on 57 m² ja parven 35 m². Yhteispinta-ala 92 m².
Yhtiön pihalla sähköauton latauspiste.
Käyttötarkoitusesimerkkejä: - toimitila - varastotila - yrityksen työtarvikevarasto / kalustovarasto - kimppatalli - harrastetila - bändikämppä - autotalli - moottoripyörätalli - mönkijätalli. Tila ei sovellu autokorjaamoksi eikä autopesulaksi.
Tila on sähkölämmitteinen. Vuokralainen tekee tilaan oman sähkösopimuksen. Vesi- ja sähkömaksu kulutuksen mukaan. Vakuus kahden kuukauden vuokraa vastaava määrä. Haetaan pitkäaikaista vuokralaista. Luottotiedot tarkistetaan.
Talliosake tuottaa joustavasti muunneltavia hallitiloja ympäri Suomen, joita yritykset ja yksityishenkilöt käyttävät tukikohtinaan erilaisille toiminnoille: yritys- ja liiketoimintaan, varastointiin sekä harrastuksiin.
Vapautuu
Heti vapaa
Katutasossa
Näkyvällä paikalla
Ota yhteyttä
Talliosake Oy
Jani Sanevuori
Aluemyyntipäällikkö,
Etelä-Suomi, Vuokrauspalvelu, LVV
Näytä puhelinnumero
050 361 4814
Pyydä lisätietoa
