Vuokrataan/myydään tuotantotilat, varastotilat, työtilat, autotalli/-hallitilat - Porvoo
Puusepänkaarre 10, 06150 Porvoo #10837674
Myydään ja vuokrataan hallitila Kaupunginhaasta!
Osoite
Puusepänkaarre 10, 06150 Porvoo
Tilatyyppi
Tuotantotilaa
210 m2
Varastotilaa
210 m2
Työtilaa
210 m2
Autotalli/-hallitilaa
210 m2
Yhteensä
210 m2
Virtuaaliesittely
Vuokra
1190 €/kk, alv-vapaa
Myyntihinta
199’800 € (velaton)
Muuta
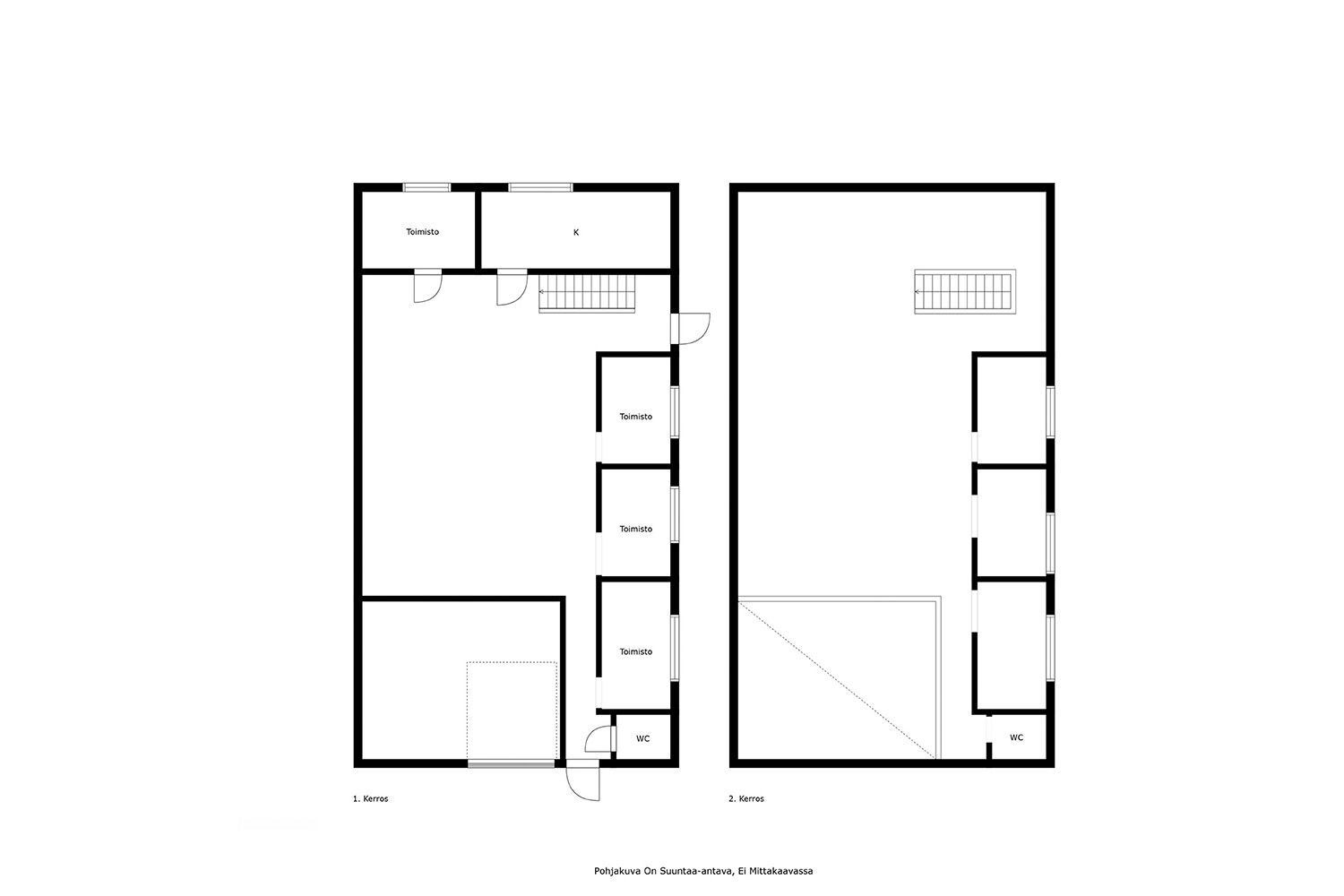
Porvoon Kaupunginhaassa on vuokrattavana ja myynnissä hyväkuntoinen sekä hyvin varusteltu hallitila. Tilassa on korkeaa sekä matalaa varastotilaa, toimistohuoneita, keittiö ja pieni kylpyhuone. Lisäksi runsaasti lisätilaa parvella.
Halli on pinta-alaltaan noin 210 m² ja sen varusteluun kuuluu iso nosto-ovi, lattiakaivo ja kaksi erillistä käyntiovea. Korkeaa varastotilaa nyt noin 45 m² ja matalaa hallitilaa runsaasti kahdessa tasossa. Useita toimistohuoneita, keittiö ja wc-tila suihkulla.
Tiloissa on sähkölämmitys. Lämmitys on toteutettu pääosin ilmalämpöpumpulla. Tilassa on tilakohtainen vesimittaus ja oma sähkösopimus.
Rakennuksen piha on asfaltoitu ja siinä on pysäköintitilaa usealle autolla. Hyvä sijainti lähellä moottoritietä. Kaikki Tarmolan kaupanpalvelut lähellä.
Tilat eivät sovellu autokorjaamoksi tai autopesulaksi.
Hyvin varustellut tilat myynnissä tai vuokrattavana!
Kohdetiedot
Sijainti
Katuosoite: Puusepänkaarre 10, 06150 Porvoo
Kaupunginosa: Kaupunginhaka
Ympäristö: Teollisuusalue
Tontti
Omistus: Oma
Pinta-ala: 1500 m²
Rakennus/huoneisto
Pinta-ala: Noin 210 m²
Kiinteistötyyppi: Varasto/tuotantorakennus
Rakennusvuosi: 2008
Energiatodistus: Ei lain vaatimaa todistusta
Huoneistotyyppi: Varasto- ja tuotantotila
Kunto, varusteet ja palvelut: Toimistohuoneita, nosto-ovi käyntiovella, lattiakaivo, wc ja suihku
Lämmitys: Sähkölämmitys (ilmalämpöpumppu ja patterit)
Vapautuminen: Heti vapaa
Myyntihinta ja kulut
Velaton hinta: 199’800 €
Hoitovastike: Noin 70 €/kk
Sähkö- ja vesimaksu: Mittauksen mukaan
Vuokrahinta ja kulut
Kuukausivuokra: 1190 €/kk, alv-vapaa
Sähkö- ja vesimaksu: Mittauksen/kulutuksen mukaan
Lämmitys: Ilmalämpöpumpulla ja pattereilla
Jätehuolto: Vuokralainen vastaa kuluista ja järjestelyistä
Auraus: vuokralainen vastaa tilan edustan lumen luonnista
Muuta: Minimisopimuskausi 12 kk, vakuus 3 kk:n vuokraa vastaava summa ja luottotietojen oltava kunnossa
Halli on pinta-alaltaan noin 210 m² ja sen varusteluun kuuluu iso nosto-ovi, lattiakaivo ja kaksi erillistä käyntiovea. Korkeaa varastotilaa nyt noin 45 m² ja matalaa hallitilaa runsaasti kahdessa tasossa. Useita toimistohuoneita, keittiö ja wc-tila suihkulla.
Tiloissa on sähkölämmitys. Lämmitys on toteutettu pääosin ilmalämpöpumpulla. Tilassa on tilakohtainen vesimittaus ja oma sähkösopimus.
Rakennuksen piha on asfaltoitu ja siinä on pysäköintitilaa usealle autolla. Hyvä sijainti lähellä moottoritietä. Kaikki Tarmolan kaupanpalvelut lähellä.
Tilat eivät sovellu autokorjaamoksi tai autopesulaksi.
Hyvin varustellut tilat myynnissä tai vuokrattavana!
Kohdetiedot
Sijainti
Katuosoite: Puusepänkaarre 10, 06150 Porvoo
Kaupunginosa: Kaupunginhaka
Ympäristö: Teollisuusalue
Tontti
Omistus: Oma
Pinta-ala: 1500 m²
Rakennus/huoneisto
Pinta-ala: Noin 210 m²
Kiinteistötyyppi: Varasto/tuotantorakennus
Rakennusvuosi: 2008
Energiatodistus: Ei lain vaatimaa todistusta
Huoneistotyyppi: Varasto- ja tuotantotila
Kunto, varusteet ja palvelut: Toimistohuoneita, nosto-ovi käyntiovella, lattiakaivo, wc ja suihku
Lämmitys: Sähkölämmitys (ilmalämpöpumppu ja patterit)
Vapautuminen: Heti vapaa
Myyntihinta ja kulut
Velaton hinta: 199’800 €
Hoitovastike: Noin 70 €/kk
Sähkö- ja vesimaksu: Mittauksen mukaan
Vuokrahinta ja kulut
Kuukausivuokra: 1190 €/kk, alv-vapaa
Sähkö- ja vesimaksu: Mittauksen/kulutuksen mukaan
Lämmitys: Ilmalämpöpumpulla ja pattereilla
Jätehuolto: Vuokralainen vastaa kuluista ja järjestelyistä
Auraus: vuokralainen vastaa tilan edustan lumen luonnista
Muuta: Minimisopimuskausi 12 kk, vakuus 3 kk:n vuokraa vastaava summa ja luottotietojen oltava kunnossa
Vapautuu
Heti
Rakennusvuosi
2008
Katutasossa
Näkyvällä paikalla
Ota yhteyttä
Tilat.fi
KTM, LKV Antti Soivio
Näytä puhelinnumero
0400 446 553
OTM, LKV Riikka Tuominen
Näytä puhelinnumero
0400 551 790
KTM, LKV Maria-Sofia Puhakka
Näytä puhelinnumero
0400-150330
MBA, LKV Susanne Wallenius
Näytä puhelinnumero
0400-128877
Yrityksen virallinen nimi: LKV Tilat.fi Oy.
Toimitilojen välitykseen erikoistunut yritys.
Pyydä lisätietoa
