Vuokrataan toimistotilat - Helsinki
Kaivokatu 8 A-B, Kluuvi, 00101 Helsinki #10837668
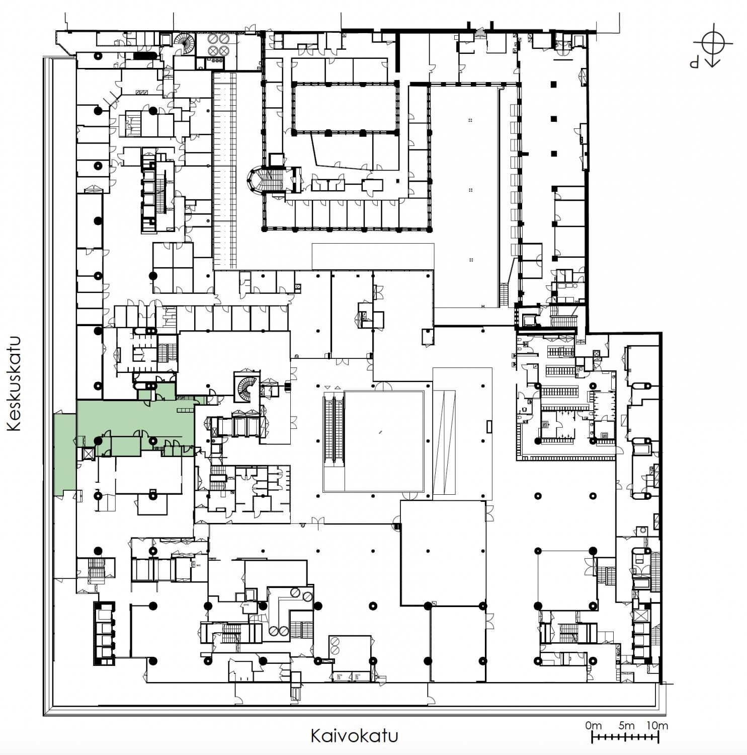
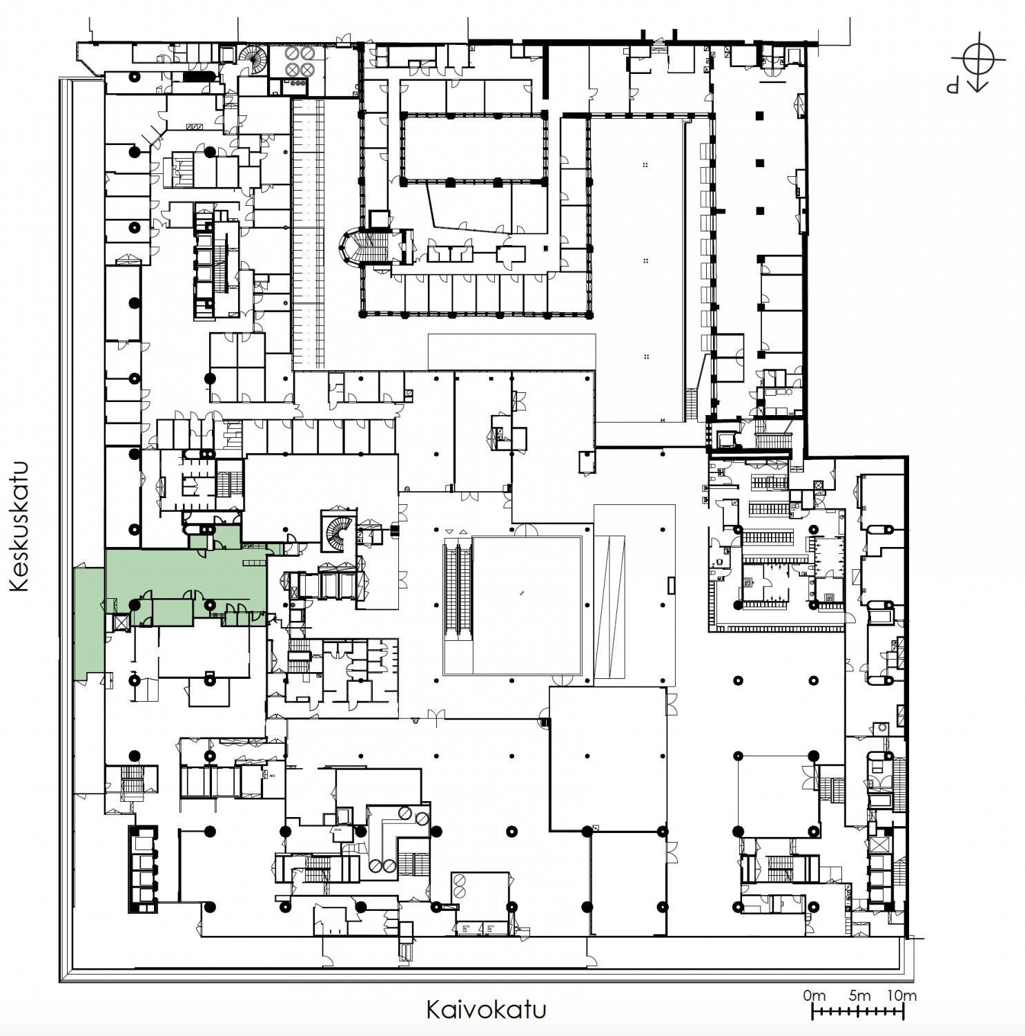
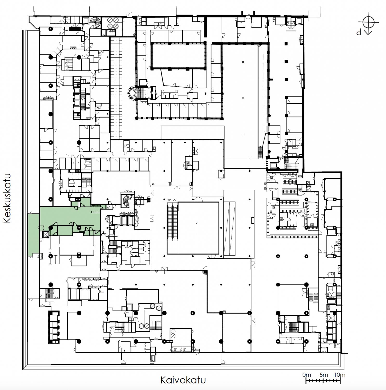
Toimisto omalla 38m2 terassilla, joten tila soveltuu hyvin vaikka edustustilaksi.
Osoite
Kaivokatu 8 A-B, 00101 Helsinki
Tilatyyppi
Toimistotilaa
155 m2
Pohjapiirros
Kiinteistö
Citycenterin liike- ja toimistokeskus sijaitsee aivan Helsingin sydämessä yhdessä pääkaupungin tunnetuimmista rakennuksista.
Citycenterissä on nykyaikaisia toimistotiloja kahdeksassa kerroksessa. Tiloista on avarat näkymät Rautatientorille ja aseman yli Töölönlahden suuntaan. Modernissa kauppakeskuksessa on kattava valikoima kaupallisen alan toimijoita sekä palveluita terveydenhuollosta pankkeihin ja ravintoloihin. Vuonna 1967 valmistuneen rakennuksen on suunnitellut arkkitehti Viljo Revell. Citycenterissä on tehty mittavia uudistuksia vuosina 2020-2023.
Citycenterin toimistoille on myönnetty BREEAM In-Use Excellent -tason ympäristösertifikaatti. BREEAM (Building Research Establishment Environmental Assessment Method) on kansainvälinen rakennusten ympäristöluokitusjärjestelmä, joka tähtää rakennuksen käytön ympäristövaikutusten vähentämiseen sekä terveellisempien työympäristöjen kehittämiseen.
Citycenter toimii 100 % päästöttömällä energialla, kuten tuulisähköllä ja uusiutuvalla kaukolämmöllä. Lisäksi katolle asennettu aurinkovoimala tuottaa uusiutuvaa energiaa kiinteistön käyttöön.
Citycenterissä on nykyaikaisia toimistotiloja kahdeksassa kerroksessa. Tiloista on avarat näkymät Rautatientorille ja aseman yli Töölönlahden suuntaan. Modernissa kauppakeskuksessa on kattava valikoima kaupallisen alan toimijoita sekä palveluita terveydenhuollosta pankkeihin ja ravintoloihin. Vuonna 1967 valmistuneen rakennuksen on suunnitellut arkkitehti Viljo Revell. Citycenterissä on tehty mittavia uudistuksia vuosina 2020-2023.
Citycenterin toimistoille on myönnetty BREEAM In-Use Excellent -tason ympäristösertifikaatti. BREEAM (Building Research Establishment Environmental Assessment Method) on kansainvälinen rakennusten ympäristöluokitusjärjestelmä, joka tähtää rakennuksen käytön ympäristövaikutusten vähentämiseen sekä terveellisempien työympäristöjen kehittämiseen.
Citycenter toimii 100 % päästöttömällä energialla, kuten tuulisähköllä ja uusiutuvalla kaukolämmöllä. Lisäksi katolle asennettu aurinkovoimala tuottaa uusiutuvaa energiaa kiinteistön käyttöön.
Sijainti
Bussit, raitiovaunut, junat ja metro ovat pienen kävelymatkan päässä.
Pysäköinti
P-Eliel, autoparkki WTC ja Forum-P.
Palvelut
Kaikki keskustan palvelut ovat lyhyen kävelymatkan etäisyydellä. Alueella on runsaasti ravintoloita, kauppoja, hotelleja ja neuvottelukeskuksia.
Kulkuyhteydet
Lähimmälle bussipysäkille 150 m
Lähimmälle juna-asemalle 150 m
Lähimmälle metroasemalle 150 m
Lähimmälle raitiovaunupysäkille 40 m
Lentokentälle 30 min
Lähimmälle juna-asemalle 150 m
Lähimmälle metroasemalle 150 m
Lähimmälle raitiovaunupysäkille 40 m
Lentokentälle 30 min
Vapautuu
Kysy
Rakennusvuosi
1967
Kerros
3
Energiatehokkuusluokka
C2018
Ympäristöluokitus
BREEAM In-Use Excellent,GRESB Global Sector Leader 2025
Ota yhteyttä
Sponda Oy
Yrjönkatu 29C, 00100 Helsinki
Näytä puhelinnumero
020 43131
Magnus Öster
Director, Leasing
Näytä puhelinnumero
+358 40 768 4926
Sponda Oy
https://www.sponda.fiPyydä lisätietoa
