Vuokrataan varastotilat - Nurmijärvi
KOY Ilvesvuoren Talliosake 2 tila 14, Ilvesvuorenkatu 22, 01900 Nurmijärvi #10837632
Suositulta Ilvesvuoren Talliosakkeella monikäyttöinen varasto, autotalli, harraste-, toimitila 14.
Osoite
Ilvesvuorenkatu 22, 01900 Nurmijärvi
Tilatyyppi
Varastotilaa
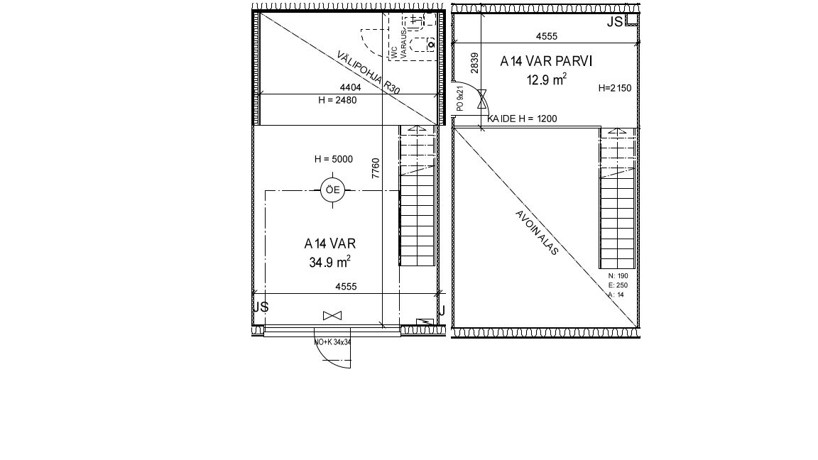
48 m2
Vuokra
595,00 €/kk
Kiinteistö
KOY Ilvesvuoren Talliosake 2
Sijainti
Ilvesvuoren Talliosake sijaitsee Ilvesvuoren yritysalueella Nurmijärvellä. Sijainti Tampereen moottoritien ja Hanko-Hyvinkää -tien varrella takaa loistavat kulkuyhteydet ja esim. Helsinkiin pääset vain puolessa tunnissa.
Muuta
Tilassa jo valmiina parvi ja wc sekä ilmalämpöpumppu.
Tilan lattiapinta-ala on 35 m² ja parven 13 m². Yhteispinta-ala 48 m².
Moottoroitu nosto-ovi erillisellä käyntiovella. Autolla sisään ajettava tila. Tilamitat: 7,75 (Pituus) 4,55 (Leveys) 5,00 (Korkeus). Ovimitat: 3,40 (Leveys) 3,40 (Korkeus).
Käyttötarkoitusesimerkkejä: - toimitila - varastotila - yrityksen työtarvikevarasto / kalustovarasto - kimppatalli - harrastetila - bändikämppä - autotalli - moottoripyörätalli - mönkijätalli. Tila ei sovellu autokorjaamoksi eikä autopesulaksi.
Sisäkuva toistaiseksi viitteellinen.
Tila on sähkölämmitteinen. Vuokralainen tekee tilaan oman sähkösopimuksen. Vesi- ja sähkömaksu kulutuksen mukaan. Vakuus kahden kuukauden vuokraa vastaava määrä. Haetaan pitkäaikaista vuokralaista. Luottotiedot tarkistetaan.
Talliosake tuottaa joustavasti muunneltavia hallitiloja ympäri Suomen, joita yritykset ja yksityishenkilöt käyttävät tukikohtinaan erilaisille toiminnoille: yritys- ja liiketoimintaan, varastointiin sekä harrastuksiin.
Tilan lattiapinta-ala on 35 m² ja parven 13 m². Yhteispinta-ala 48 m².
Moottoroitu nosto-ovi erillisellä käyntiovella. Autolla sisään ajettava tila. Tilamitat: 7,75 (Pituus) 4,55 (Leveys) 5,00 (Korkeus). Ovimitat: 3,40 (Leveys) 3,40 (Korkeus).
Käyttötarkoitusesimerkkejä: - toimitila - varastotila - yrityksen työtarvikevarasto / kalustovarasto - kimppatalli - harrastetila - bändikämppä - autotalli - moottoripyörätalli - mönkijätalli. Tila ei sovellu autokorjaamoksi eikä autopesulaksi.
Sisäkuva toistaiseksi viitteellinen.
Tila on sähkölämmitteinen. Vuokralainen tekee tilaan oman sähkösopimuksen. Vesi- ja sähkömaksu kulutuksen mukaan. Vakuus kahden kuukauden vuokraa vastaava määrä. Haetaan pitkäaikaista vuokralaista. Luottotiedot tarkistetaan.
Talliosake tuottaa joustavasti muunneltavia hallitiloja ympäri Suomen, joita yritykset ja yksityishenkilöt käyttävät tukikohtinaan erilaisille toiminnoille: yritys- ja liiketoimintaan, varastointiin sekä harrastuksiin.
Vapautuu
01.05.2026
Katutasossa
Näkyvällä paikalla
Ota yhteyttä
Talliosake Oy
Jani Sanevuori
Aluemyyntipäällikkö,
Etelä-Suomi, Vuokrauspalvelu, LVV
Näytä puhelinnumero
050 361 4814
Pyydä lisätietoa
