Vuokrataan varastotilat - Lempäälä
KOY Lempäälän Talliosake 2 varasto- ja toimitila (yhdistetyt tilat 1 ja 32) – minikeittiö, wc, Kaipionsivu 3, 37570 Lempäälä #10837610
Vuokrattavana kaksi tilaa yhdessä (tilat 1 + 32). Ainutlaatuinen tilakokonaisuus. Suositulta Lempäälän Talliosakkeelta vuokrattavissa monikäyttöistä varasto- ja toimitilaa.
Osoite
Kaipionsivu 3, 37570 Lempäälä
Tilatyyppi
Varastotilaa
194 m2
Vuokra
1900 € / kk
Kiinteistö
KOY Lempäälän Talliosake 2
Sijainti
Lempäälän Talliosake 2 sijaitsee huikealla paikalla Ideaparkin kauppakeskusta vastapäätä. Vieressä sijaitseva Helsinki-Tampere -moottoritien liittymän sijainti takaa nopeat kulkuyhteydet kaikkialle Pirkanmaalla.
Muuta
Huom. ensimmäiset kolme kuukautta vuokra 1.000 € + alv
Vuokrataan vain yritysasiakkaille – vuokraan lisätään ALV 25,5%.
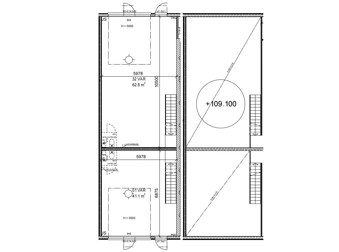
Kahdessa erillisessä tilassa molemmissa kaksi kerrosta sekä erilliset käyntiovet. Minikeittiö, suihkukaappi ja wc. Huom. tilojen välillä käynti parvella sijaitsevan välioven kautta.
Tilan 1 ensimmäisen krs:n lattiapinta-ala 41 m² ja 2. krs 36 m². Yhteispinta-ala 77 m². Tilan 32 ensimmäisen krs:n lattiapinta-ala 63 m² ja 2. krs 54 m². Yhteispinta-ala 117 m². Molempien tilojen yhteispinta-ala 194 m².
Tila on sähkölämmitteinen. Sähkönkäytön kuukausimaksu 10€ + laskutus kulutuksen mukaan 4 x vuodessa / tila. Vesimaksu kulutuksen mukaan. Vakuus kahden kuukauden vuokraa vastaava määrä. Haetaan pitkäaikaista vuokralaista. Luottotiedot tarkistetaan.
Käyttötarkoitusesimerkkejä:
- toimitila
- varastotila
- harrastetila
- kimppatalli
Tila ei sovellu autokorjaamoksi eikä autopesulaksi.
Vuokrataan vain yritysasiakkaille – vuokraan lisätään ALV 25,5%.
Kahdessa erillisessä tilassa molemmissa kaksi kerrosta sekä erilliset käyntiovet. Minikeittiö, suihkukaappi ja wc. Huom. tilojen välillä käynti parvella sijaitsevan välioven kautta.
Tilan 1 ensimmäisen krs:n lattiapinta-ala 41 m² ja 2. krs 36 m². Yhteispinta-ala 77 m². Tilan 32 ensimmäisen krs:n lattiapinta-ala 63 m² ja 2. krs 54 m². Yhteispinta-ala 117 m². Molempien tilojen yhteispinta-ala 194 m².
Tila on sähkölämmitteinen. Sähkönkäytön kuukausimaksu 10€ + laskutus kulutuksen mukaan 4 x vuodessa / tila. Vesimaksu kulutuksen mukaan. Vakuus kahden kuukauden vuokraa vastaava määrä. Haetaan pitkäaikaista vuokralaista. Luottotiedot tarkistetaan.
Käyttötarkoitusesimerkkejä:
- toimitila
- varastotila
- harrastetila
- kimppatalli
Tila ei sovellu autokorjaamoksi eikä autopesulaksi.
Vapautuu
Heti vapaa
Katutasossa
Ota yhteyttä
Talliosake Oy
Hannu Peltonen
Aluemyyntipäällikkö,
Pirkanmaa, Kanta-Häme
Näytä puhelinnumero
040 630 3150
Pyydä lisätietoa
