Vuokrataan toimistotilat - Helsinki
Sörnäisten Rantatie 29, Sörnäinen, 00500 Helsinki #10837348
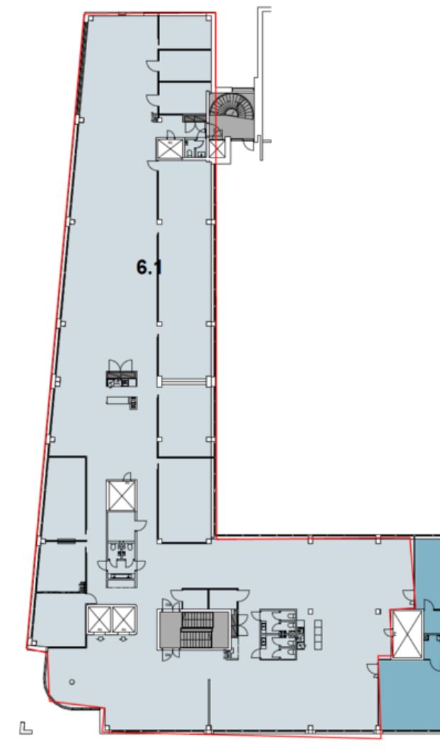
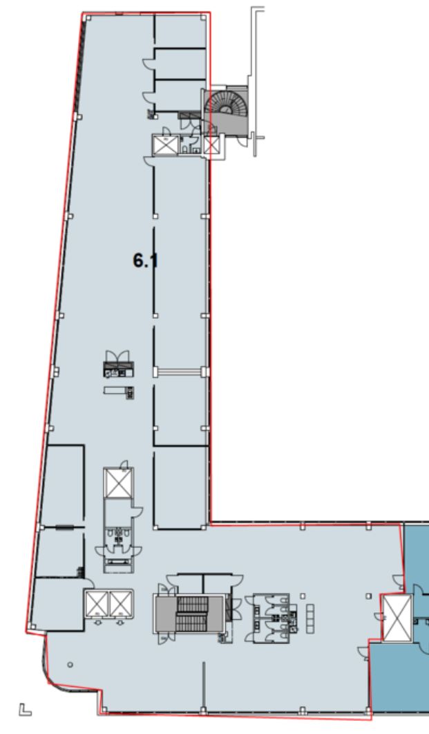
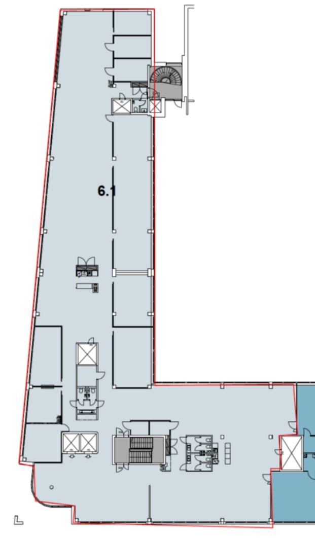
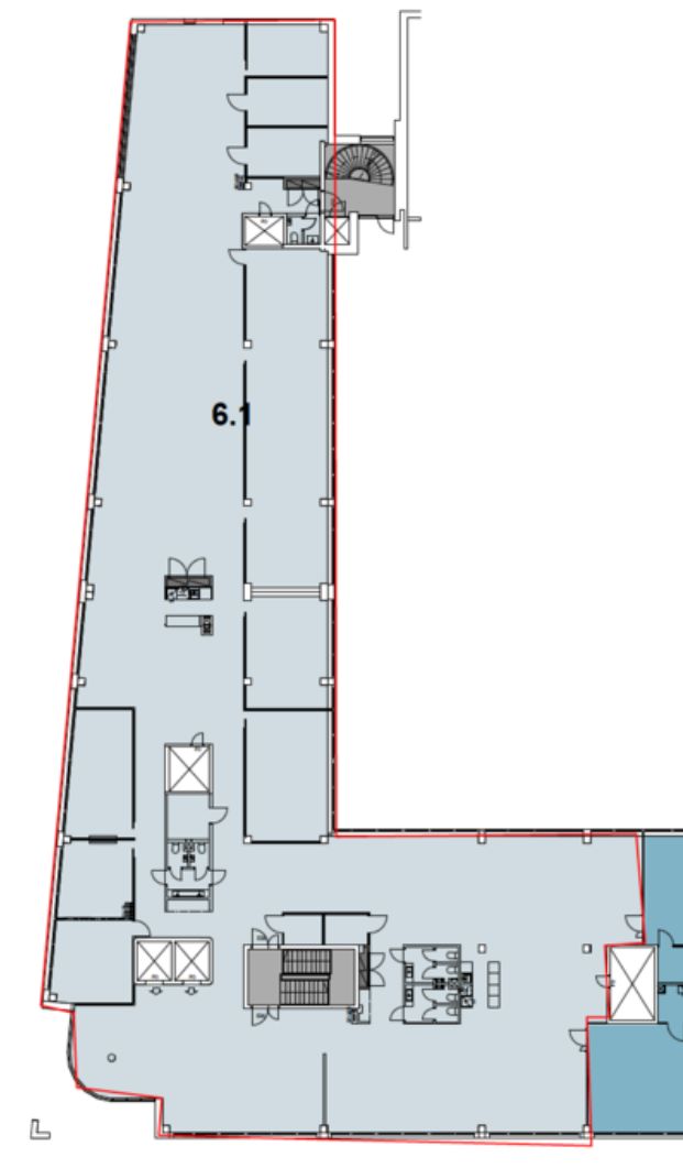
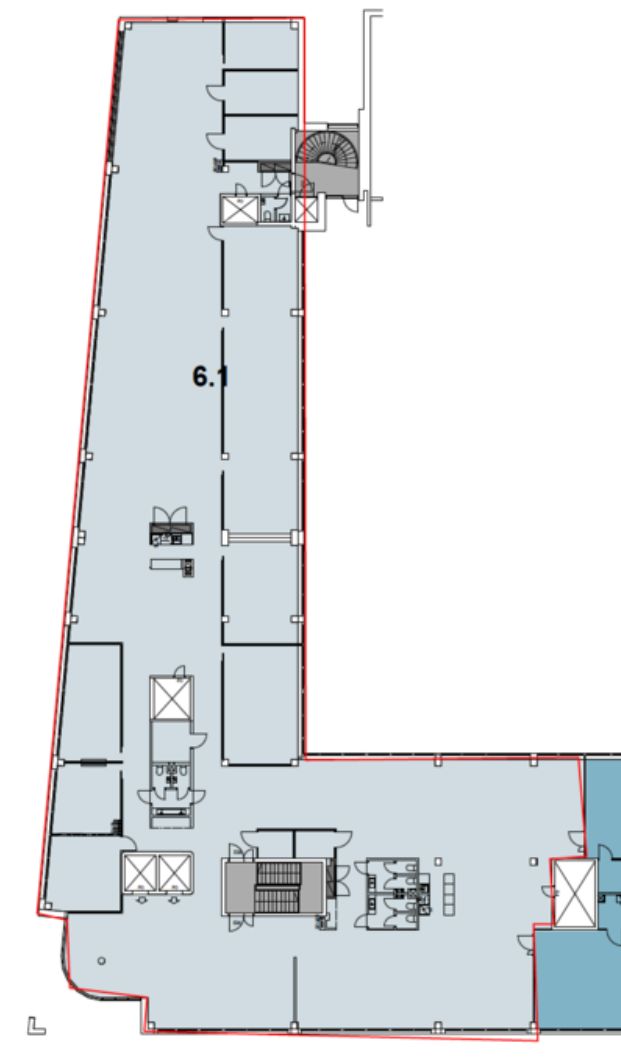
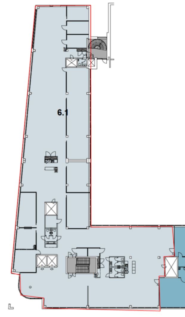
Kalasataman Kummeli - Toimisto 921,5 m²
Osoite
Sörnäisten Rantatie 29, 00500 Helsinki
Tilatyyppi
Toimistotilaa
585 - 1500 m2
Pohjapiirros
Kiinteistö
Ylimmän kerroksen toimistotila 921,5 m²
Tarjolla poikkeuksellisen valoisa ja avara monitilatoimisto Kalasataman Kummeli Business Parkin ylimmästä, 6. kerroksesta. Tämä 921,5 m² tila tarjoaa upeat näkymät Suvilahteen ja merelle, ja lähes koko kerroksesta avautuu näkymät kaikkiin suuntiin. Tilaan on hissiyhteys suoraan kerrokseen, mikä takaa sujuvan kulun, ja käytettävissä on runsaasti WC-tiloja, jotka palvelevat hyvin myös suurempaa käyttäjämäärää.
Tila on jaettavissa joustavasti esimerkiksi n. 746 m² tai 585 m² kokonaisuuksiksi, ja se voidaan tarvittaessa laajentaa jopa 1500 m² kahden kerroksen toteutuksena.
Monitilatoimistona toteutetussa tilassa on vaalea avokeittiö saarekkeella, varusteltuna astianpesukoneella, jääkaapilla ja mikroaaltouunilla. Pohjaratkaisu on helposti muokattavissa käyttäjän tarpeiden mukaan, ja tila soveltuu erinomaisesti esimerkiksi asiakaspalveluun, tiimityöhön, showroom-käyttöön tai hybridimalliin, jossa yhdistyvät asiakas- ja toimistoalueet.
Kalasataman Kummeli – Täyden palvelun Business Park merellisessä ympäristössä
Kalasataman Kummeli on moderni ja industrial-henkinen toimitilakiinteistö, joka palvelee joustavasti erikokoisia yrityksiä. Vuonna 2015 täysin remontoitu kiinteistö tarjoaa monipuolisia tilaratkaisuja pienistä toimistohuoneista suuriin kokonaisuuksiin. Yrityksille, jotka arvostavat keskeistä sijaintia, kattavia palveluita ja merellistä tunnelmaa, Kalasataman Kummeli on erinomainen valinta.
Sijainti – Keskeinen ja saavutettava
Kalasataman Kummeli sijaitsee Sörnäisten, Kalasataman ja Suvilahden solmukohdassa, Sörnäisten rantatien ja Vilhonvuorenkadun kulmassa. Alueella on erinomaiset julkiset liikenneyhteydet: lähin metroasema on noin 400 metrin päässä, raitiovaunupysäkki 350 metrin päässä ja bussipysäkki vain 110 metrin päässä. Kiinteistössä on oma pysäköintihalli ja vieraspysäköinti viereisellä sisäpihalla, mikä takaa sujuvan saavutettavuuden myös autolla.
Palvelut – Kaikki tarvittava saman katon alla
Kalasataman Kummelissa vuokralaiset hyötyvät laajasta palveluvalikoimasta:
Aulapalvelu
Lounasravintola ja catering
Vuokrattavat neuvottelutilat
Autopesula
Pyöräparkki
Pukeutumis- ja pesutilat
Office Center 3. kerroksessa palvelee pienyrittäjiä ja mahdollistaa synergiaedun palveluiden hankinnassa.
Lähialueella sijaitsevat lisäksi ravintolat, kahvilat, kuntosali, kampaamo, ruokakauppa, hotelli, lääkäriasema, auditoriotilat, Teurastamon alue ja Kauppakeskus Redi – kaikki kävelyetäisyydellä.
Vastuullisuus – Kestävä ja moderni kiinteistö
Kalasataman Kummeli on remontoitu vastuullisesti ja energiatehokkaasti. Kiinteistössä hyödynnetään moderneja ratkaisuja, jotka tukevat kestävää kehitystä ja viihtyisää työympäristöä. Yrityksesi voi toimia tiloissa, jotka vastaavat nykypäivän ympäristövaatimuksiin ja tukevat vastuullista liiketoimintaa.
Ota yhteyttä
Kiinnostuitko? Ota yhteyttä ja tule tutustumaan!
Toimitilavälityspalvelumme on tilanhakijalle maksuton.
Tarjolla poikkeuksellisen valoisa ja avara monitilatoimisto Kalasataman Kummeli Business Parkin ylimmästä, 6. kerroksesta. Tämä 921,5 m² tila tarjoaa upeat näkymät Suvilahteen ja merelle, ja lähes koko kerroksesta avautuu näkymät kaikkiin suuntiin. Tilaan on hissiyhteys suoraan kerrokseen, mikä takaa sujuvan kulun, ja käytettävissä on runsaasti WC-tiloja, jotka palvelevat hyvin myös suurempaa käyttäjämäärää.
Tila on jaettavissa joustavasti esimerkiksi n. 746 m² tai 585 m² kokonaisuuksiksi, ja se voidaan tarvittaessa laajentaa jopa 1500 m² kahden kerroksen toteutuksena.
Monitilatoimistona toteutetussa tilassa on vaalea avokeittiö saarekkeella, varusteltuna astianpesukoneella, jääkaapilla ja mikroaaltouunilla. Pohjaratkaisu on helposti muokattavissa käyttäjän tarpeiden mukaan, ja tila soveltuu erinomaisesti esimerkiksi asiakaspalveluun, tiimityöhön, showroom-käyttöön tai hybridimalliin, jossa yhdistyvät asiakas- ja toimistoalueet.
Kalasataman Kummeli – Täyden palvelun Business Park merellisessä ympäristössä
Kalasataman Kummeli on moderni ja industrial-henkinen toimitilakiinteistö, joka palvelee joustavasti erikokoisia yrityksiä. Vuonna 2015 täysin remontoitu kiinteistö tarjoaa monipuolisia tilaratkaisuja pienistä toimistohuoneista suuriin kokonaisuuksiin. Yrityksille, jotka arvostavat keskeistä sijaintia, kattavia palveluita ja merellistä tunnelmaa, Kalasataman Kummeli on erinomainen valinta.
Sijainti – Keskeinen ja saavutettava
Kalasataman Kummeli sijaitsee Sörnäisten, Kalasataman ja Suvilahden solmukohdassa, Sörnäisten rantatien ja Vilhonvuorenkadun kulmassa. Alueella on erinomaiset julkiset liikenneyhteydet: lähin metroasema on noin 400 metrin päässä, raitiovaunupysäkki 350 metrin päässä ja bussipysäkki vain 110 metrin päässä. Kiinteistössä on oma pysäköintihalli ja vieraspysäköinti viereisellä sisäpihalla, mikä takaa sujuvan saavutettavuuden myös autolla.
Palvelut – Kaikki tarvittava saman katon alla
Kalasataman Kummelissa vuokralaiset hyötyvät laajasta palveluvalikoimasta:
Aulapalvelu
Lounasravintola ja catering
Vuokrattavat neuvottelutilat
Autopesula
Pyöräparkki
Pukeutumis- ja pesutilat
Office Center 3. kerroksessa palvelee pienyrittäjiä ja mahdollistaa synergiaedun palveluiden hankinnassa.
Lähialueella sijaitsevat lisäksi ravintolat, kahvilat, kuntosali, kampaamo, ruokakauppa, hotelli, lääkäriasema, auditoriotilat, Teurastamon alue ja Kauppakeskus Redi – kaikki kävelyetäisyydellä.
Vastuullisuus – Kestävä ja moderni kiinteistö
Kalasataman Kummeli on remontoitu vastuullisesti ja energiatehokkaasti. Kiinteistössä hyödynnetään moderneja ratkaisuja, jotka tukevat kestävää kehitystä ja viihtyisää työympäristöä. Yrityksesi voi toimia tiloissa, jotka vastaavat nykypäivän ympäristövaatimuksiin ja tukevat vastuullista liiketoimintaa.
Ota yhteyttä
Kiinnostuitko? Ota yhteyttä ja tule tutustumaan!
Toimitilavälityspalvelumme on tilanhakijalle maksuton.
Vapautuu
Kysy
Kerros
6
Ota yhteyttä
Logistila Oy
Kylätie 11-13, 00320 HELSINKI
Karoliina Turppo
Näytä puhelinnumero
050 345 3258
Pyydä lisätietoa
