Vuokrataan toimistotilat, varastotilat - Helsinki
Konepajankuja 6, Vallila, 00510 Helsinki #10836254
Helsingin Konepajankuja 6 - Toimisto 4211 m² + varasto 710 m²
Osoite
Konepajankuja 6, 00510 Helsinki
Tilatyyppi
Toimistotilaa
4211 m2
Varastotilaa
710 m2
Yhteensä
4921 m2
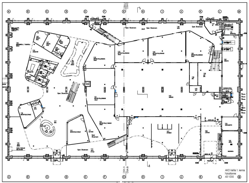
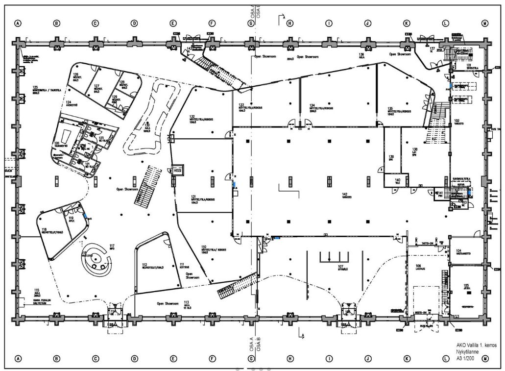
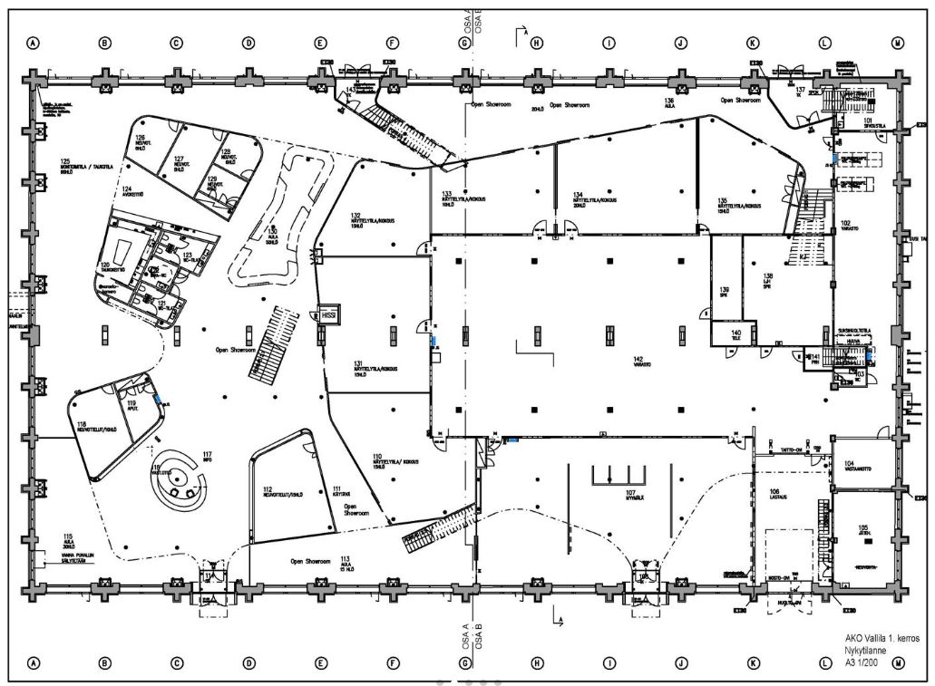
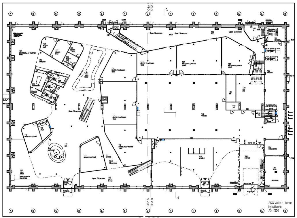
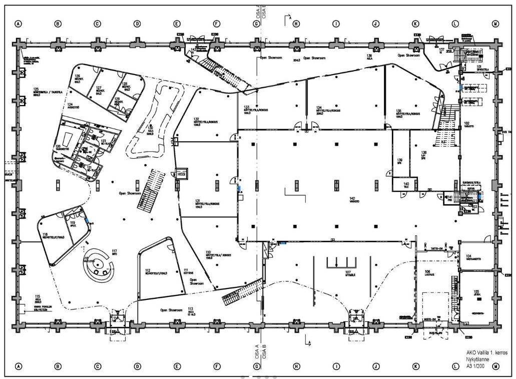
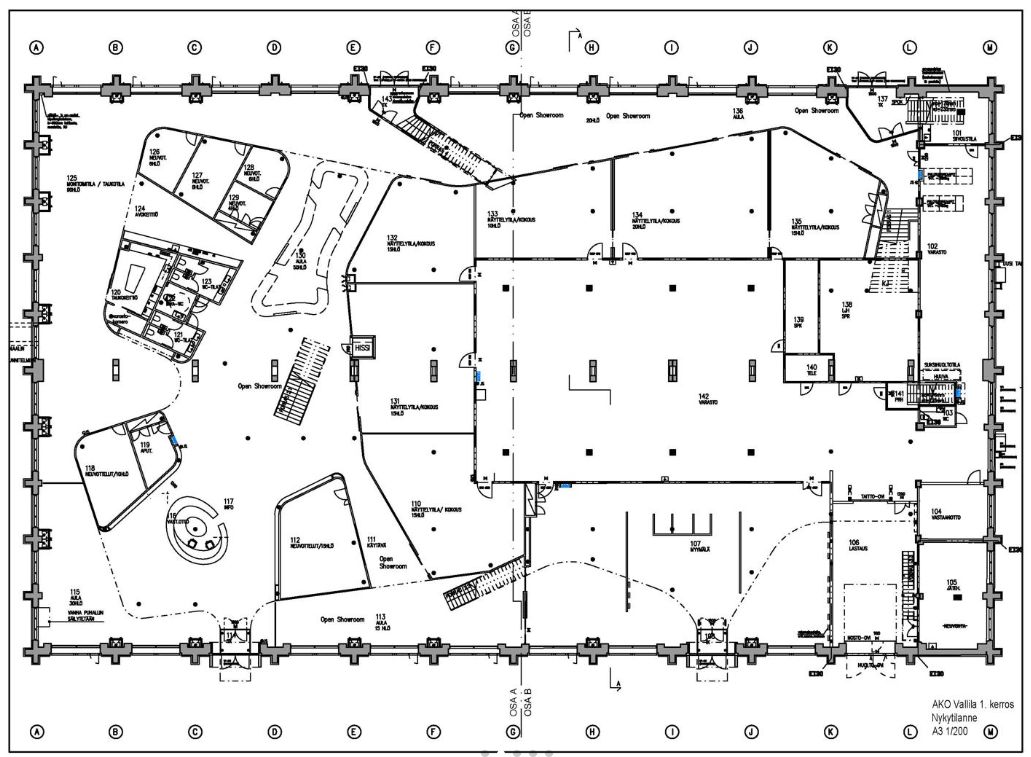
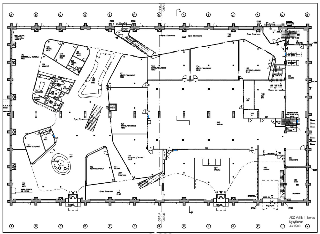
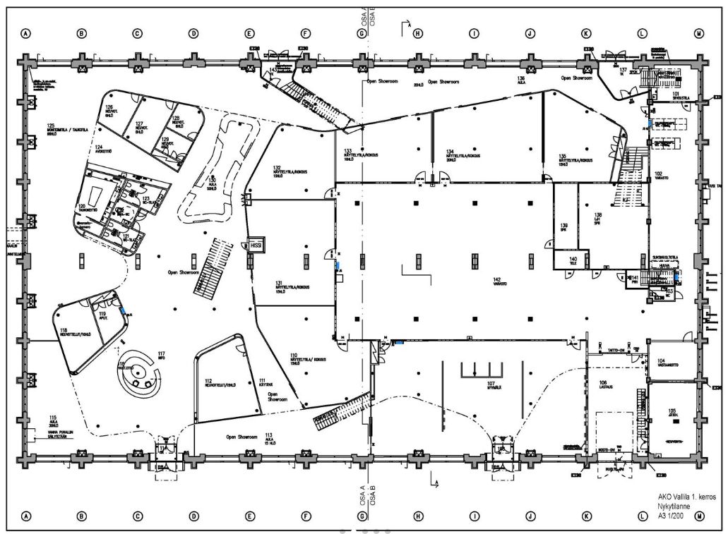
Pohjapiirros
Kiinteistö
Ainutlaatuinen pääkonttoritason toimistokohde historiallisessa Konepajassa
Konepajankuja 6 tarjoaa harvinaisen mahdollisuuden vuokrata kokonaisuus, joka yhdistää teollisuushistoriallisen arvokkuuden ja modernin toimitilamukavuuden. Tämä täysin saneerattu, pääkonttoritasoinen toimistorakennus sijaitsee Helsingin Vallilan Konepajan alueella urbaanin kulttuurin ja liiketoiminnan keskiössä.
Kiinteistö on valmistunut vuonna 1919 Valtionrautateiden konepajan aluskehysosastoksi. Teollinen toiminta päättyi vuonna 1995, ja perusteellinen saneeraus nykyiseen käyttöön valmistui vuonna 2014 muuttaen kiinteistön pääkonttoritasoiseksi toimistorakennukseksi. Kiinteistön arkkitehtuuri, punatiilinen ulkoasu ja ilmavat tilaratkaisut henkivät aitoa industrial-henkeä, joka yhdistyy moderniin toimistomukavuuteen.
Kohde kattaa yhteensä 4921 m², jakaantuen kahteen kerrokseen ja varastoalueeseen:
Ensimmäisessä kerroksessa (2126 m²) sijaitsevat näyttävä sisääntuloaula ja vastaanotto, useita neuvottelutiloja, showroom-tiloja sekä tyylikäs lounge-/monitoimitila. Amer Sportsin nykyinen myymälä on muunneltavissa toimistokäyttöön. Lisäksi samassa kerroksessa on 710 m² varastotilaa, johon on oma lastausovi ja toimiva lastausalue.
Toisessa kerroksessa (1792 m²) on toimistotilat, jotka sisältävät avotilaa, neuvotteluhuoneita, vetäytymistiloja ja toimistohuoneita. Vuokralaiset pääsevät nauttimaan myös kuntosalista ja saunaosastosta.
Kerrokset yhdistää näyttävä sisäporras, joka korostaa rakennuksen arkkitehtonista ilmettä.
Sijainti
Konepajankuja 6 sijaitsee Helsingin Vallilan Konepajan alueella, joka tunnetaan teollisuushistoriallisesti ja rakennustaiteellisesti arvokkaana ympäristönä.
Lähimmät pysäkit ja asemat:
Metroasema: 1,6 km
Raitiovaunupysäkki: 130 m
Bussipysäkki: 510 m
Juna-asema (Pasila): 1,5 km
Lentoasema: 17 km
Sijainti on erinomainen: Tripla ja Sörnäisten metroasema ovat kävelyetäisyydellä, ja alueella on runsaasti palveluita ja ravintoloita.
Palvelut
Kiinteistö tarjoaa vuokralaisilleen korkeatasoiset palvelut, jotka tukevat viihtyisää ja tehokasta työskentelyä:
Saunaosasto
Kuntosali
Pukeutumis- ja pesutilat
Lounge-/monitoimitila
Showroom-tiloja
Neuvotteluhuoneita
Varastotila omalla lastausovella
Vieraspysäköinti Aleksis Kiven kadulla
Pysäköintihalli: The Train Factory
Lähialueen palvelut sisältävät ravintoloita, kahviloita, hotellin, ruokakaupan, kioskin, pesulan, postin sekä kampaamon/parturin.
Pysäköinti on järjestetty kätevästi The Train Factoryn pysäköintihallissa sekä vieraspysäköintipaikoilla Aleksis Kiven kadulla.
Vastuullisuus
Kohde on saneerattu vastuullisesti ja laadukkaasti. Rakennuksella on BREEAM In-Use -sertifikaatti, tasolla Very Good (suunnittelu ja rakentaminen).
Ota yhteyttä
Kiinnostuitko? Ota yhteyttä ja tule tutustumaan! Toimitilavälityspalvelumme on tilanhakijalle maksuton.
Konepajankuja 6 tarjoaa harvinaisen mahdollisuuden vuokrata kokonaisuus, joka yhdistää teollisuushistoriallisen arvokkuuden ja modernin toimitilamukavuuden. Tämä täysin saneerattu, pääkonttoritasoinen toimistorakennus sijaitsee Helsingin Vallilan Konepajan alueella urbaanin kulttuurin ja liiketoiminnan keskiössä.
Kiinteistö on valmistunut vuonna 1919 Valtionrautateiden konepajan aluskehysosastoksi. Teollinen toiminta päättyi vuonna 1995, ja perusteellinen saneeraus nykyiseen käyttöön valmistui vuonna 2014 muuttaen kiinteistön pääkonttoritasoiseksi toimistorakennukseksi. Kiinteistön arkkitehtuuri, punatiilinen ulkoasu ja ilmavat tilaratkaisut henkivät aitoa industrial-henkeä, joka yhdistyy moderniin toimistomukavuuteen.
Kohde kattaa yhteensä 4921 m², jakaantuen kahteen kerrokseen ja varastoalueeseen:
Ensimmäisessä kerroksessa (2126 m²) sijaitsevat näyttävä sisääntuloaula ja vastaanotto, useita neuvottelutiloja, showroom-tiloja sekä tyylikäs lounge-/monitoimitila. Amer Sportsin nykyinen myymälä on muunneltavissa toimistokäyttöön. Lisäksi samassa kerroksessa on 710 m² varastotilaa, johon on oma lastausovi ja toimiva lastausalue.
Toisessa kerroksessa (1792 m²) on toimistotilat, jotka sisältävät avotilaa, neuvotteluhuoneita, vetäytymistiloja ja toimistohuoneita. Vuokralaiset pääsevät nauttimaan myös kuntosalista ja saunaosastosta.
Kerrokset yhdistää näyttävä sisäporras, joka korostaa rakennuksen arkkitehtonista ilmettä.
Sijainti
Konepajankuja 6 sijaitsee Helsingin Vallilan Konepajan alueella, joka tunnetaan teollisuushistoriallisesti ja rakennustaiteellisesti arvokkaana ympäristönä.
Lähimmät pysäkit ja asemat:
Metroasema: 1,6 km
Raitiovaunupysäkki: 130 m
Bussipysäkki: 510 m
Juna-asema (Pasila): 1,5 km
Lentoasema: 17 km
Sijainti on erinomainen: Tripla ja Sörnäisten metroasema ovat kävelyetäisyydellä, ja alueella on runsaasti palveluita ja ravintoloita.
Palvelut
Kiinteistö tarjoaa vuokralaisilleen korkeatasoiset palvelut, jotka tukevat viihtyisää ja tehokasta työskentelyä:
Saunaosasto
Kuntosali
Pukeutumis- ja pesutilat
Lounge-/monitoimitila
Showroom-tiloja
Neuvotteluhuoneita
Varastotila omalla lastausovella
Vieraspysäköinti Aleksis Kiven kadulla
Pysäköintihalli: The Train Factory
Lähialueen palvelut sisältävät ravintoloita, kahviloita, hotellin, ruokakaupan, kioskin, pesulan, postin sekä kampaamon/parturin.
Pysäköinti on järjestetty kätevästi The Train Factoryn pysäköintihallissa sekä vieraspysäköintipaikoilla Aleksis Kiven kadulla.
Vastuullisuus
Kohde on saneerattu vastuullisesti ja laadukkaasti. Rakennuksella on BREEAM In-Use -sertifikaatti, tasolla Very Good (suunnittelu ja rakentaminen).
Ota yhteyttä
Kiinnostuitko? Ota yhteyttä ja tule tutustumaan! Toimitilavälityspalvelumme on tilanhakijalle maksuton.
Vapautuu
Kysy
Kerros
1-2
Ota yhteyttä
Logistila Oy
Kylätie 11-13, 00320 HELSINKI
Karoliina Turppo
Näytä puhelinnumero
050 345 3258
Pyydä lisätietoa
