Vuokrataan toimistotilat - Helsinki
Bulevardi 1 Mannerheimintie 2, Kamppi, 00100 Helsinki #10836135
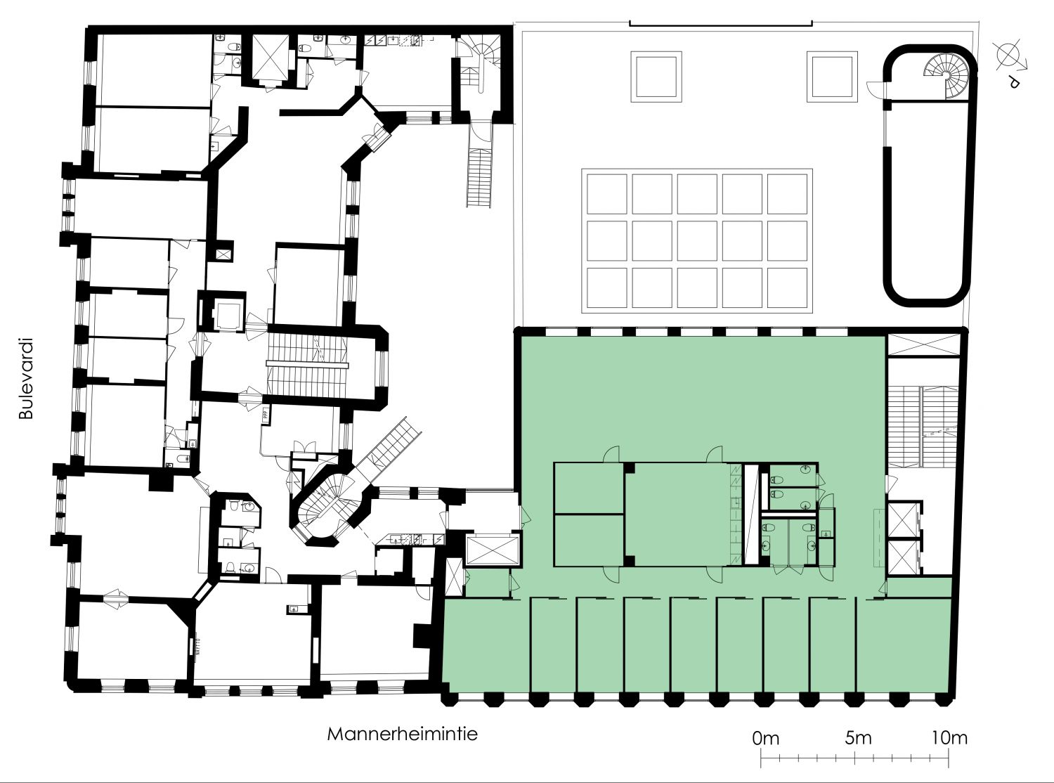
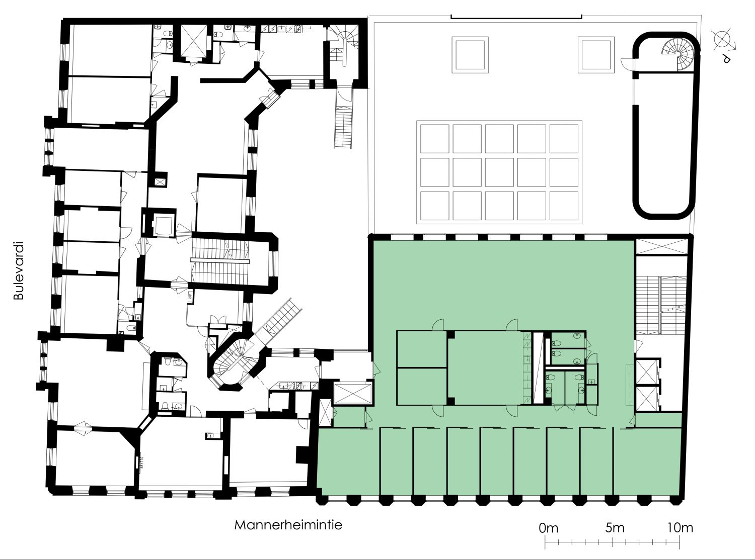
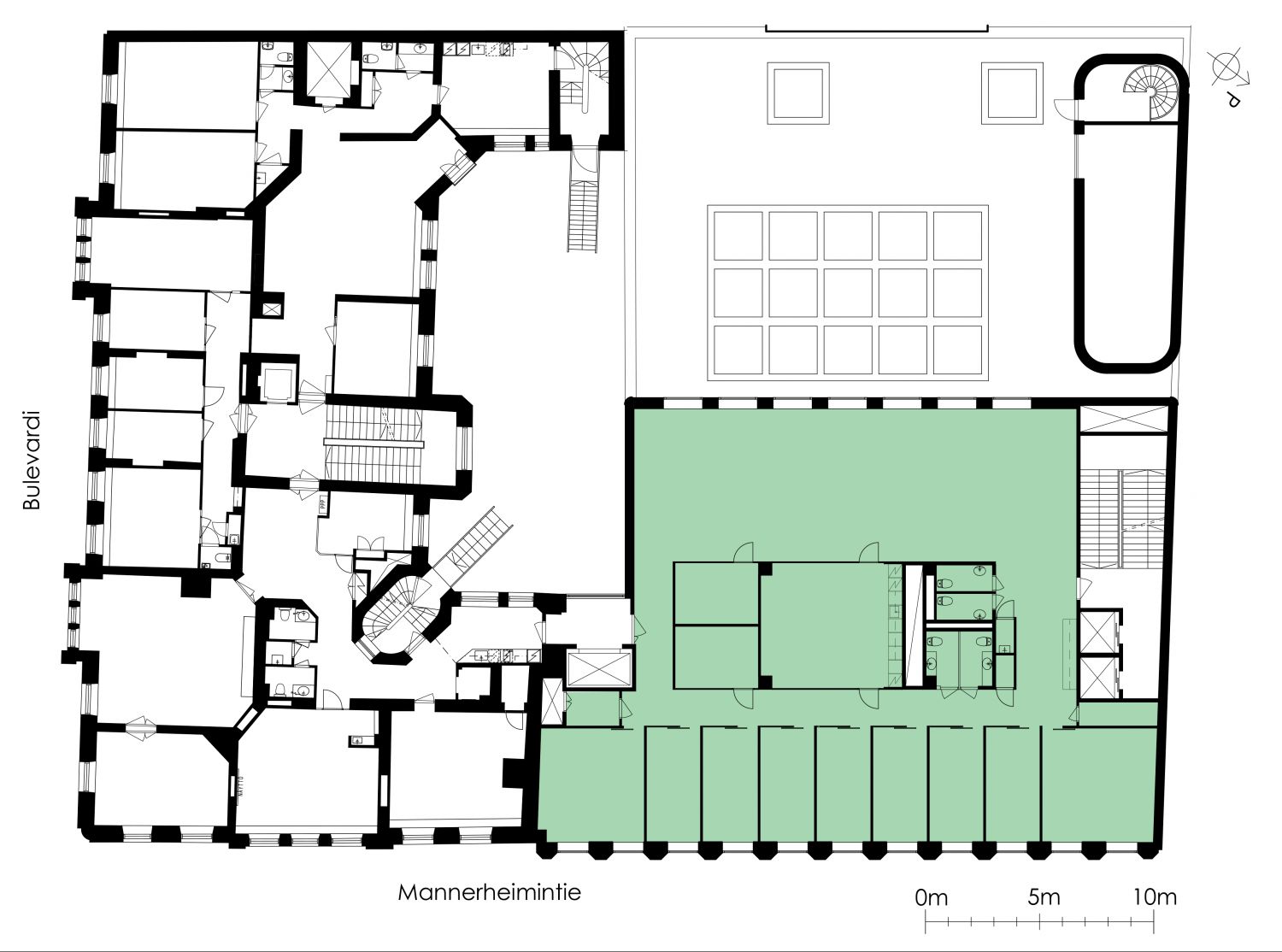
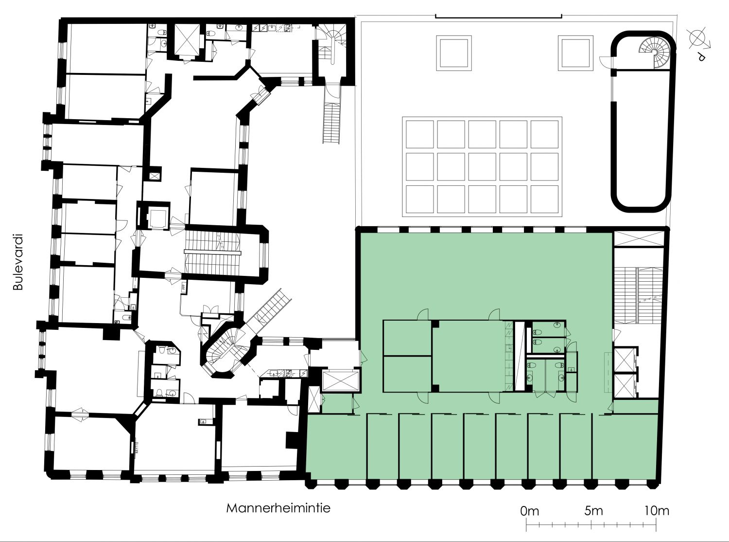
Vapautuu kesällä 2026; 2. kerroksen tyylikästä hybriditoimistotilaa, ikkunanäkymät Mannerheimintielle.
Osoite
Bulevardi 1 Mannerheimintie 2, 00100 Helsinki
Tilatyyppi
Toimistotilaa
404 m2
Pohjapiirros
Kiinteistö
Komea, käyttäjänsä tarpeisiin mukautuva arvokiinteistö upealla sijainnilla Mannerheimintien ja Bulevardin kulmassa.
Alun perin viehättävänä asuinrakennuksena toiminut kiinteistö on muokattu tehokkaasti toimitilakäyttöön sopivaksi.
Theodor Höjerin suunnitteleman rakennuksen sisätiloihin astuttaessa porraskäytävän upeat katto- ja seinämaalaukset vangitsevat katseen. Vuonna 1890 valmistunut rakennus on entisöity huolellisesti ja tilat muuntautuvat sulavasti käyttäjänsä tarpeisiin.
Keskeisellä paikalla sijaitsevalta kiinteistöltä on hyvät liikenneyhteydet. Mannerheimintiellä ja Bulevardilla liikennöivät bussit sekä raitiovaunut ja Helsingin päärautatieasemakin on aivan lähellä. Viihtyisyyttä alueella lisäävät lähellä sijaitsevat Vanha kirkkopuisto ja Esplanadin puisto.
Kiinteistölle on myönnetty BREEAM In-Use sertifikaatti tasolla Excellent (part 1 – kiinteistö) ja Outstanding (part 2 – ylläpito). Kiinteistö toimii 100 % päästöttömällä energialla, kuten tuulisähköllä ja uusiutuvalla kaukolämmöllä.
Alun perin viehättävänä asuinrakennuksena toiminut kiinteistö on muokattu tehokkaasti toimitilakäyttöön sopivaksi.
Theodor Höjerin suunnitteleman rakennuksen sisätiloihin astuttaessa porraskäytävän upeat katto- ja seinämaalaukset vangitsevat katseen. Vuonna 1890 valmistunut rakennus on entisöity huolellisesti ja tilat muuntautuvat sulavasti käyttäjänsä tarpeisiin.
Keskeisellä paikalla sijaitsevalta kiinteistöltä on hyvät liikenneyhteydet. Mannerheimintiellä ja Bulevardilla liikennöivät bussit sekä raitiovaunut ja Helsingin päärautatieasemakin on aivan lähellä. Viihtyisyyttä alueella lisäävät lähellä sijaitsevat Vanha kirkkopuisto ja Esplanadin puisto.
Kiinteistölle on myönnetty BREEAM In-Use sertifikaatti tasolla Excellent (part 1 – kiinteistö) ja Outstanding (part 2 – ylläpito). Kiinteistö toimii 100 % päästöttömällä energialla, kuten tuulisähköllä ja uusiutuvalla kaukolämmöllä.
Sijainti
Kiinteistö sijaitsee Helsingin ydinkeskustassa, Bulevardin ja Mannerheimintien kulmassa. Kaikki ydinkeskustan julkiset liikenneyhteydet ovat lyhyen kävelymatkan etäisyydellä.
Pysäköinti
Erottajan Aimo Park Bulevardilla
Palvelut
Työmatkapyöräilijöitä varten kiinteistöstä löytyy polkupyöräparkki sekä suihkut ja pukuhuoneet. Kaikki ydinkeskustan palvelut sijaitsevat kävelymatkan etäisyydellä.
Kulkuyhteydet
Lähimmälle bussipysäkille 50 m
Lähimmälle juna-asemalle 550 m
Lähimmälle metroasemalle 500 m
Lähimmälle raitiovaunupysäkille 30 m
Lentokentälle 35 min
Lähimmälle juna-asemalle 550 m
Lähimmälle metroasemalle 500 m
Lähimmälle raitiovaunupysäkille 30 m
Lentokentälle 35 min
Vapautuu
Kysy
Rakennusvuosi
1890
Kerros
2
Energiatehokkuusluokka
B2018
Ympäristöluokitus
BREEAM In-Use Excellent,GRESB Global Sector Leader 2025
Ota yhteyttä
Sponda Oy
Yrjönkatu 29C, 00100 Helsinki
Näytä puhelinnumero
020 43131
Harri Autio
Director, Leasing
Näytä puhelinnumero
+358 40 846 6560
Sponda Oy
https://www.sponda.fiPyydä lisätietoa
