Myydään muut tilat - Oulu
Oritkarintie 7, Äimärautio, 90400 Oulu #10835728
Myydään Oritkarintien päässä oleva laadukas, monipuolinen toimitilakohde. Kohde vuokrattu ja vapautuu uudelle omistajalle 1.4.2026. Kauppa toteutetaan myymällä Kiinteistö Oy Oulun Makason koko osakekanta, varainsiirtovero 1,5% kauppahinnasta.
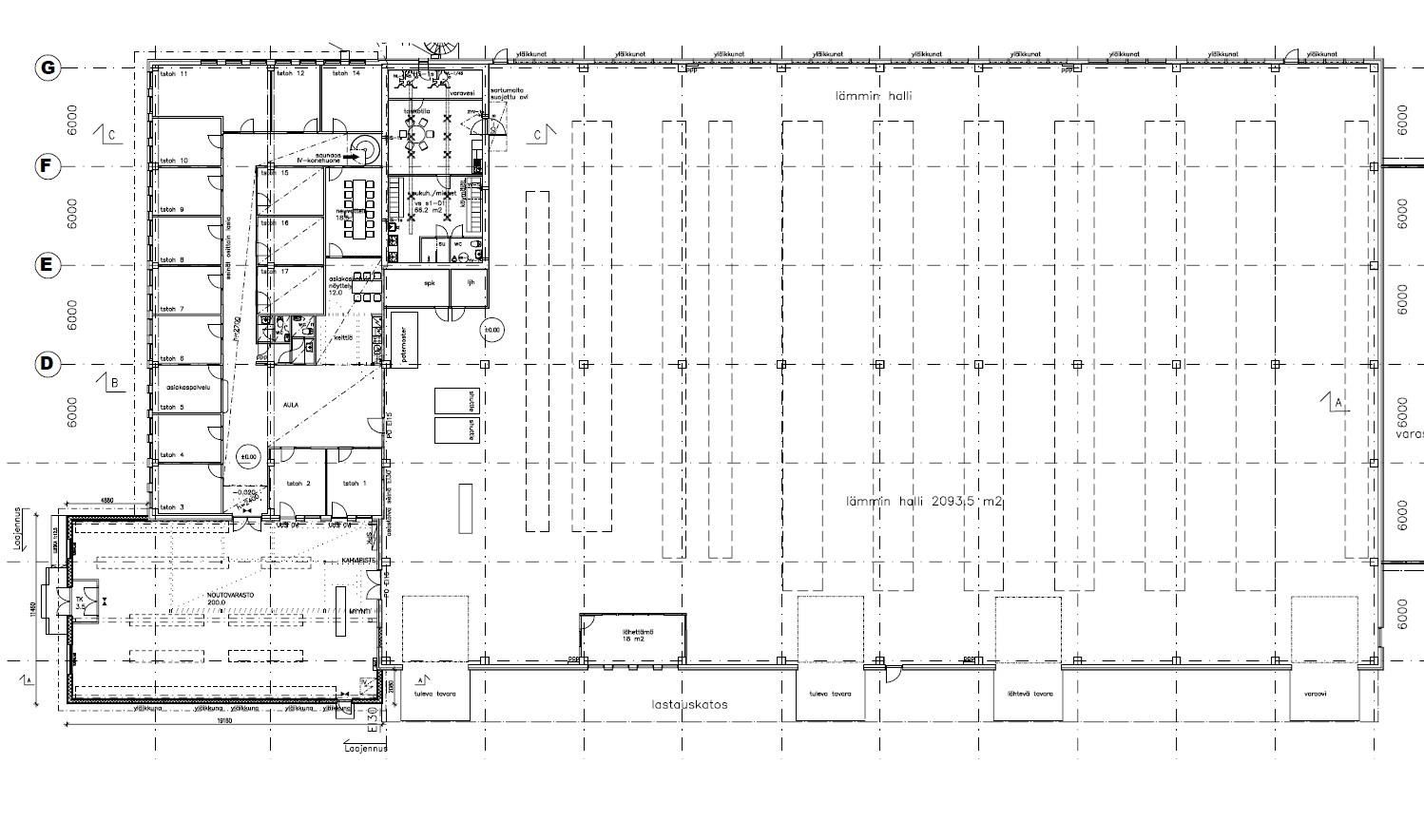
Kiinteistön yleiskunto tip-top. Hallitiloihin neljä suurta nosto-ovea. Hallin pinta-ala noin: 2100m2
Kohde sijaitsee kaupungin vuokratontilla, jonka pinta-ala on 2 ha. Kokonaisrakennusoikeus: 10000m2. Tontin vuokrasopimus voimassa: 31.12.2040 saakka. Laajat asfaltoidut piha-alueet. Tontti ympäriajettava.
Kohde valmistunut 2/2003, varastokatos rakennettu 9/2013 ja rakennusta laajennettu 8/2019. Kohteen huoneistoala: 2716m2 ja kerrosala 2916, kokonaistilavuus: 21272m3
Kohteen rakennustiedot ja historia hyvin tiedossa. Esittelyt ja lisätietoa Julia Hoikkala 050 411 8747 tai julia.hoikkala@op.fi.
Kohde sijaitsee kaupungin vuokratontilla, jonka pinta-ala on 2 ha. Kokonaisrakennusoikeus: 10000m2. Tontin vuokrasopimus voimassa: 31.12.2040 saakka.
Kohde valmistunut 2/2003, varastokatos rakennettu 9/2013 ja rakennusta laajennettu 8/2019.
Hallin vapaakorkeus: korkeimmillaan 6,77m, hallin takaosassa: 6m.
Hallin sisäkorkeus ulkoseinän kohdalla on 7000 mm ja keskellä n. 7850 mm. Katon palkin korkeus on 1100mm.
Muut tilat:
Huoneistoala: 2716m2, kerrossala: 2916 k-m2, tilavuus: 21272 m3.
Jaettavissa
OP Koti Pohjoinen Oy LKV
Toimitila- ja vuokravälitys
Lekatie 6
90140 OULU
Julia Hoikkala
Myyntineuvottelija, Toimitilat, LVV, Trad.
Näytä puhelinnumero
050 411 8747
