Vuokrataan/myydään tuotantotilat - Pirkkala
Jasperintie 270 A 11-12, 33960 Pirkkala #10835549
Monikäyttöistä työ-/tuotantotilaa Pirkkalassa
Osoite
Jasperintie 270 A 11-12, 33960 Pirkkala
Tilatyyppi
Tuotantotilaa
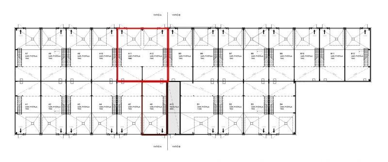
192 m2
Muuta
Vuokrattavana tai myytävänä monikäyttöinen työ-/tuotantotila Pirkkalan Lentokentän risteysalueelta. Kohde sijaitsee kehittyvän alueen pääkadun varrella, joka yhdistää Lentokentän risteyksen ja Linnankallion alueet. Keskeinen sijainti takaa hyvät kulkuyhteydet: Valtatie 3, Pirkkalan keskusta (3 km), Tampereen keskusta (13,5 km) sekä lentoasema (4,5 km) ovat helposti saavutettavissa. Alueen saavutettavuus paranee entisestään tulevaisuudessa, kun LempääläâPirkkala-ohitustien liittymä valmistuu aivan kohteen viereen.
Kiinteistön pihalla on pysäköintimahdollisuus.
Tila A11â12 on kooltaan 192 m² ja soveltuu erinomaisesti esimerkiksi työ-, tuotanto- tai varastokäyttöön. Halutessa tilaan on mahdollista liittää viereinen B7-osio, jonka pinta-ala on 96 m². Tilan suunnittelussa on huomioitu muunneltavuus, joten se mukautuu monenlaisiin käyttötarkoituksiin. Tilassa oleva parvi on myös mahdollista purkaa.
Rakennus on toteutettu nykyaikaisin ratkaisuin ja kustannustehokas maalämpö sekä vesikiertoinen lattialämmitys pitävät käyttökustannukset maltillisina. Tilassa on koneellinen ilmanvaihto lämmöntalteenotolla, erillinen tauko-/toimistotila avokeittiöllä, wc-tila suihkuvarauksella sekä korkea huonekorkeus (yli 4,5 m). Lisäksi tilassa on voimavirta, lattiakaivo öljyn- ja hiekanerottimella, vesipiste, erillinen käyntiovi sekä sähkökäyttöinen nosto-ovi tavaraliikennettä varten.
Tila vapautuu 30.11.2025.
Tervetuloa tutustumaan, varaathan välittäjältä oman esittelyaikasi. Voit kysyä meiltä myös muita sopivia vaihtoehtoja, kauttamme löydät juuri Teidän tarpeisiinne sopivat tilat. Palvelumme on tilanhakijalle veloitukseton!
Kiinteistön pihalla on pysäköintimahdollisuus.
Tila A11â12 on kooltaan 192 m² ja soveltuu erinomaisesti esimerkiksi työ-, tuotanto- tai varastokäyttöön. Halutessa tilaan on mahdollista liittää viereinen B7-osio, jonka pinta-ala on 96 m². Tilan suunnittelussa on huomioitu muunneltavuus, joten se mukautuu monenlaisiin käyttötarkoituksiin. Tilassa oleva parvi on myös mahdollista purkaa.
Rakennus on toteutettu nykyaikaisin ratkaisuin ja kustannustehokas maalämpö sekä vesikiertoinen lattialämmitys pitävät käyttökustannukset maltillisina. Tilassa on koneellinen ilmanvaihto lämmöntalteenotolla, erillinen tauko-/toimistotila avokeittiöllä, wc-tila suihkuvarauksella sekä korkea huonekorkeus (yli 4,5 m). Lisäksi tilassa on voimavirta, lattiakaivo öljyn- ja hiekanerottimella, vesipiste, erillinen käyntiovi sekä sähkökäyttöinen nosto-ovi tavaraliikennettä varten.
Tila vapautuu 30.11.2025.
Tervetuloa tutustumaan, varaathan välittäjältä oman esittelyaikasi. Voit kysyä meiltä myös muita sopivia vaihtoehtoja, kauttamme löydät juuri Teidän tarpeisiinne sopivat tilat. Palvelumme on tilanhakijalle veloitukseton!
Vapautuu
Kysy
Ota yhteyttä
Tuloskiinteistöt Oy
Finlaysoninkatu 4, 33210 Tampere
Näytä puhelinnumero
050 502 4639
Tara Särkinen
Commercial Real Estate Advisor
Näytä puhelinnumero
+358443187720
Sanna Eerilä-Vänni
Director, Partner
Näytä puhelinnumero
+358 50 5024639
Pyydä lisätietoa
