Vuokrataan tuotantotilat, varastotilat - Lahti
Lakkilantie 4, 15150 Lahti #10835536
Juuri vapautunut erittäin siisti valoisa hyvä tuotanto/varasto/näyttelytilaksi sopiva toimitila. Varastossa on kaksi suurta nosto-ovea. Lattiakaivot. Piha on kokonaan asfaltoitu
Erittäin siisti jäähdytetty toimisto jossa, keittiö ja wc tilat.
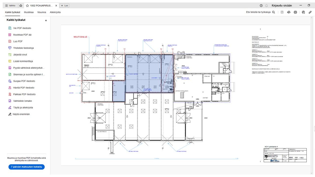
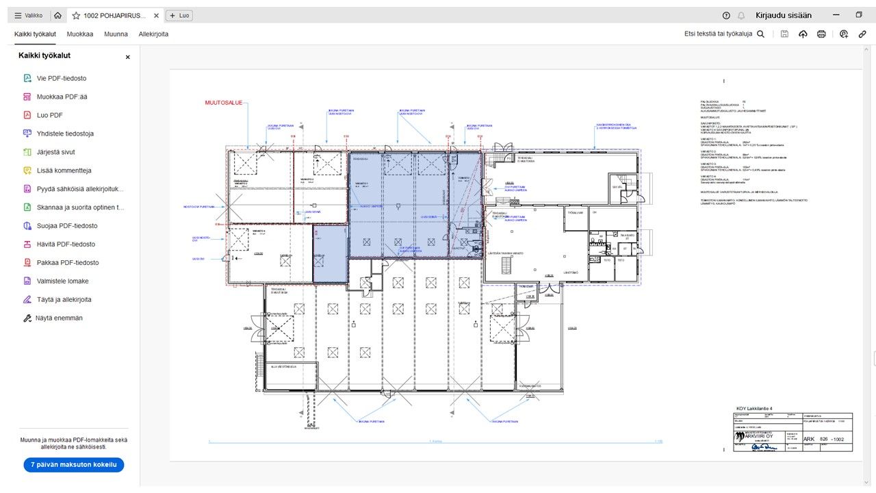
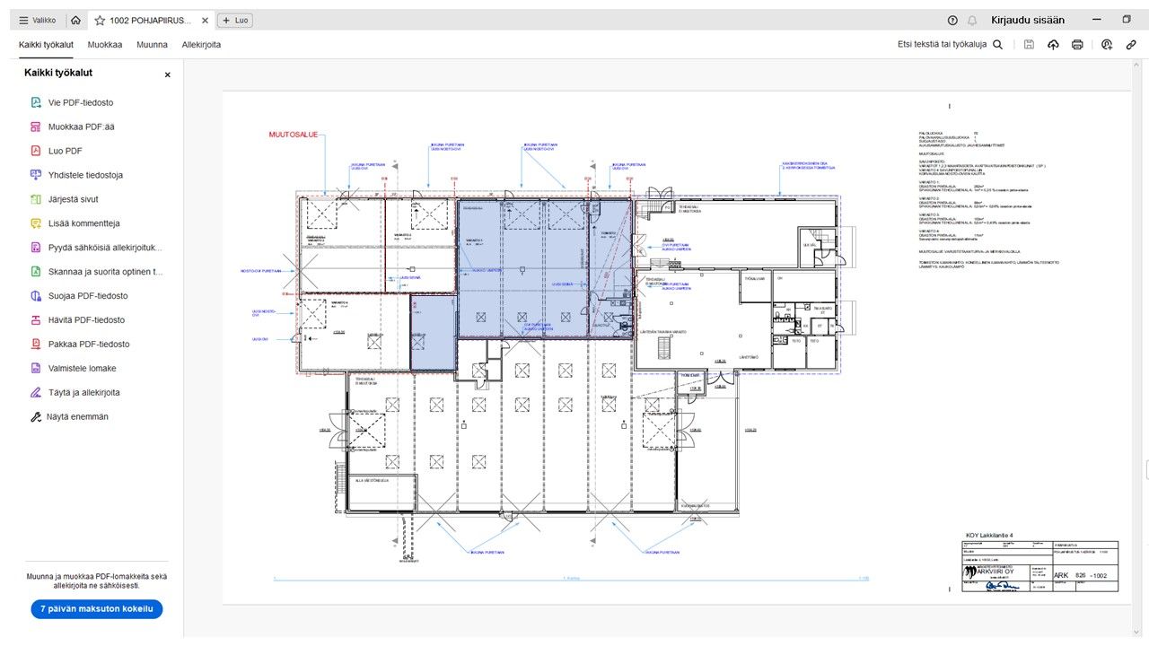
Ohessa olevassa koko kiinteistön pohjakuvassa tämän tilan sijainti on merkitty sinisellä täyttövärillä.
Tiedustelut ja esittelyt kohteesta 0400891057/0207290710
Lisää kohteita www.premises.fi
Osoite
Lakkilantie 4, 15150 Lahti
Tilatyyppi
Tuotantotilaa
365 m2
Varastotilaa
365 m2
Yhteensä
365 m2
Ota yhteyttä
CRE PREMISES
Puh. Näytä puhelinnumero 020 7290 710
Vantaankoskentie 14
01670 VANTAA
Pyydä lisätietoa
