Vuokrataan toimistotilat - Helsinki
Mannerheimintie 4, Kamppi, 00100 Helsinki #10835510
Vapautumassa siistikuntoinen ja kompakti toimistotila. Tilasta on suora kulkuyhteys lastausalueelle ja tavarahissiin, mikä tekee logistiikasta sujuvaa ja tehokasta.
Osoite
Mannerheimintie 4, 00100 Helsinki
Tilatyyppi
Toimistotilaa
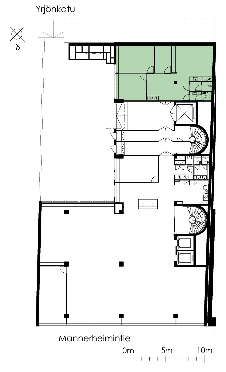
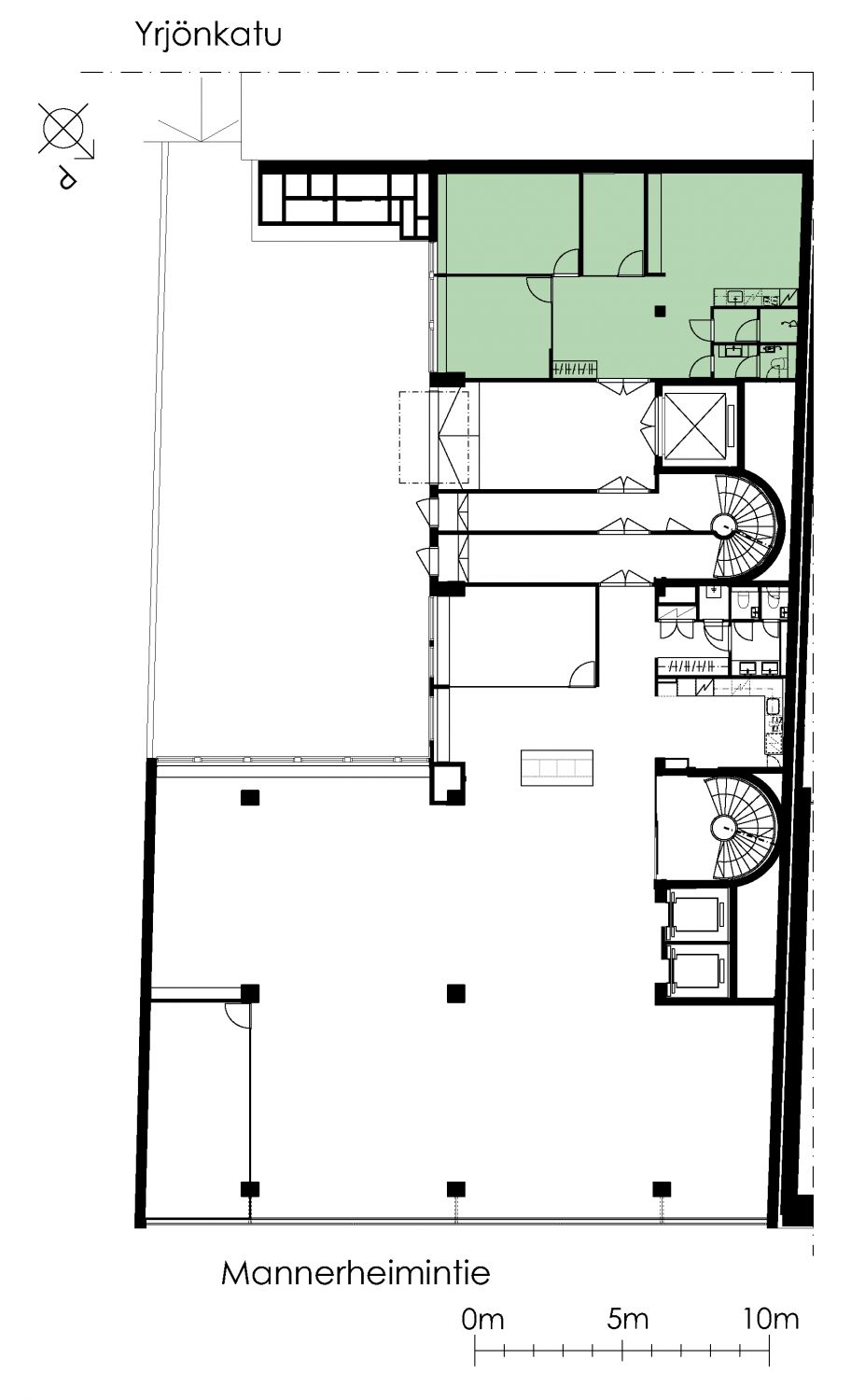
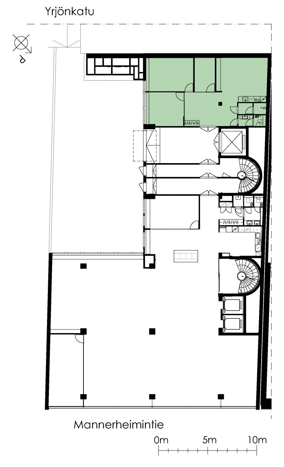
84 m2
Pohjapiirros
Kiinteistö
Aivan Helsingin liikekeskuksen ytimessä sijaitseva seitsenkerroksinen toimisto- ja liikerakennus kauniilla puistonäkymällä.
Tämä kiinteistö sijaitsee loistavalla paikalla, aivan Helsingin liikekeskuksen ytimessä. Seitsemänkerroksinen rakennus tarjoaa runsaasti toimisto- ja liiketilaa. Kiinteistön ikkunoista avautuu kaunis puistonäkymä Esplanadin puistoon, ja rakennusta vastapäätä on Svenska Teatern.Kiinteistöltä on hyvät julkiset liikenneyhteydet moneen suuntaan. Rautatieasema sijaitsee lyhyen kävelymatkan päässä ja aivan kiinteistön lähettyvillä ovat Erottajan ja Ylioppilastalon raitiovaunupysäkit. Toimistolle pääsee kätevästi myös linja-autolla.Kiinteistölle on myönnetty BREEAM In-Use Excellent -tason ympäristösertifikaatti ja se toimii 100 % päästöttömällä energialla, kuten tuulisähköllä ja uusiutuvalla kaukolämmöllä.
Tämä kiinteistö sijaitsee loistavalla paikalla, aivan Helsingin liikekeskuksen ytimessä. Seitsemänkerroksinen rakennus tarjoaa runsaasti toimisto- ja liiketilaa. Kiinteistön ikkunoista avautuu kaunis puistonäkymä Esplanadin puistoon, ja rakennusta vastapäätä on Svenska Teatern.Kiinteistöltä on hyvät julkiset liikenneyhteydet moneen suuntaan. Rautatieasema sijaitsee lyhyen kävelymatkan päässä ja aivan kiinteistön lähettyvillä ovat Erottajan ja Ylioppilastalon raitiovaunupysäkit. Toimistolle pääsee kätevästi myös linja-autolla.Kiinteistölle on myönnetty BREEAM In-Use Excellent -tason ympäristösertifikaatti ja se toimii 100 % päästöttömällä energialla, kuten tuulisähköllä ja uusiutuvalla kaukolämmöllä.
Sijainti
Kiinteistö sijaitsee aivan Helsingin ydinkeskustassa, Svenska Teaternia vastapäätä. Kaikki julkiset liikennevälineet ovat lyhyen kävelymatkan päässä.
Pysäköinti
Q-Park Iso Erottaja ja Forum-P
Palvelut
Kaikki keskustan palvelut sijaitsevat kävelyetäisyydellä. Työmatkapyöräilijöitä varten kiinteistöstä löytyy polkupyöräparkit sekä sosiaalitilat.
Kulkuyhteydet
Lähimmälle bussipysäkille 550 m
Lähimmälle juna-asemalle 550 m
Lähimmälle metroasemalle 550 m
Lähimmälle raitiovaunupysäkille 100 m
Lentokentälle 30 min
Lähimmälle juna-asemalle 550 m
Lähimmälle metroasemalle 550 m
Lähimmälle raitiovaunupysäkille 100 m
Lentokentälle 30 min
Vapautuu
Kysy
Rakennusvuosi
1965
Kerros
2
Energiatehokkuusluokka
B2018
Ympäristöluokitus
BREEAM In-Use Excellent,GRESB Global Sector Leader 2025
Ota yhteyttä
Sponda Oy
Yrjönkatu 29C, 00100 Helsinki
Näytä puhelinnumero
020 43131
Joni Rajaniemi
Senior Leasing Manager
Näytä puhelinnumero
+358 50 505 7504
Sponda Oy
https://www.sponda.fiPyydä lisätietoa
