Vuokrataan toimistotilat, tuotantotilat, muut tilat - Kuopio
Itkonniemenkatu 19, 70500 Kuopio #10835501
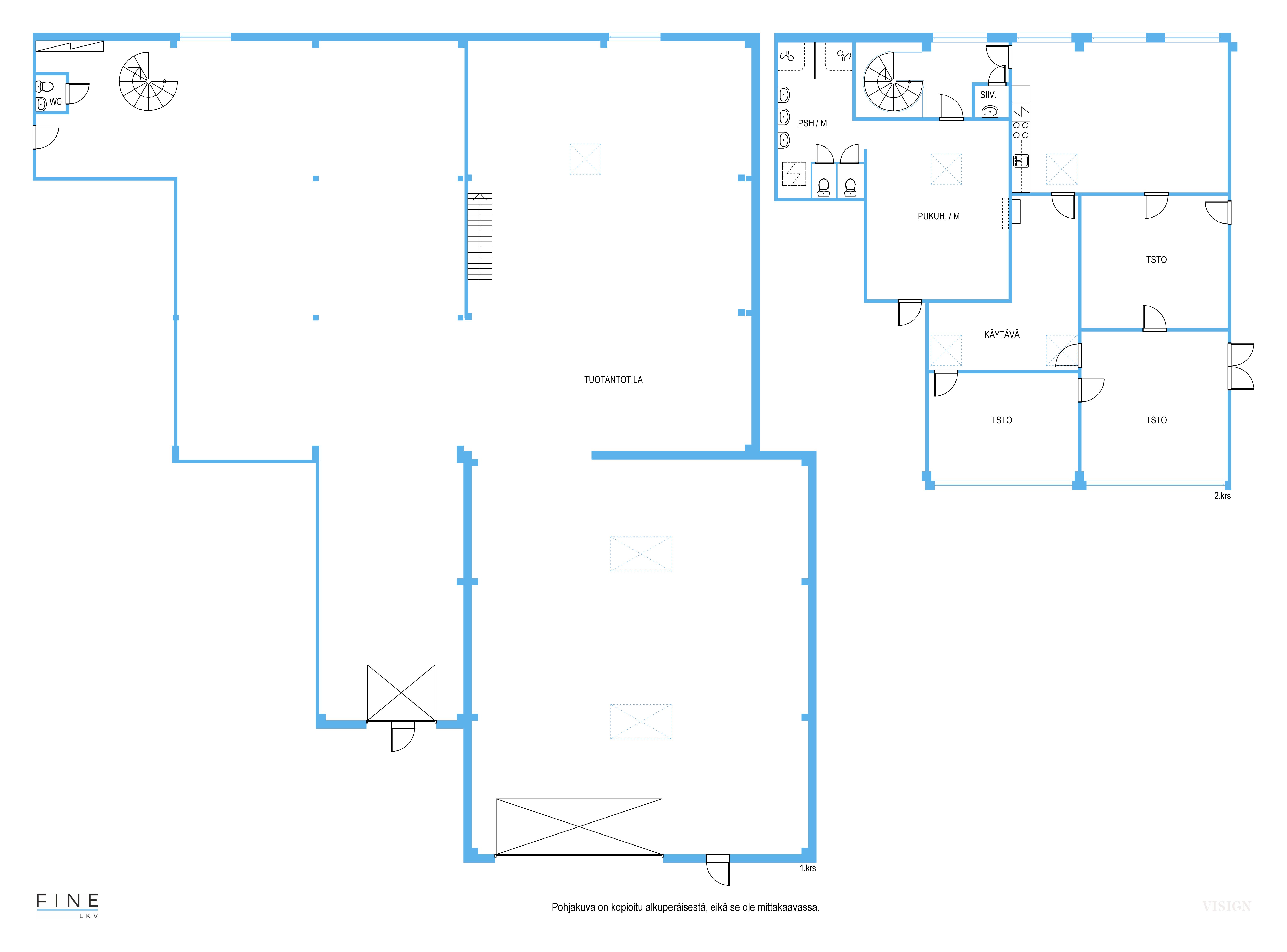
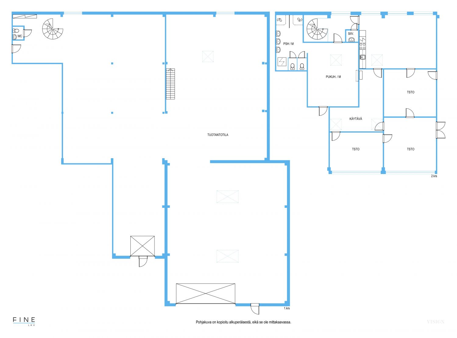
Tilava tuotanto- ja varastotila Itkonniemessä – soveltuu erinomaisesti myös konekorjaamoksi
Nyt vuokrattavana monipuolinen ja hyvin saavutettava tila aivan keskustan läheisyydessä Itkonniemessä.
Tilassa on erittäin korkea halli, joka mahdollistaa monenlaisen käytön – täydellinen esimerkiksi konekorjaamoksi, varastointiin tai tuotannolliseen toimintaan, jossa tarvitaan reilusti korkeutta ja helppoa sisäänajoa.
Kaksi erillistä sisäänajoa:
Suuri nosto-ovi: 6 m korkea ja 4,3 m leveä.
Lisäksi toinen korkea nosto-ovi 2,4m korkea ja 3 m leveä on helpottamassa logistiikkaa.
Hiekan- ja öljynerotuskaivot tuotannollisessa tilassa
Yläkerrassa siistit toimistotilat 3 huonetta, keittiö ja sosiaaliset tilat henkilöstölle.
Tila on tällä hetkellä tyhjillään ja vapautuu joustavasti sopimuksen mukaan.
Erittäin hyvä vaihtoehto yritykselle, joka arvostaa keskeistä sijaintia, toimivuutta ja tilavuutta.
Katutasossa
Näkyvällä paikalla

Fine LKV
Minna Moisio
Toimitilavuokraus, LKV
Näytä puhelinnumero
0505417349
minna@finelkv.fi
Leväsentie 2, 70700 Kuopio
Yliopistonkatu 28, 40100 Jyväskylä
Toimin kaupallisena managerina ja toimitilavuokraajana, otathan yhteyttä jos mietit mahdollisia muutostöitä tai esillä olevista toimitiloista ei löydy sitä mitä etsit. Selvitetään muut tila mahdollisuudet. Asiakaslähtöisyys on minulle tärkeää sekä asioiden sujuvuus. Ota yhteyttä, mielelläni autan sinua.