Vuokrataan toimistotilat - Helsinki
Mikonkatu 15, Kluuvi, 00100 Helsinki #10835255
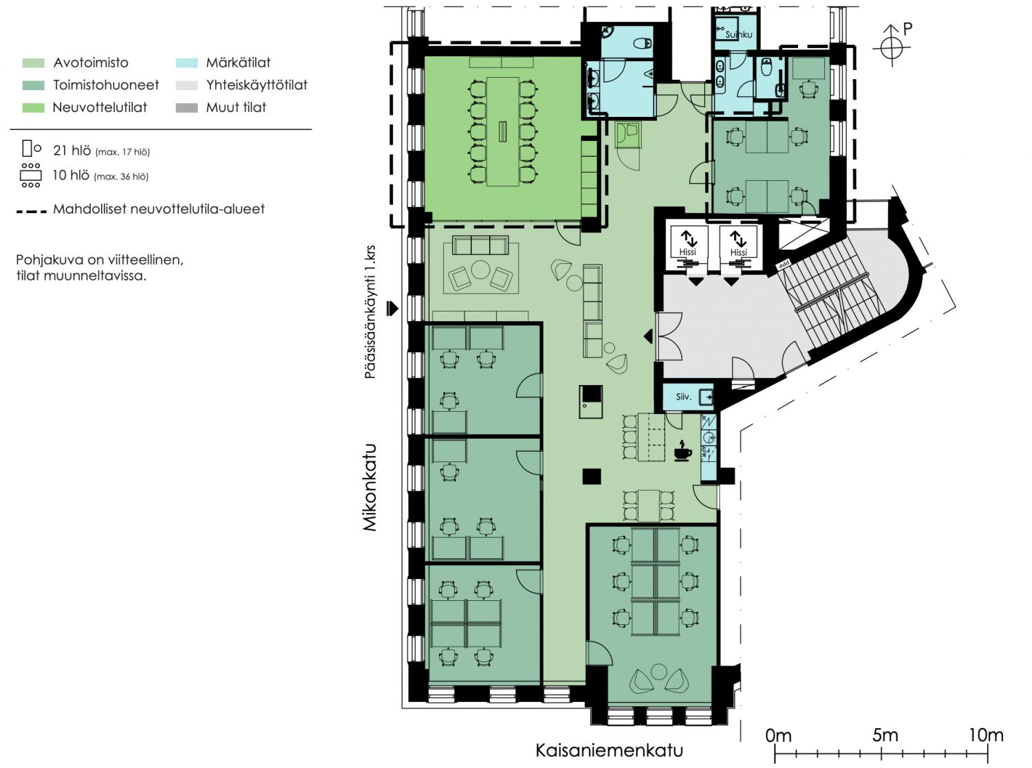
Toimistotilaa, joka soveltuu avo- ja huonetoimistoiksi. Ainutlaatuiset näkymät Rautatientorille.
Osoite
Mikonkatu 15, 00100 Helsinki
Tilatyyppi
Toimistotilaa
276 m2
Pohjapiirros
Kiinteistö
Moderni toimisto- ja liikekiinteistö keskeistä sijaintia ja monipuolista palvelutarjontaa arvostaville yrityksille.
Mikonlinna on moderni toimisto- ja liikekiinteistö Fennia-korttelissa, Helsingin Rautatientorin ääressä. Mikonkadun suosittu alue Helsingin sydämessä tarjoaa upeat puitteet keskeistä sijaintia ja ympäristön monipuolista palvelutarjontaa arvostaville yrityksille.
Mikonlinna on helposti ja nopeasti saavutettavissa kaikilla julkisen liikenteen välineillä koko pääkaupunkiseudun alueelta. Keskeinen sijainti takaa myös sen, että kaikki keskustan kaupalliset ja yrityspalvelut ovat lyhyen kävelymatkan etäisyydellä ja asiakasvirrat alueella ovat vertaansa vailla.
Yhdeksänkerroksisen kiinteistön ylimmistä kerroksista on upeat näkymät Helsingin keskustan yli. Ylemmissä kerroksissa on erikokoisia toimistotiloja, joissa on viihtyisyyttä ja valoisuutta luovat isot ikkunat. Katutasossa on liiketiloja. Sisätilat ovat helposti muunneltavissa yrityksen tarpeiden mukaan. Kiinteistö on saneerattu nykyaikaisia tarpeita palvelevaksi toimisto- ja liikekiinteistöksi 2000-luvun alussa.
Kaikille Fennia-korttelin kiinteistöille on myönnetty BREEAM In-Use Excellent -tason ympäristösertifikaatti ja koko kortteli toimii 100 % päästöttömällä energialla, kuten tuulisähköllä ja uusiutuvalla kaukolämmöllä.
Mikonlinna on moderni toimisto- ja liikekiinteistö Fennia-korttelissa, Helsingin Rautatientorin ääressä. Mikonkadun suosittu alue Helsingin sydämessä tarjoaa upeat puitteet keskeistä sijaintia ja ympäristön monipuolista palvelutarjontaa arvostaville yrityksille.
Mikonlinna on helposti ja nopeasti saavutettavissa kaikilla julkisen liikenteen välineillä koko pääkaupunkiseudun alueelta. Keskeinen sijainti takaa myös sen, että kaikki keskustan kaupalliset ja yrityspalvelut ovat lyhyen kävelymatkan etäisyydellä ja asiakasvirrat alueella ovat vertaansa vailla.
Yhdeksänkerroksisen kiinteistön ylimmistä kerroksista on upeat näkymät Helsingin keskustan yli. Ylemmissä kerroksissa on erikokoisia toimistotiloja, joissa on viihtyisyyttä ja valoisuutta luovat isot ikkunat. Katutasossa on liiketiloja. Sisätilat ovat helposti muunneltavissa yrityksen tarpeiden mukaan. Kiinteistö on saneerattu nykyaikaisia tarpeita palvelevaksi toimisto- ja liikekiinteistöksi 2000-luvun alussa.
Kaikille Fennia-korttelin kiinteistöille on myönnetty BREEAM In-Use Excellent -tason ympäristösertifikaatti ja koko kortteli toimii 100 % päästöttömällä energialla, kuten tuulisähköllä ja uusiutuvalla kaukolämmöllä.
Sijainti
Kiinteistön vieressä sijaitsevat Rautatieasema ja Rautatientorin linja-autoasema takaavat erinomaisen julkisen liikenteen saavutettavuuden, jota täydentää korttelin alapuolella sijaitseva Helsingin yliopiston metroasema.
Pysäköinti
Autopaikat P-Eliel ja P-Kluuvi
Palvelut
Fennia-korttelissa on mittava määrä ravintoloita ja muita viihdepalveluita. Keskeinen sijainti ydinkeskustassa takaa sen, että kaikki kaupalliset ja yrityspalvelut sijaitsevat lyhyen kävelymatkan etäisyydellä. Työmatkapyöräilijöita varten löytyy pyörävarasto sekä sosiaalitilat.
Kulkuyhteydet
Lähimmälle bussipysäkille 100 m
Lähimmälle juna-asemalle 100 m
Lähimmälle metroasemalle 100 m
Lähimmälle raitiovaunupysäkille 200 m
Lentokentälle 30 min
Lähimmälle juna-asemalle 100 m
Lähimmälle metroasemalle 100 m
Lähimmälle raitiovaunupysäkille 200 m
Lentokentälle 30 min
Vapautuu
Kysy
Rakennusvuosi
1940
Kerros
3
Energiatehokkuusluokka
C2018 (toimistot) B2018 (liiketilat)
Ympäristöluokitus
BREEAM In-Use Excellent,GRESB Global Sector Leader 2024
Ota yhteyttä
Sponda Oy
Yrjönkatu 29C, 00100 Helsinki
Näytä puhelinnumero
020 43131
Janika Tikkakoski
Leasing Manager
Näytä puhelinnumero
+358 40 589 2752
Sponda Oy
https://www.sponda.fiPyydä lisätietoa
