Vuokrataan toimistotilat - Helsinki
Malminkatu 16, Kamppi, 00100 Helsinki #10835213
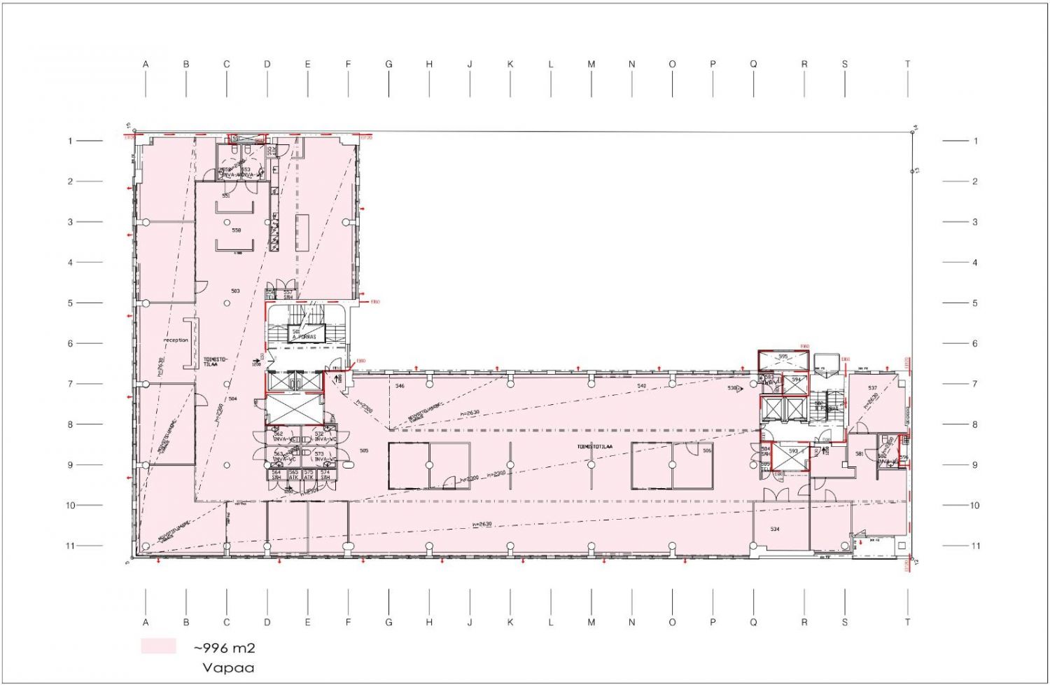
Vuokrataan Helsingin Kampista koko viidennen kerroksen kattava 995 m² toimistotila. Tila ehostetaan vastaamaan käyttäjän tarpeita ja muutostöihin varataan n. 9 kuukautta vuokrasopimuksen allekirjoituksesta.
Voimatalo sijaitsee Kampin palveluiden välittömässä läheisyydessä hyvien kulkuyhteyksien äärellä. Korttelissakin useita ravintoloita ja kahviloita. K-Market samassa talossa.
Kysy rohkeasti lisätietoja ja sovitaan käynti kohteella jo tänään!
Hausala Oy
Erkkilänkatu 11, 33100 Tampere
Näytä puhelinnumero
050 472 7077
Mika Savikko
Näytä puhelinnumero
050 472 7077
Mikko Ranta
Näytä puhelinnumero
050 360 6500
