Vuokrataan liiketilat, näyttelytilat, tuotantotilat, varastotilat, autotalli/-hallitilat - Naantali
Noutokatu 3, 21100 Naantali #10835071
Hallitilaa *Uutta *Kysy lisää Stevi puh. 0400 999 900
Osoite
Noutokatu 3, 21100 Naantali
Tilatyyppi
Liiketilaa
127 - 267 m2
Näyttelytilaa
127 - 267 m2
Tuotantotilaa
127 - 267 m2
Varastotilaa
127 - 267 m2
Autotalli/-hallitilaa
127 - 267 m2
Yhteensä
127 - 267 m2
Vuokra
10€/m2/kk + alv
Kiinteistö
Siistiä & uutta (2025 valmistuvaa) toimitilaa Naantalin Luolalassa, E18 Naantalin pikatien vieressä, näkyvä paikka & päivittäin tuhansia autoja menee ohitse.
Osoite on Noutokatu 3 Naantali.
Tila valmistuu 1.11.2025 alkaen. Kerro, koska tila tarve alkaa.
Vapaat tilat:
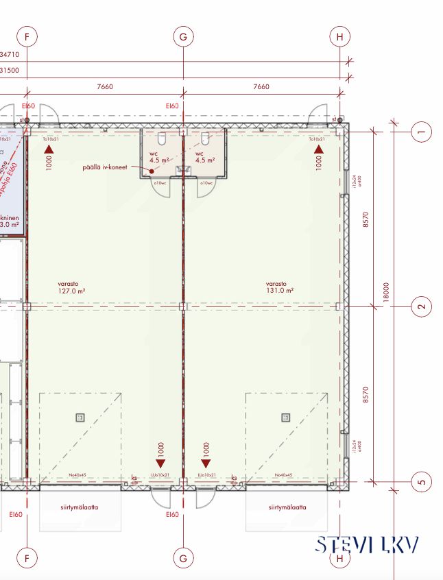
- Tila 127m2 (vuokra 1270€/kk). Tilassa on myös wc.
- Tila 131m2 (vuokra 1310€/kk). Tilassa on myös wc.
- Hallitilaa on 267m2 (vuokra 2670€ eli 10€/m2). Tilassa on myös wc.
Tilan varusteet:
- vesikiertoinen lattialämmitys
- keskitetty ilmanvaihto lämmön talteenotolla(kesällä jäähdytys) paineilmaverkosto
- Led valaistus
- manuaaliset isot nosto-ovet
- 125A sulake
- paloluokitus P1
- vapaa korkeus noin 5 metriä
- iso nosto-ovi (4m leveä & 4,5m korkea) ja lisäksi käyntiovi tilaan
- tilaan mahdollista rakentaa tarvittaessa toimistoparvi.
Tilaan kuuluu kaksi kappaletta autokatospaikkoja, joissa on 11kw sähköautolataus.
Vuokraan lisätään alv.
Sähkö ja vesi ovat kulutuksen mukaan.
Lämmitykseen on maalämpö vesikiertoisella lattialämmityksellä ja se laskutetaan erikseen tilan käyttäjältä. Tämä takaa matalat lämmityskulut.
Kiinteistöön tulee valokuituyhteys.
Keskitetty koneellinen lämmön talteen ottava ilmanvaihtojärjestelmä.
Edessä on iso & tasainen piha-alue.
Siistit ja edustavat tilat uudelle toimijalle.
Tilat soveltuvat myymäläksi, verkkokaupalle, työtilaksi, varastoksi tai tuotantotilaksi.
Ole yhteydessä, niin mennään porukassa katsomaan.
Toimitila terveisin,
Stefan Virtanen
Kiinteistönvälittäjä | LKV | KTM | Yrittäjä
stefan@stevilkv.com | 0400 999 900
www.stevilkv.com
Osoite on Noutokatu 3 Naantali.
Tila valmistuu 1.11.2025 alkaen. Kerro, koska tila tarve alkaa.
Vapaat tilat:
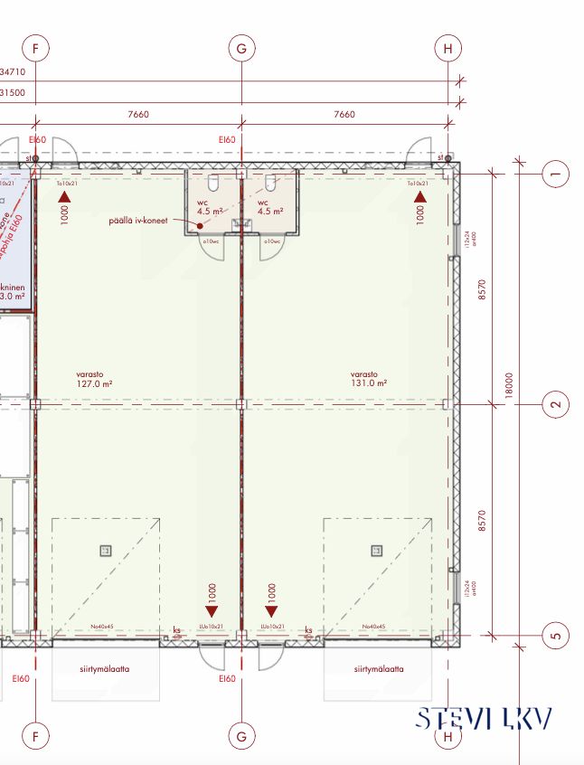
- Tila 127m2 (vuokra 1270€/kk). Tilassa on myös wc.
- Tila 131m2 (vuokra 1310€/kk). Tilassa on myös wc.
- Hallitilaa on 267m2 (vuokra 2670€ eli 10€/m2). Tilassa on myös wc.
Tilan varusteet:
- vesikiertoinen lattialämmitys
- keskitetty ilmanvaihto lämmön talteenotolla(kesällä jäähdytys) paineilmaverkosto
- Led valaistus
- manuaaliset isot nosto-ovet
- 125A sulake
- paloluokitus P1
- vapaa korkeus noin 5 metriä
- iso nosto-ovi (4m leveä & 4,5m korkea) ja lisäksi käyntiovi tilaan
- tilaan mahdollista rakentaa tarvittaessa toimistoparvi.
Tilaan kuuluu kaksi kappaletta autokatospaikkoja, joissa on 11kw sähköautolataus.
Vuokraan lisätään alv.
Sähkö ja vesi ovat kulutuksen mukaan.
Lämmitykseen on maalämpö vesikiertoisella lattialämmityksellä ja se laskutetaan erikseen tilan käyttäjältä. Tämä takaa matalat lämmityskulut.
Kiinteistöön tulee valokuituyhteys.
Keskitetty koneellinen lämmön talteen ottava ilmanvaihtojärjestelmä.
Edessä on iso & tasainen piha-alue.
Siistit ja edustavat tilat uudelle toimijalle.
Tilat soveltuvat myymäläksi, verkkokaupalle, työtilaksi, varastoksi tai tuotantotilaksi.
Ole yhteydessä, niin mennään porukassa katsomaan.
Toimitila terveisin,
Stefan Virtanen
Kiinteistönvälittäjä | LKV | KTM | Yrittäjä
stefan@stevilkv.com | 0400 999 900
www.stevilkv.com
Sijainti
Luolala
Ympäristö
Liiketoimintaa
Pysäköinti
Pihalla
Palvelut
Alueen & Naantalin keskustan palvelut
Kulkuyhteydet
Hyvät
Vuokralaisia
Kiinteistössä myös muita käyttäjiä
Muuta
Kysy lisää Stevi puh. 0400 999 900 / stefan@stevilkv.com
Vapautuu
01.11.2025
Rakennusvuosi
2025
Katutasossa
Näkyvällä paikalla
Ota yhteyttä
Stevi LKV | Kiinteistönvälitys & Vuokravälitys
Stefan Virtanen
LKV, KTM, Yrittäjä
Näytä puhelinnumero
0400 999 900
stefan@stevilkv.com
Reipasta palvelua ja hyvää konsultointia.
Soita tai laita spostia ja kerro tila tarpeesi; tämä on ilmainen palvelu tilaa etsivälle (vuokranantaja maksaa palkkion).
Toimitilojen myynti & vuokraus.
Pyydä lisätietoa
