Myydään toimistotilat, liiketilat, näyttelytilat, varastotilat, muut tilat - Oulu
Asemakatu 41, 90100 Oulu #10835070
Myydään näkyvältä paikalta tulevaisuuden liikepaikka!
Radan varteen lähiaikoina valmistuvat Asemakeskus ja Elämysareena lisäävät lähialueen asiakasvirtoja huomattavasti.
Asemakeskuksesta on tekeillä rakentamispäätös ja Monitoimiareenan rakentajan valinta on meneillään.
Osoite
Asemakatu 41, 90100 Oulu
Tilatyyppi
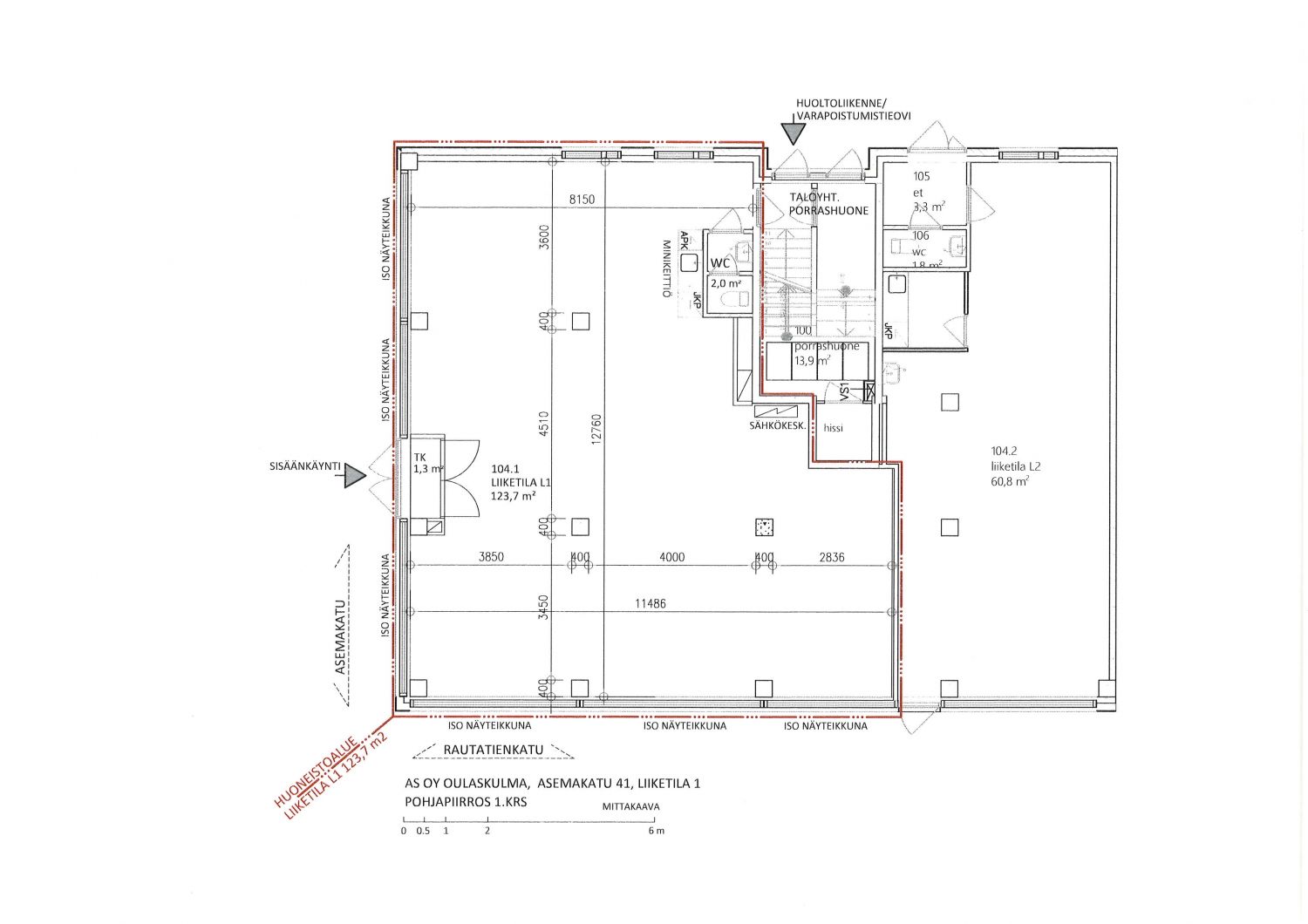
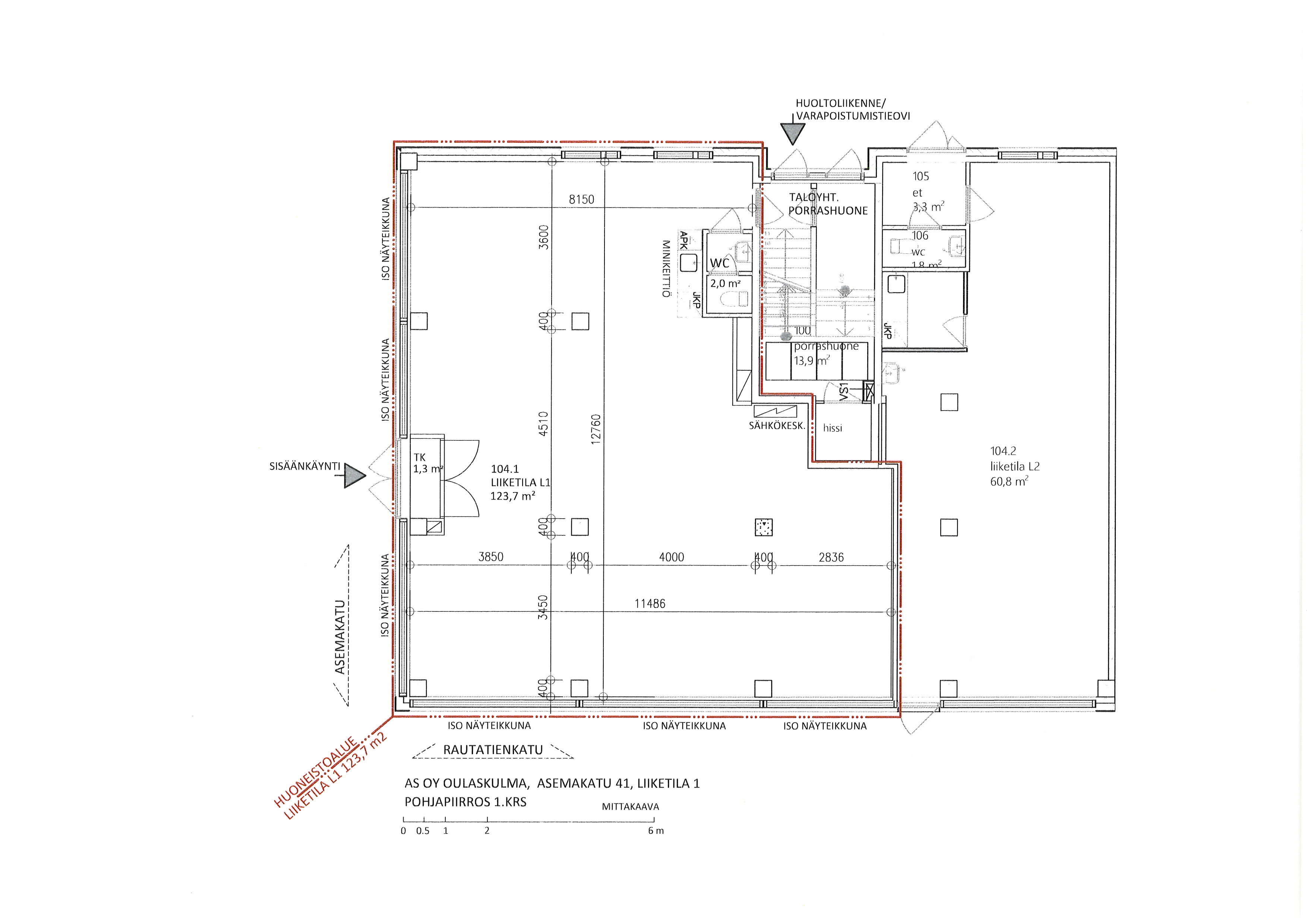
Toimistotilaa
120 m2
Liiketilaa
120 m2
Näyttelytilaa
120 m2
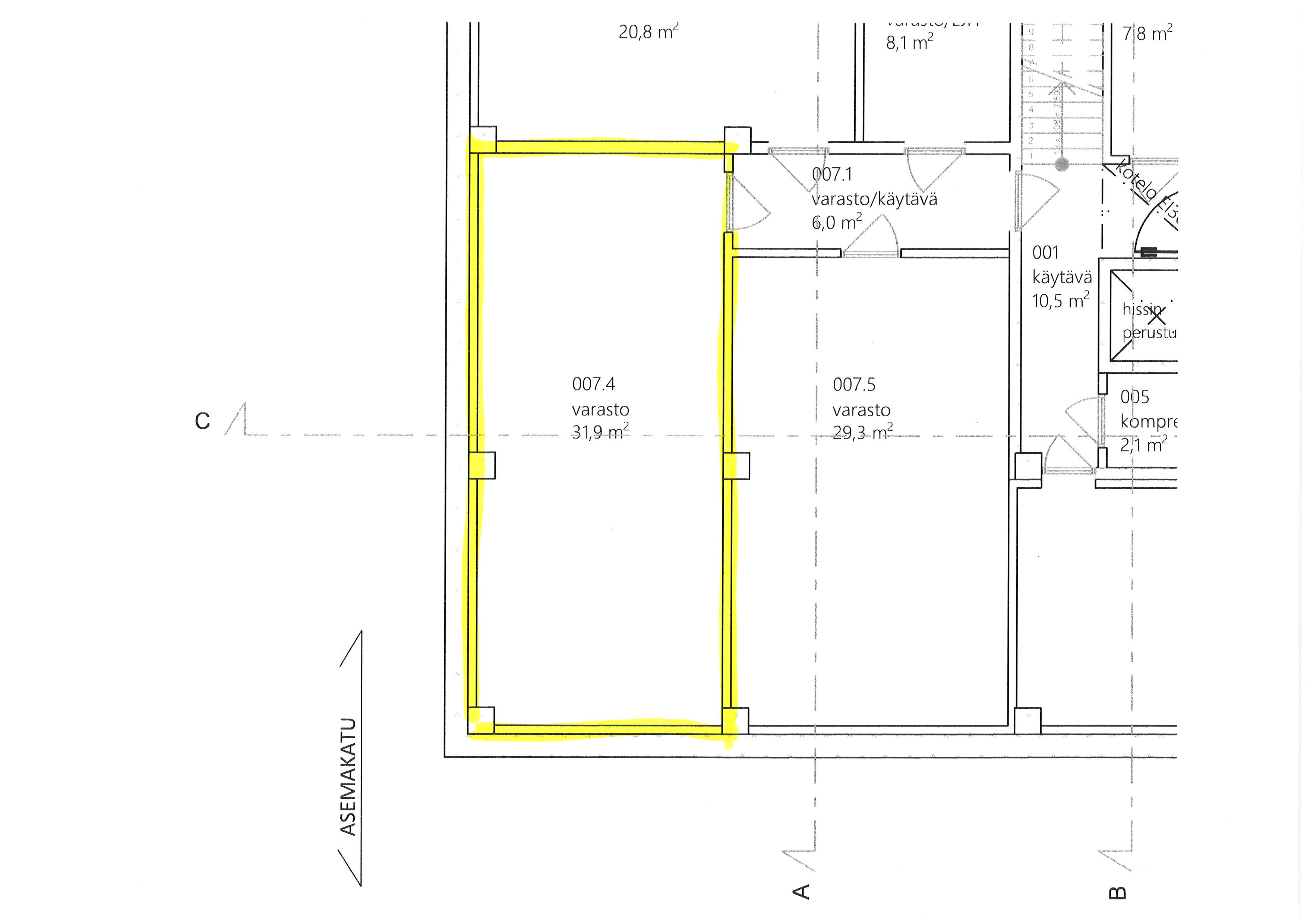
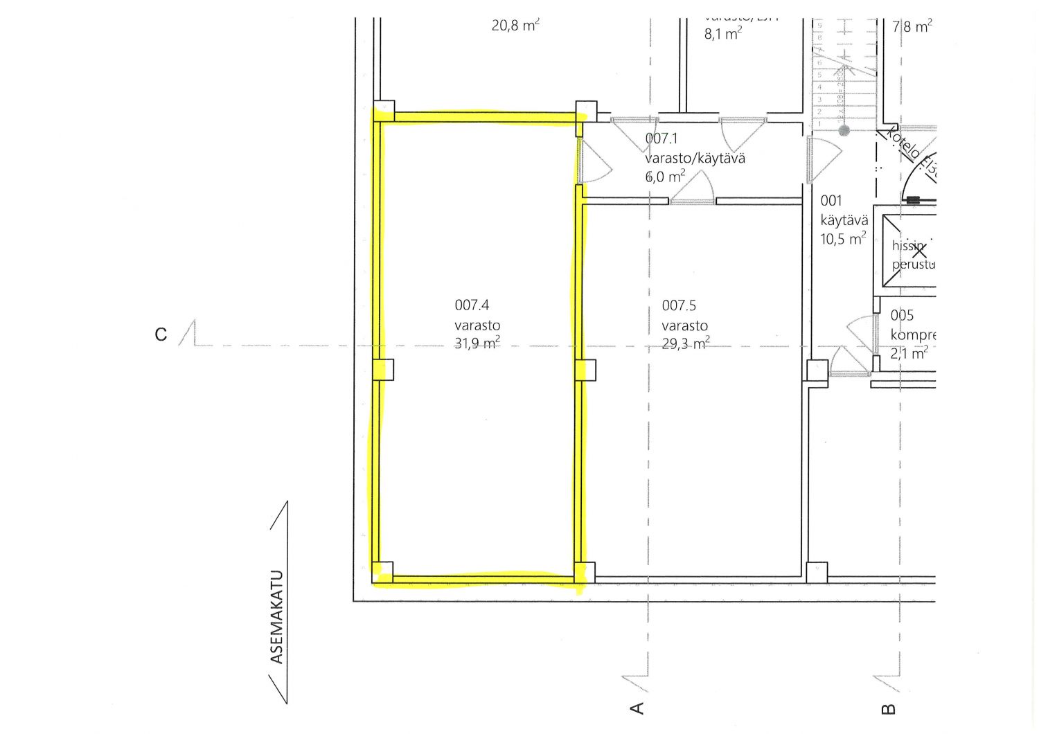
Varastotilaa
32 m2
Muuta tilaa
120 m2
Yhteensä
120 - 152 m2
Tilajako
Liiketila 120m2, varasto 32m2
Pohjapiirros
Myyntihinta
Velaton myyntihinta 295.000€, myyntihinta 288.000€, lainasouus/31.5.2025 6986,71€, hoitovastike 540€ ja rahoitusvastike 252€/kk
Pysäköinti
Huoneistolle kuuluu 1 pihapistokepaikka
Palvelut
Oulun keskusta sekä Raksilan
Kulkuyhteydet
Bussit Heikinkatua ja Saaristonkatua pitkin
Muuta
Liiketilan ikkunat uusitaan taloyhtiön toimesta 2025
Vapautuu
Heti
Rakennusvuosi
1963
Kerros
1 / 6
Energiatehokkuusluokka
D2018
E-luku
133 kWhE/m²/vuosi
Katutasossa
Näkyvällä paikalla
Ota yhteyttä
Pohjois-Suomen Toimitilat Oy
Harjapäänkatu 33, 90400 Oulu
Pekka Valkola
Näytä puhelinnumero
044 311 0555
Pyydä lisätietoa
