Vuokrataan toimistotilat, liiketilat, tuotantotilat, varastotilat, työtilat, autotalli/-hallitilat - Oulu
Marmoritie 17, 90620 Oulu #10835038
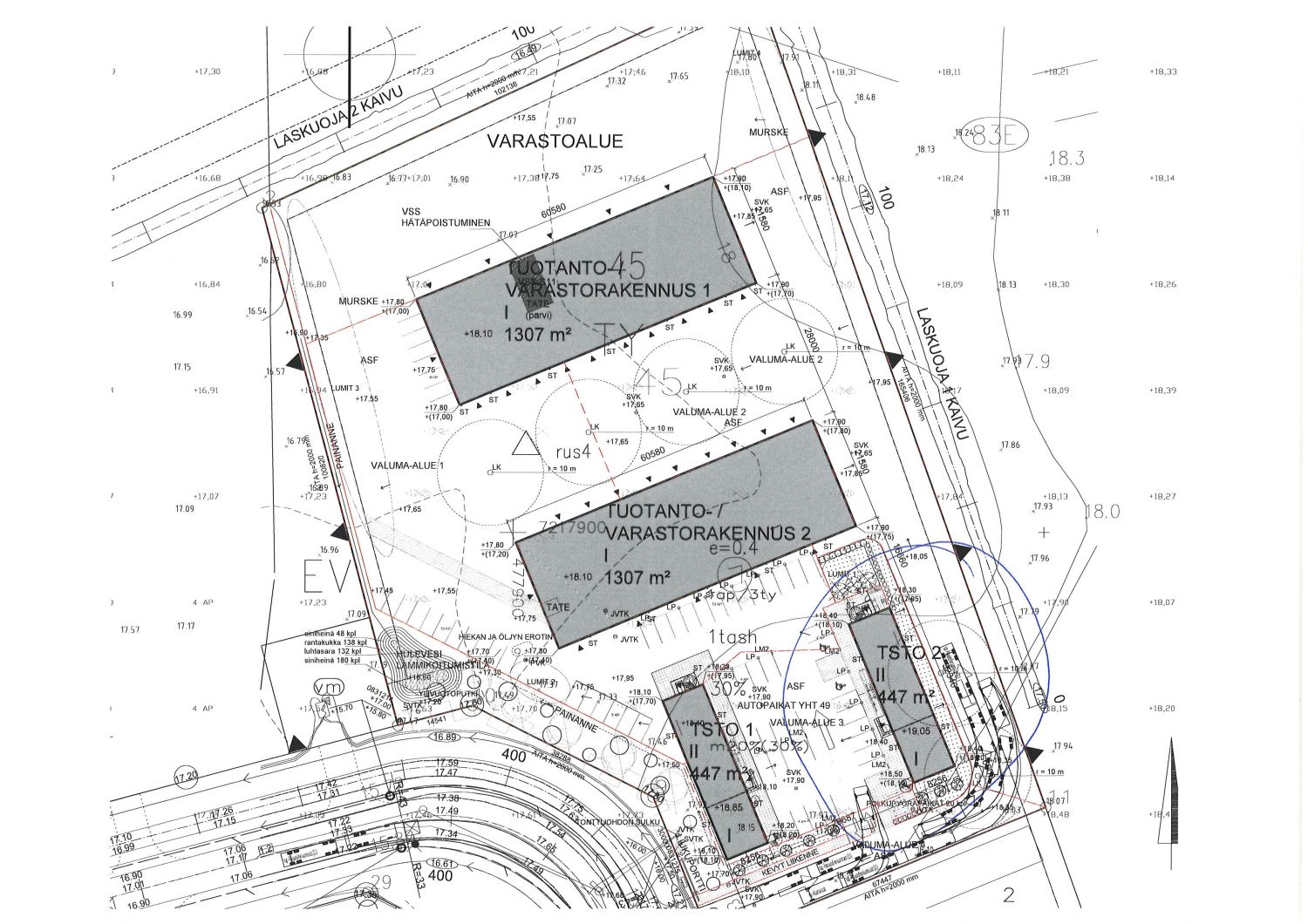
Vuokrataan suositulta Ruskonniityn alueelta uudenveroista toimistotilaa sekä korkeaa hallitilaa!
Rakentaminen on hyvässä vauhdissa, joten valmistuminen voi olla jo vuoden vaihteessa!
Osoite
Marmoritie 17, 90620 Oulu
Tilatyyppi
Toimistotilaa
100 - 377 m2
Liiketilaa
234 - 709 m2
Tuotantotilaa
234 - 709 m2
Varastotilaa
234 - 709 m2
Työtilaa
234 - 709 m2
Autotalli/-hallitilaa
234 - 709 m2
Yhteensä
334 - 1086 m2
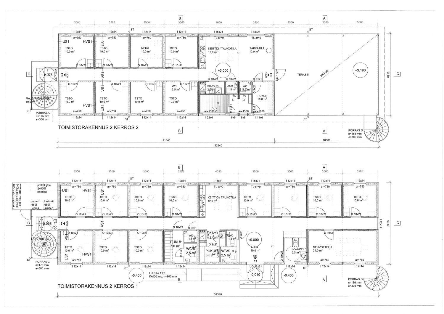
Tilajako
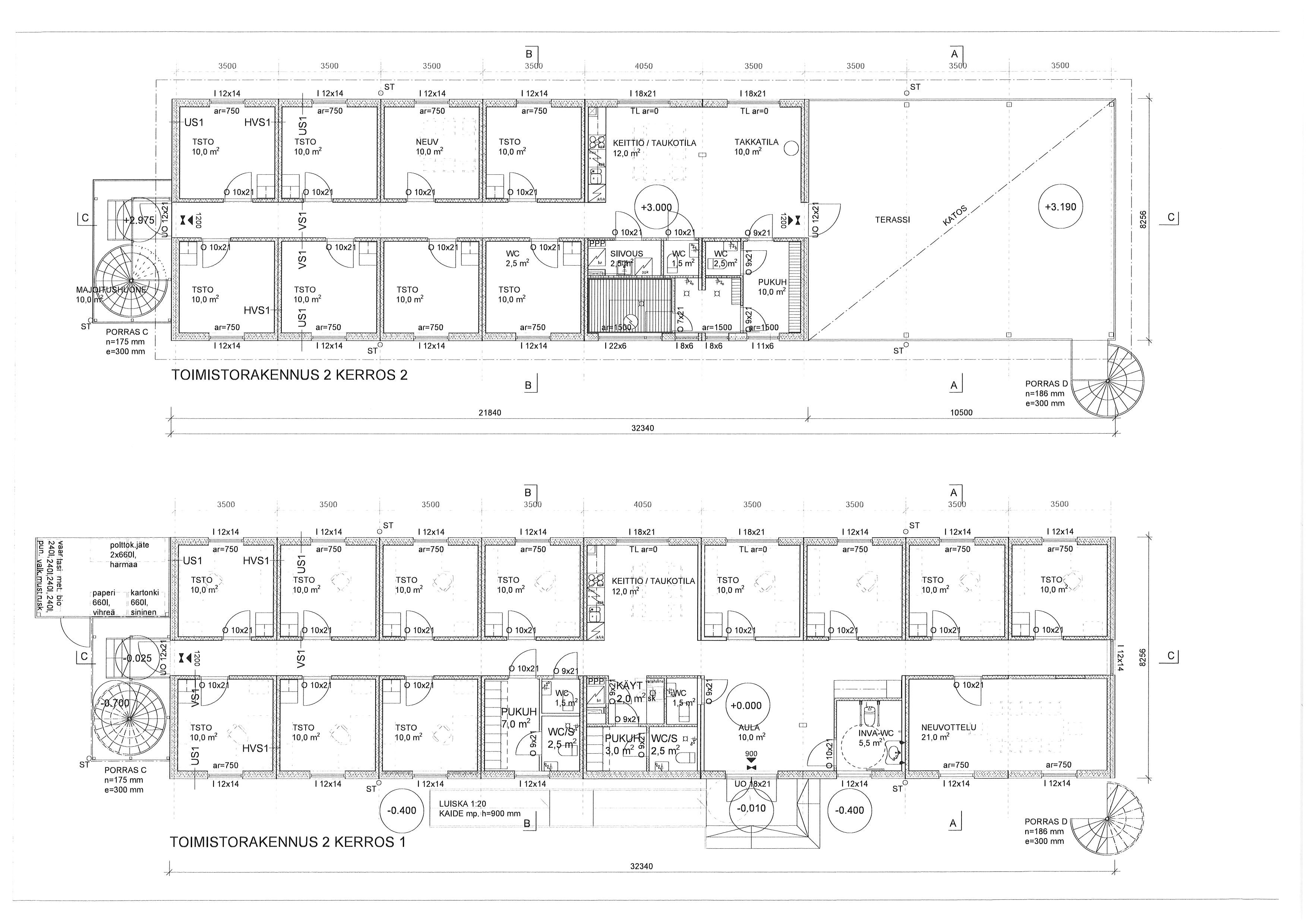
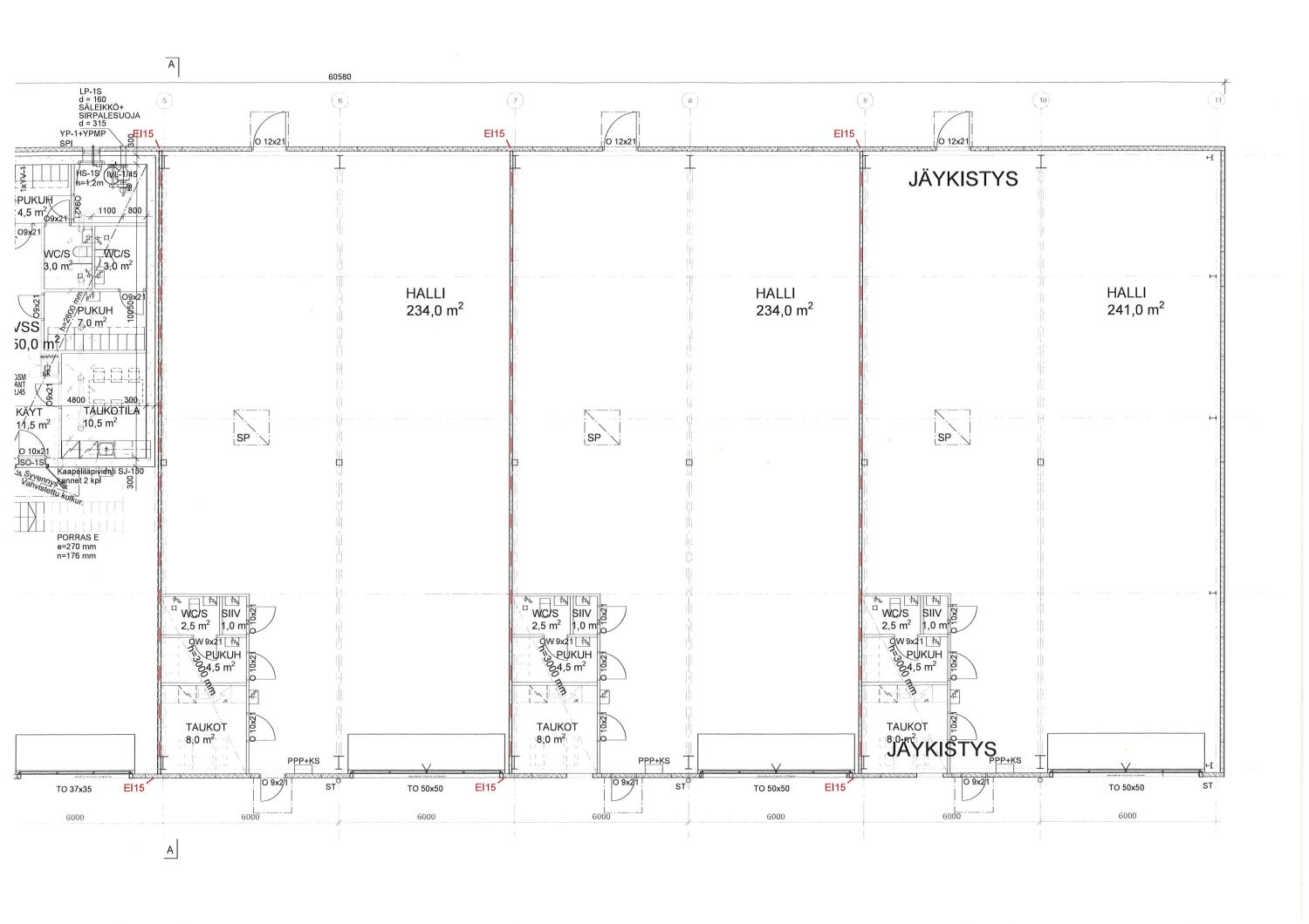
Toimistotilat kahdessa kerroksessa, hallitilat 2 x 234m² ja 241m²
Pohjapiirros
Vuokra
Toimistotilojen vuokra 14,00€/m², hallitilojen 10,00€/m², lisäksi käyttösähkö ja vesi. Vuokriin ja korvauksiin lisätään alv.
Vuokraan sisältyy lämpö
Pysäköinti
Piha-alueella pistokepaikkoja 30, kylmäpaikkoja 18
Kulkuyhteydet
Kohde on helposti saatavilla useista suunnista.
Muuta
Rakennukset on siirretty Hanhikiven voimalaitoksen alueelta ja tilat on saatettu uudenveroiseen kuntoon. Rakennuksia ei ole käytetty. Toimistotiloihin tulee myös jäähdytys ilmalämpöpumpuilla.
Piha-alueet asfaltoitu ja aidattu. Hallitilan korkeus on matalammasta päästä 6,48m ja korkeammasta päästä 8,84m. Taite-ovet 5,0 x 5,0m. Halleissa öljyn-ja hiekanerotuskaivot ja lattian kantavuus on hyvä.
Toimistorakennus valmistuu alkuvuodesta 2026, hallirakennus 1 loppukesästä 2026 ja hallirakennus 2 syksyllä 2026
Piha-alueet asfaltoitu ja aidattu. Hallitilan korkeus on matalammasta päästä 6,48m ja korkeammasta päästä 8,84m. Taite-ovet 5,0 x 5,0m. Halleissa öljyn-ja hiekanerotuskaivot ja lattian kantavuus on hyvä.
Toimistorakennus valmistuu alkuvuodesta 2026, hallirakennus 1 loppukesästä 2026 ja hallirakennus 2 syksyllä 2026
Vapautuu
Heti
Rakennusvuosi
2026
Kerros
1 / 2
Energiatehokkuusluokka
B2018
E-luku
100 kWhE/m²/vuosi
Ota yhteyttä
Pohjois-Suomen Toimitilat Oy
Harjapäänkatu 33, 90400 Oulu
Pekka Valkola
Näytä puhelinnumero
044 311 0555
Pyydä lisätietoa
