Vuokrataan liiketilat, näyttelytilat, työtilat, muut tilat - Kempele
Kiertorata 12, 90440 Kempele #10835037
Ainutlaatuinen tilaisuus!
Zatelliitin alueelle näkyvälle paikalle rakennetaan 3 hyvätasoista liiketilaa!
Osoite
Kiertorata 12, 90440 Kempele
Tilatyyppi
Liiketilaa
375 - 1300 m2
Näyttelytilaa
375 - 1300 m2
Työtilaa
375 - 1300 m2
Muuta tilaa
375 - 1300 m2
Yhteensä
375 - 1300 m2
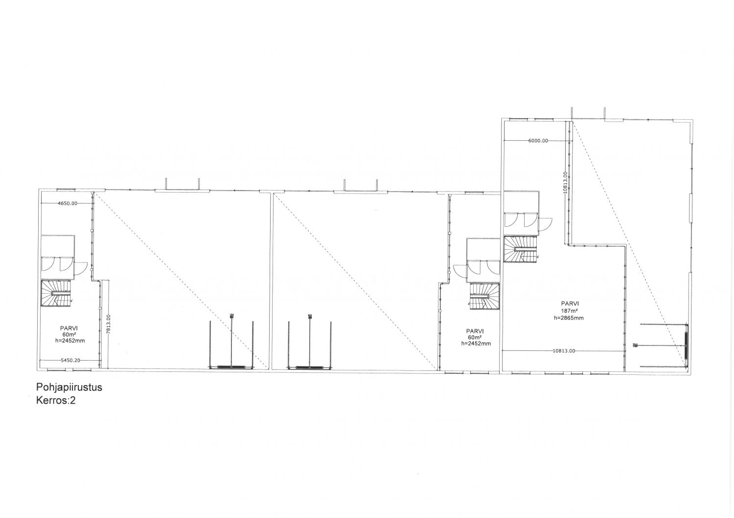
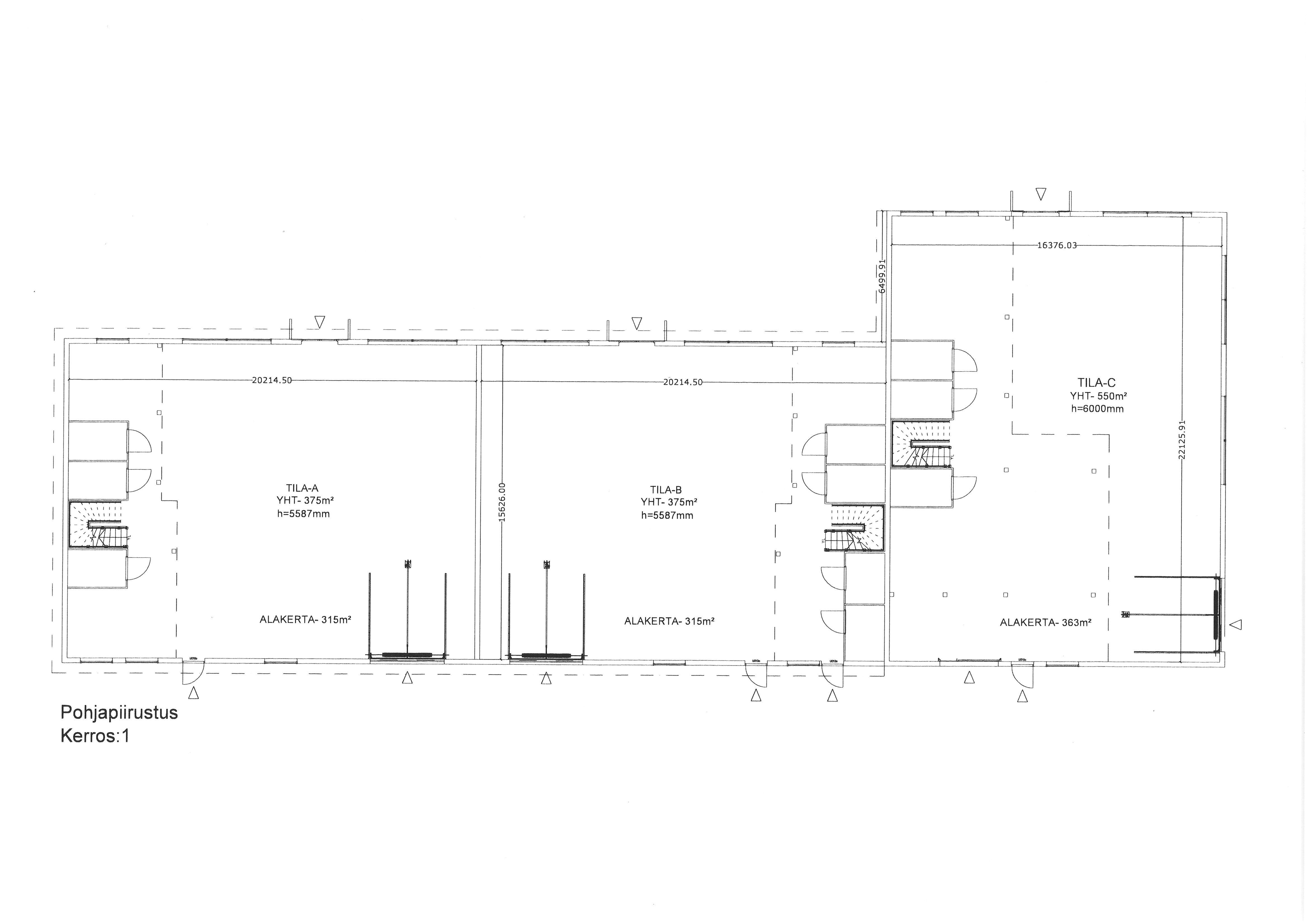
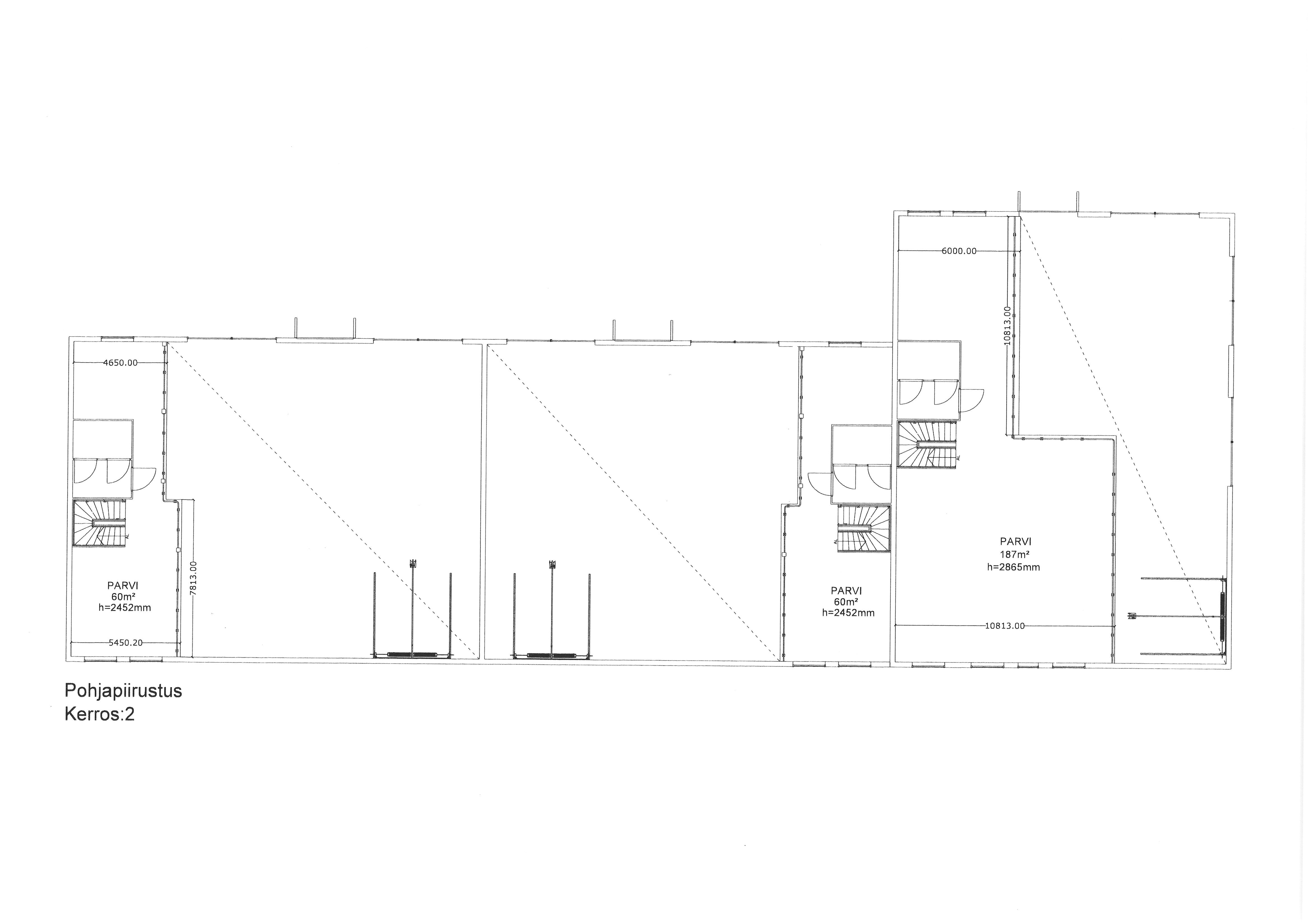
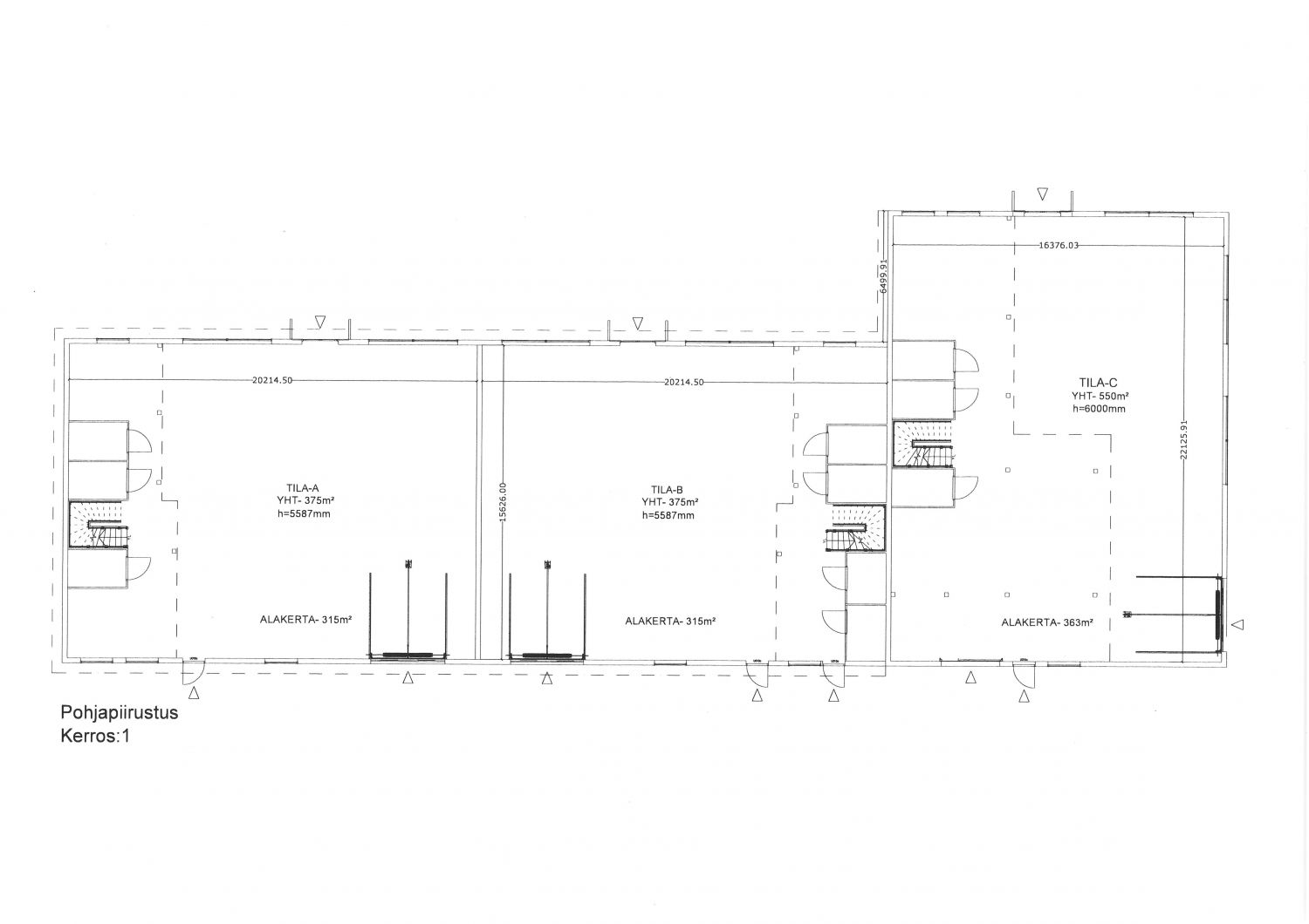
Tilajako
Kohteessa on yksi liiketila 550m² ja 2 liiketilaa 375m²/kpl. Kaikki tilat voidaan myös yhdistää. m²
Pohjapiirros
Vuokra
Liiketila C 6.900,00€ /kk, liiketilat A ja B 4.700,00€/kk. Vuokriin lisätään alv. Lisäksi käyttösähkö, vesi, lämmitys, jätehuolto sekä osuus talvikunnossapidosta.
Sijainti
Näkyvyys myös moottoritielle!
Pysäköinti
Piha-alueella yht. 33 paikkaa, sähköautoille latauspaikkoja 2/huoneisto
Palvelut
Zatelliitti, Zeppeliin ja vanhan Kempeleen keskusta.
Tavaratalo Kärkkäinen on tulossa vastapäätä kohdetta.
Tavaratalo Kärkkäinen on tulossa vastapäätä kohdetta.
Kulkuyhteydet
Bussit vanhaa nelostietä pitkin
Muuta
Rakentaminen aloitetaan 1/2- vuoden kuluttua rakentamispäätöksestä, joten nyt kannattaa toimia nopeasti.
2 erikokoista liiketilakokoa, joitten sisätilaratkaisuihin pääset vielä itse vaikuttamaan. Alas sijoitetaan liiketilat, toimistohuoneet ja wc ja yläkertaan keittiö ja avotilaa sekä pukuhuone, suihku, wc,
Liiketilojen A ja B korkeus on 5,6m ja liiketilan C korkeus on n.6,0m. Nosto-ovien mittoihin voit vielä itse vaikuttaa. Liiketilojen lattioissa Mastertop-pinnoite, toimistoissa laminaatti.
2 erikokoista liiketilakokoa, joitten sisätilaratkaisuihin pääset vielä itse vaikuttamaan. Alas sijoitetaan liiketilat, toimistohuoneet ja wc ja yläkertaan keittiö ja avotilaa sekä pukuhuone, suihku, wc,
Liiketilojen A ja B korkeus on 5,6m ja liiketilan C korkeus on n.6,0m. Nosto-ovien mittoihin voit vielä itse vaikuttaa. Liiketilojen lattioissa Mastertop-pinnoite, toimistoissa laminaatti.
Vapautuu
Heti
Rakennusvuosi
2026
Kerros
1 / 2
Näkyvällä paikalla
Ota yhteyttä
Pohjois-Suomen Toimitilat Oy
Harjapäänkatu 33, 90400 Oulu
Pekka Valkola
Näytä puhelinnumero
044 311 0555
Pyydä lisätietoa
