Vuokrataan toimistotilat - Kempele
Professorintie 9, Vihiluoto, 90440 Kempele #10834858
Osoite
Professorintie 9, 90440 Kempele
Tilatyyppi
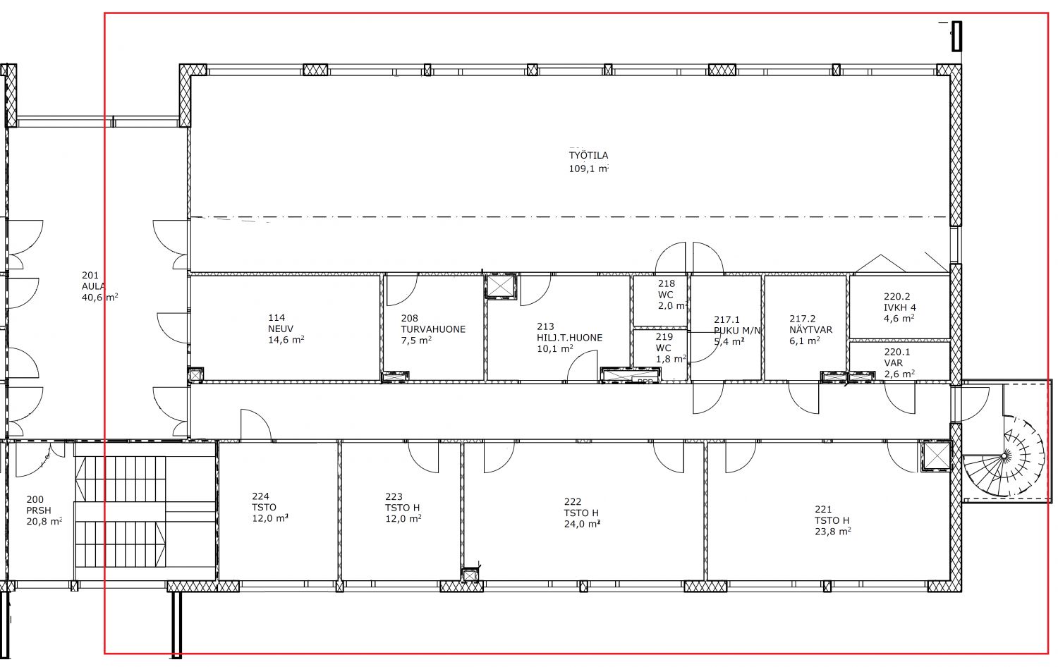
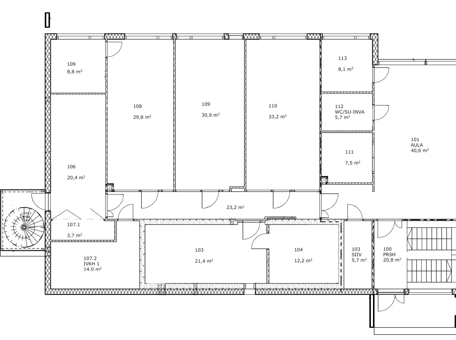
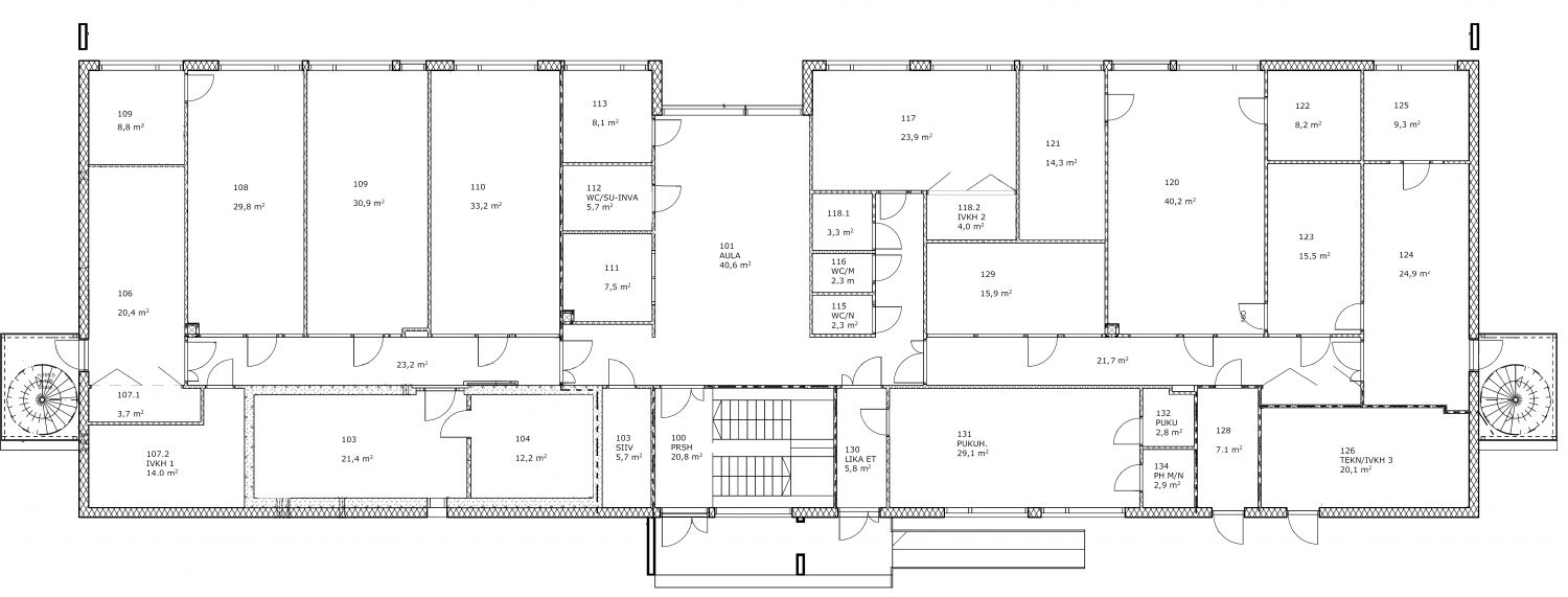
Toimistotilaa
286 - 573 m2
Muuta
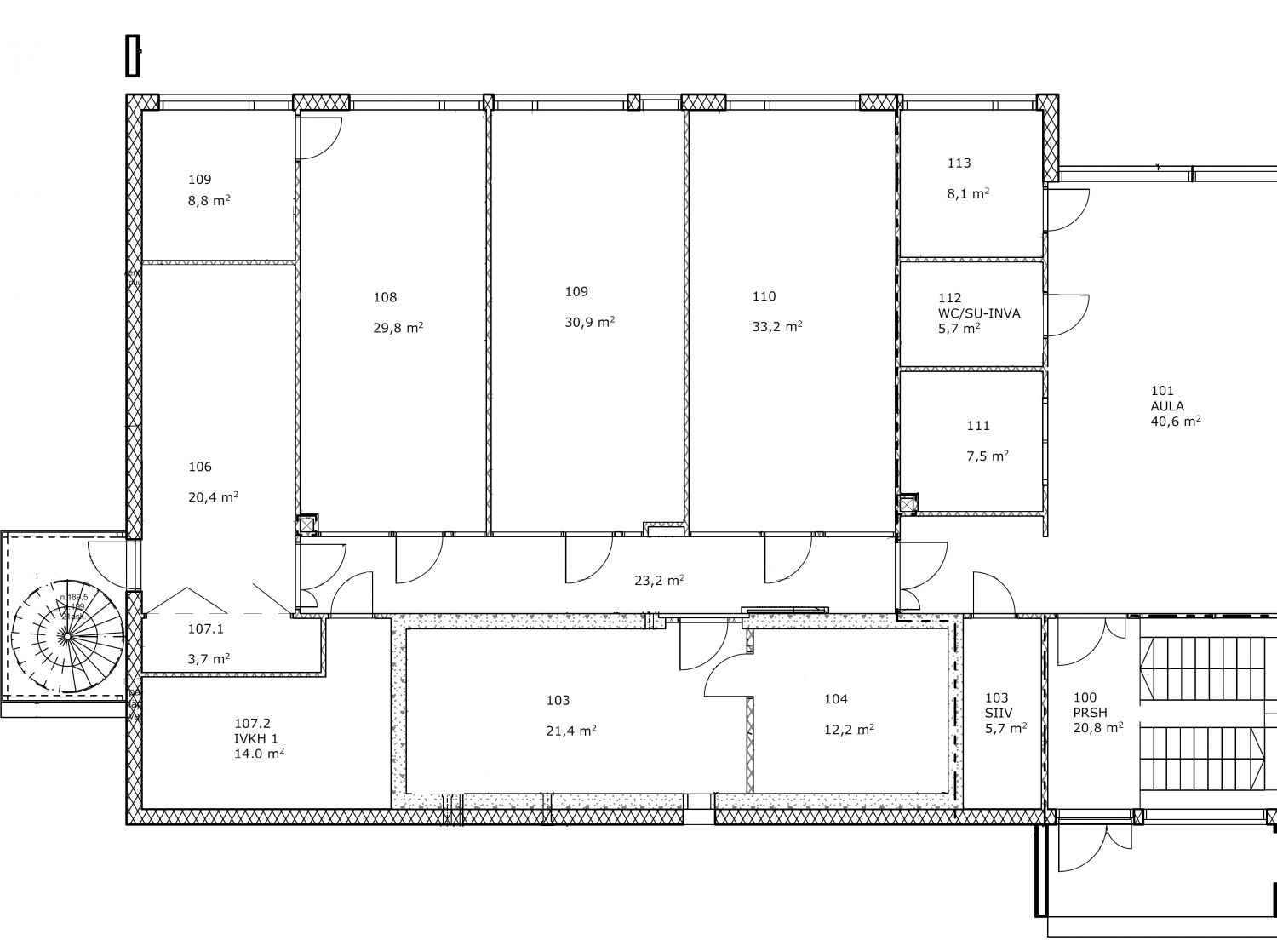
Näkyvältä paikalta vuokrataan laadukasta tilaa, joka soveltuu mm. toimisto- tai laboratoriokäyttöön.
Tila on varusteltu jäähdytyksellä ja talossa on tehokas ilmanvaihto. Tila koostuu eri kokoisista työhuoneista ja -tiloista, muutostöitä voidaan toteuttaa. Myös vesilinjoja ja sähköä on hyvin käytettävissä. Tila sijaitsee katutasossa, joten tavaran tuonti ja lähetys on helppoa. Lämmitys on maalämmössä joka kuuluu vuokraan. Tiloissa on sähkölukot ja kulunvalvonta. Autopaikkoja on mukavasti pihalla, tarvittaessa myös katospaikkoja järjestettävissä. Tarvittaessa tila on mahdollista jakaa kahteen osaan.
Lentokentäntien varrella yrityksesi näkyvyys on taattu ja paikalle on helppo tulla. Kulkuyhteydet ovat erinomaiset, sillä Oulun keskustaan ajaa vartissa, lentokentälle reilu 5 minuutissa sekä hyvä bussiyhteys kulkee Lentokentäntietä. Alueella toimii paljon yrityksiä ja lounaspaikkoja on lähellä.
Tilat soveltuvat ja ovat muokattavissa hyvin monenlaiseen käyttöön. Myös halli-/tuotantotilaa voi tiedustella vuokrattavaksi samassa yhteydessä. Olethan yhteydessä niin käydään katsomassa tiloja!
Lisätiedot 040 5400 672 tai joni.romppainen@kiinteistotahkola.fi.
Eikö tämä ole sopiva? Kysy muita vaihtoehtojamme!
Tila on varusteltu jäähdytyksellä ja talossa on tehokas ilmanvaihto. Tila koostuu eri kokoisista työhuoneista ja -tiloista, muutostöitä voidaan toteuttaa. Myös vesilinjoja ja sähköä on hyvin käytettävissä. Tila sijaitsee katutasossa, joten tavaran tuonti ja lähetys on helppoa. Lämmitys on maalämmössä joka kuuluu vuokraan. Tiloissa on sähkölukot ja kulunvalvonta. Autopaikkoja on mukavasti pihalla, tarvittaessa myös katospaikkoja järjestettävissä. Tarvittaessa tila on mahdollista jakaa kahteen osaan.
Lentokentäntien varrella yrityksesi näkyvyys on taattu ja paikalle on helppo tulla. Kulkuyhteydet ovat erinomaiset, sillä Oulun keskustaan ajaa vartissa, lentokentälle reilu 5 minuutissa sekä hyvä bussiyhteys kulkee Lentokentäntietä. Alueella toimii paljon yrityksiä ja lounaspaikkoja on lähellä.
Tilat soveltuvat ja ovat muokattavissa hyvin monenlaiseen käyttöön. Myös halli-/tuotantotilaa voi tiedustella vuokrattavaksi samassa yhteydessä. Olethan yhteydessä niin käydään katsomassa tiloja!
Lisätiedot 040 5400 672 tai joni.romppainen@kiinteistotahkola.fi.
Eikö tämä ole sopiva? Kysy muita vaihtoehtojamme!
Vapautuu
01.09.2026
Rakennusvuosi
2019
Kerros
1
Ota yhteyttä
Kiinteistö-Tahkola Oy
Lumijoentie 1, 90400 Oulu
Näytä puhelinnumero
0207 480 250
Joni Romppainen
Näytä puhelinnumero
0405400672
Pyydä lisätietoa
