Vuokrataan toimistotilat, liiketilat, tuotantotilat, varastotilat, työtilat, autotalli/-hallitilat - Porvoo
Pajatie 8, 06150 Porvoo #10834835
Vuokrataan iso hallitila hyvällä varustelulla Tarmolassa! 6,9 €/m²/kk + alv
Osoite
Pajatie 8, 06150 Porvoo
Tilatyyppi
Toimistotilaa
300 m2
Liiketilaa
2400 m2
Tuotantotilaa
2700 m2
Varastotilaa
2700 m2
Työtilaa
2700 m2
Autotalli/-hallitilaa
2400 m2
Yhteensä
2700 m2
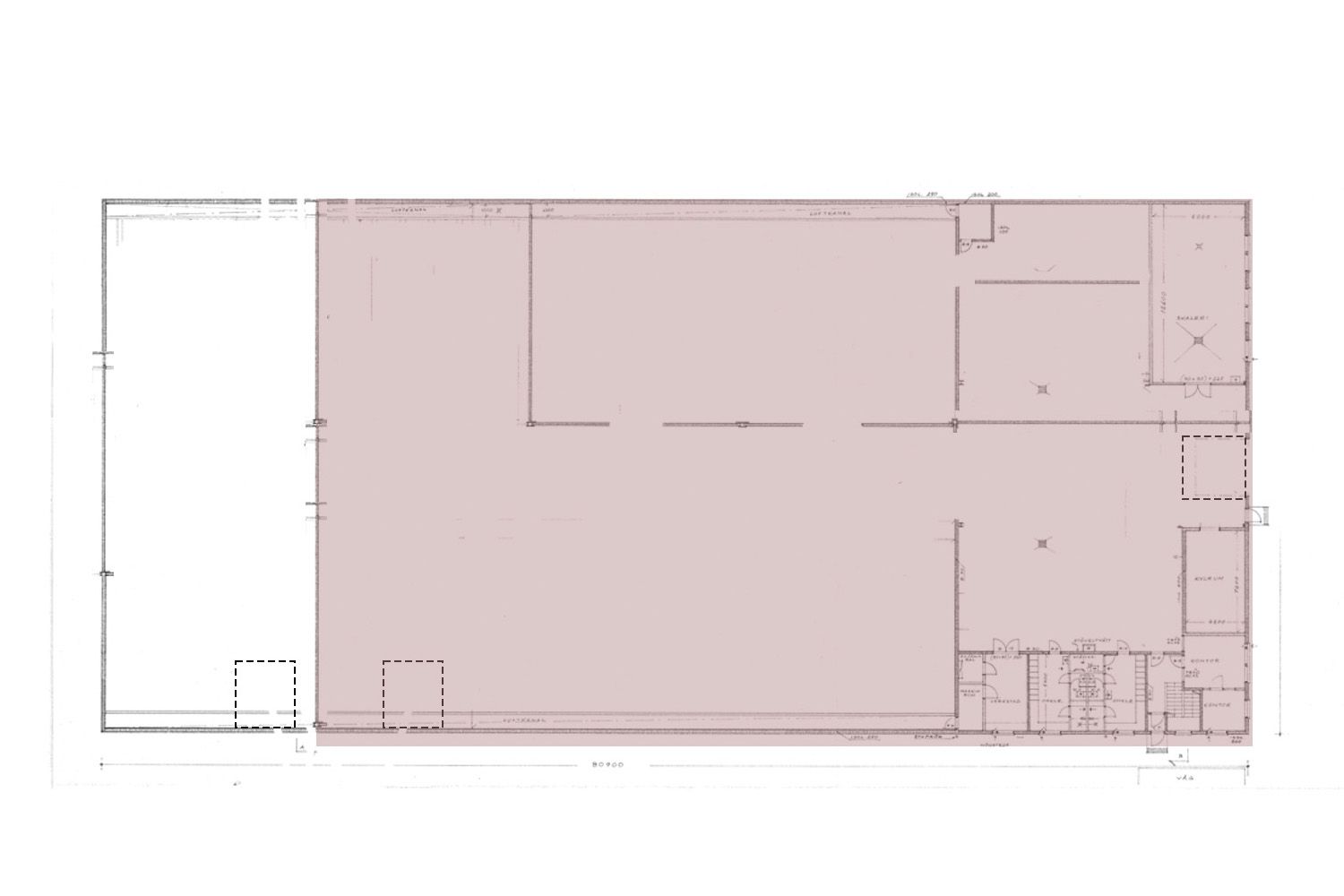
Pohjapiirros
Virtuaaliesittely
Vuokra
6,9 €/m²/kk + alv
Muuta
Tarmolan teollisuusalueella vuokrataan iso, noin 2700 m² hallitila. Halli on pitkään ollut komponentti, laite- ja järjestelmävalmistukseen olevien teollisuustuotteiden valmistajan käytössä. Tilat ovat hyvässä kunnossa ja pinnat ovat siistit.
Hallitilan pinta-ala on 2400 m² ja sen yhteydessä on hienot kahdessa kerroksessa toimisto- ja sosiaalitilat pinta-alaltaan 300 m². Hallissa on lattiakaivo, voimavirtaa vesipisteitä sekä kaksi isoa nosto-ovea ja erillisiä käyntiovia. Nosto-ovien mitat ovat L 4,0 x K 4,5 metriä ja L 4,5 x K 4,5 metriä ja ne ovat manuaalikäyttöisiä ( ketjunostin). Hallissa vapaa korkeus on noin 5,5 metriä. Rakennuksen päädyssä toimistotilaa neuvotteluhuoneineen kahdessa kerroksessa. Toimistohuoneiden yhteydessä on myös sosiaalitilat, joissa on wc:n, suihkun ja pukuhuoneiden lisäksi keittiö ruokailu-/taukotiloineen
Tilassa tällä hetkellä 5 t siltanosturi, kiinteä ketjunostin sekä toimintavalmis erillinen tila hitsaustöitä varten vuokralaisen käytössä. Nosturit ovat tarkastettu ja tyypitetty. Hallissa on lisäksi paineilmaverkosto sekä erillinen tila kompressorille. Vuokralainen vastaa tarvittaessa kompressorin hankkimisesta.
Vuokralaisella on optio vuokrata lisätilaa vuokrattavan tilan vierestä. Tilan pinta-ala on 560 m² ja siellä on avointa hyvää hallitilaa hyvällä varustuksella. Kysy tästä tarvittaessa lisää.
Rakennus ei ole ympäriajettavissa, mutta etupihalla mahtuu hyvin isompikin yhdistelmä kääntymään. Lisää pihatilaa löytyy rakennuksen toisesta päädystä. Piha-alueet ovat asfaltoidut ja talvella auraus sisältyy vuokraan. Oma ajoportti, mutta koko piha-aluetta ei ole aidattu.
Tilat sijaitsevat hyvällä paikalla teollisuusalueella (tien päässä), josta on lyhyt matka moottoritielle ja kaupungin keskustaan. Tarmolan kaupanpalvelut sekä useat lounasravintolat ovat aivan nurkan takana.
Erinomaiset tilat monenlaisille yrityksille!
Kohdetiedot
Sijainti
Katuosoite: Pajatie 8, 06150 Porvoo
Kaupunginosa: Tarmola
Ympäristö: Teollisuusaluetta
Rakennus
Pinta-alat: Halli sosiaalitiloineen 2700 m² (+ optio 560 m²)
Kiinteistötyyppi: Teollisuusrakennus
Rakennusvuosi: 1985
Tilatyyppi: Tuotantotila ja toimisto- ja sosiaalitilat
Energiatodistus: Laki ei edellytä todistusta
Kunto, varusteet ja palvelut: Hyvä kunto, lattiakaivo, voimavirta, vesipiste, toimisto- ja sosiaalitilat
Pysäköinti: Pihalla
Lämmitys: Kaukolämpö
Vapautuu: Heti vapaa
Vuokrahinta ja kulut
Kuukausivuokra: 6,9 €/m²/kk + alv
Sähkömaksu: Vuokralainen tekee oman sähkösopimuksen
Vesimaksu: Mittauksen mukaan
Lämmitys: Sisältyy vuokraan
Auraus: Sisältyy vuokraan
Jätehuolto: Vuokralainen vastaa itse
Muuta: Vakuus 3 kk:n vuokraa vastaava summa, luottotietojen on oltava kunnossa, minimisopimusaika 12 kk
Hallitilan pinta-ala on 2400 m² ja sen yhteydessä on hienot kahdessa kerroksessa toimisto- ja sosiaalitilat pinta-alaltaan 300 m². Hallissa on lattiakaivo, voimavirtaa vesipisteitä sekä kaksi isoa nosto-ovea ja erillisiä käyntiovia. Nosto-ovien mitat ovat L 4,0 x K 4,5 metriä ja L 4,5 x K 4,5 metriä ja ne ovat manuaalikäyttöisiä ( ketjunostin). Hallissa vapaa korkeus on noin 5,5 metriä. Rakennuksen päädyssä toimistotilaa neuvotteluhuoneineen kahdessa kerroksessa. Toimistohuoneiden yhteydessä on myös sosiaalitilat, joissa on wc:n, suihkun ja pukuhuoneiden lisäksi keittiö ruokailu-/taukotiloineen
Tilassa tällä hetkellä 5 t siltanosturi, kiinteä ketjunostin sekä toimintavalmis erillinen tila hitsaustöitä varten vuokralaisen käytössä. Nosturit ovat tarkastettu ja tyypitetty. Hallissa on lisäksi paineilmaverkosto sekä erillinen tila kompressorille. Vuokralainen vastaa tarvittaessa kompressorin hankkimisesta.
Vuokralaisella on optio vuokrata lisätilaa vuokrattavan tilan vierestä. Tilan pinta-ala on 560 m² ja siellä on avointa hyvää hallitilaa hyvällä varustuksella. Kysy tästä tarvittaessa lisää.
Rakennus ei ole ympäriajettavissa, mutta etupihalla mahtuu hyvin isompikin yhdistelmä kääntymään. Lisää pihatilaa löytyy rakennuksen toisesta päädystä. Piha-alueet ovat asfaltoidut ja talvella auraus sisältyy vuokraan. Oma ajoportti, mutta koko piha-aluetta ei ole aidattu.
Tilat sijaitsevat hyvällä paikalla teollisuusalueella (tien päässä), josta on lyhyt matka moottoritielle ja kaupungin keskustaan. Tarmolan kaupanpalvelut sekä useat lounasravintolat ovat aivan nurkan takana.
Erinomaiset tilat monenlaisille yrityksille!
Kohdetiedot
Sijainti
Katuosoite: Pajatie 8, 06150 Porvoo
Kaupunginosa: Tarmola
Ympäristö: Teollisuusaluetta
Rakennus
Pinta-alat: Halli sosiaalitiloineen 2700 m² (+ optio 560 m²)
Kiinteistötyyppi: Teollisuusrakennus
Rakennusvuosi: 1985
Tilatyyppi: Tuotantotila ja toimisto- ja sosiaalitilat
Energiatodistus: Laki ei edellytä todistusta
Kunto, varusteet ja palvelut: Hyvä kunto, lattiakaivo, voimavirta, vesipiste, toimisto- ja sosiaalitilat
Pysäköinti: Pihalla
Lämmitys: Kaukolämpö
Vapautuu: Heti vapaa
Vuokrahinta ja kulut
Kuukausivuokra: 6,9 €/m²/kk + alv
Sähkömaksu: Vuokralainen tekee oman sähkösopimuksen
Vesimaksu: Mittauksen mukaan
Lämmitys: Sisältyy vuokraan
Auraus: Sisältyy vuokraan
Jätehuolto: Vuokralainen vastaa itse
Muuta: Vakuus 3 kk:n vuokraa vastaava summa, luottotietojen on oltava kunnossa, minimisopimusaika 12 kk
Vapautuu
Heti
Rakennusvuosi
1985
Kerros
1 / 2
Katutasossa
Näkyvällä paikalla
Siltanosturi
Ota yhteyttä
Tilat.fi
KTM, LKV Antti Soivio
Näytä puhelinnumero
0400 446 553
OTM, LKV Riikka Tuominen
Näytä puhelinnumero
0400 551 790
KTM, LKV Maria-Sofia Puhakka
Näytä puhelinnumero
0400-150330
MBA, LKV Susanne Wallenius
Näytä puhelinnumero
0400-128877
Yrityksen virallinen nimi: LKV Tilat.fi Oy.
Toimitilojen välitykseen erikoistunut yritys.
Pyydä lisätietoa
