Vuokrataan toimistotilat, liiketilat - Jyväskylä
Kivääritehtaankatu 6, Tourula, 40100 Jyväskylä #10834279
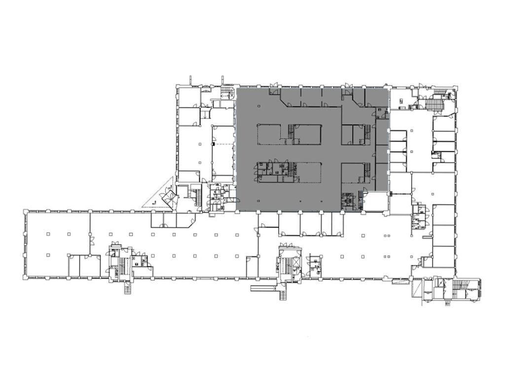
Vuokrataan Jyväskylän Tourulasta katutasossa 1 247 m² jäähdytettyä toimisto-/liiketila. Parvitilojen osuus kokonaisuudesta on noin 224 m²
Toimisto koostuu avotilasta ja työ-/neuvotteluhuoneista, sekä kahdesta omasta sisääntulosta Kivääritehtaan kadulta. Tilaa voidaan muokata tarpeiden mukaisesti.
Keskeisen sijaintinsa ansiosta kiinteistöön on helppo saapua ja palvelut ovat lähettyvillä. Autoille on hyvin tilaa pihassa. Matkakeskukseen on vain kilometrin matka. Lähialueella sijaitsee useampi ravintola ja kiinteistössä käyttäjiä palvelee mm. kuntosali ja parturi-kampaamo.
Kysy rohkeasti lisätietoja ja sovitaan käynti kohteella jo tänään!
Näkyvällä paikalla
Hausala Oy
Erkkilänkatu 11, 33100 Tampere
Näytä puhelinnumero
050 472 7077
Mikko Ranta
Näytä puhelinnumero
050 360 6500
Mika Savikko
Näytä puhelinnumero
050 472 7077
