Vuokrataan tuotantotilat, varastotilat, työtilat - Loviisa
Varastokuja 3, 07900 Loviisa #10833312
Vuokrataan varasto-, työ-, tai tuotantotilaa Loviisassa!
Osoite
Varastokuja 3, 07900 Loviisa
Tilatyyppi
Tuotantotilaa
450 m2
Varastotilaa
450 m2
Työtilaa
450 m2
Yhteensä
450 m2
Vuokra
5,90 €/m²/kk + alv
Muuta
Vuokrataan korkea ja hyvin valaistu, monipuolinen hallitila isosta tuotantohallirakennuksesta Loviisan vanhalta Teollisuusalueelta.
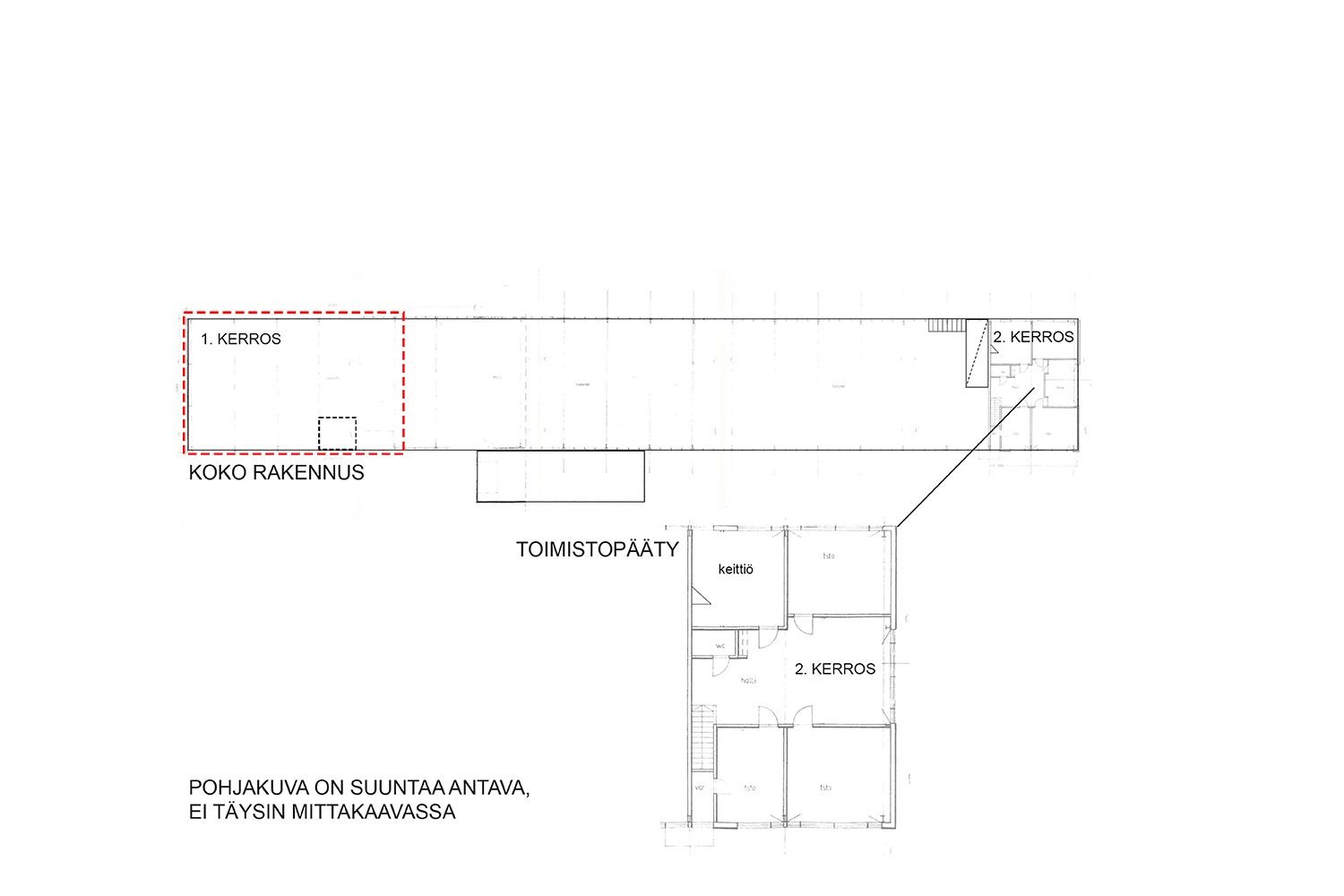
Isosta hallista vapaana on toinen pääty, joka on avointa tilaa ja sen pinta-ala on noin 450 m². Tilaan on iso sähkökäyttöinen nosto-ovi (L 4,0 metriä x korkeus 4,5 metriä) ja erillinen käyntiovi. Hallissa kestävä betonilattia ja hallin vapaa korkeus on 8 metriä. Rakennuksessa on runsaasti voimavirtaa ja vuokralaisen käytössä on tarvittaessa 5t siltanosturi. Vuokrattavalla alueella ei ole lattiakaivoa eikä vettä, mutta rakennuksen toisessa päädyssä on lattiakaivo ja vesipisteitä.
Rakennus on kokonaisuudessaan 1450 m² ja lämmitysmuotona hallissa on kaasulämmitys. Lämmönjakomuotona on puhallinlämmitys. Sähkönkulutus vaihtelee suuresti riippuen siitä, mitä toimintaa hallissa harjoitetaan. Sähkömaksuista sovitaan erikseen uuden vuokralaisen kanssa riippuen tilan käytöstä.
Vuokrattavana olevassa päädyssä ei ole wc:tä eikä vesipistettä, mutta vuokralaisen käyttöön osoitetaan wc kiinteistön muista tiloista.
Kiinteistön päädystä, toisesta kerroksessa, on mahdollisuus vuokrata toimistohuone tarvittaessa. Toimistotiloissa on lämmitys sähköpattereilla ja ilmalämpöpumpulla. Toimistotilat on remontoitu muutamia vuosia sitten ja jaettu erillisiin työhuoneisiin. Toimiston yhteydessä on myös keittiö.
Iso piha-alue on asfaltoitu. Alueelta on hyvä ja nopea yhteys moottoritielle (7 tie) Kotkan ja Porvoon suuntiin.
Soveltuu varastointiin tai tuotantoon, tilaan mahtuu isompiakin koneita!
Kohdetiedot
Sijainti
Osoite: Varastokuja 3, 07900 Loviisa
Kaupunginosa: Vanha Teollisuusalue
Ympäristö: Teollisuusalue
Rakennus/huoneisto
Pinta-alat: Noin 450 m²
Rakennusvuosi: Valmistunut kahdessa osassa, 1. vuonna 1971 ja 2. 1983
Kiinteistötyyppi: Tuotantotila/Hallitila
Tilatyyppi: Avointa hallitilaa
Kunto, varusteet ja palvelut: Tyydyttävä kunto (ulkopuoli) sisäpuoli on hyväkuntoinen, nosto-ovi ja tarvittaessa toimistohuone, wc yhteiskäytössä
Pysäköinti: Pihassa
Lämmitys: Kaasulämmitys
Vapautuu: Heti vapaa/nopeasti sopimuksen mukaan
Vuokrahinta ja kulut
Kuukausivuokra: 5,90 €/m²/kk + alv
Sähkö: Mittauksen mukaan
Vesimaksu: Vuokrattavassa osassa hallia ei ole vettä
Lämmitys: Sopimuksen mukaan
Jäte: Vuokralainen vastaa omista kuluistaan ja järjestelyistä
Auraus: Sisältyy vuokraan
Muuta: Minimisopimuskausi 12 kk, vakuus 3 kk:n vuokraa vastaava summa, luottotietojen oltava kunnossa
Isosta hallista vapaana on toinen pääty, joka on avointa tilaa ja sen pinta-ala on noin 450 m². Tilaan on iso sähkökäyttöinen nosto-ovi (L 4,0 metriä x korkeus 4,5 metriä) ja erillinen käyntiovi. Hallissa kestävä betonilattia ja hallin vapaa korkeus on 8 metriä. Rakennuksessa on runsaasti voimavirtaa ja vuokralaisen käytössä on tarvittaessa 5t siltanosturi. Vuokrattavalla alueella ei ole lattiakaivoa eikä vettä, mutta rakennuksen toisessa päädyssä on lattiakaivo ja vesipisteitä.
Rakennus on kokonaisuudessaan 1450 m² ja lämmitysmuotona hallissa on kaasulämmitys. Lämmönjakomuotona on puhallinlämmitys. Sähkönkulutus vaihtelee suuresti riippuen siitä, mitä toimintaa hallissa harjoitetaan. Sähkömaksuista sovitaan erikseen uuden vuokralaisen kanssa riippuen tilan käytöstä.
Vuokrattavana olevassa päädyssä ei ole wc:tä eikä vesipistettä, mutta vuokralaisen käyttöön osoitetaan wc kiinteistön muista tiloista.
Kiinteistön päädystä, toisesta kerroksessa, on mahdollisuus vuokrata toimistohuone tarvittaessa. Toimistotiloissa on lämmitys sähköpattereilla ja ilmalämpöpumpulla. Toimistotilat on remontoitu muutamia vuosia sitten ja jaettu erillisiin työhuoneisiin. Toimiston yhteydessä on myös keittiö.
Iso piha-alue on asfaltoitu. Alueelta on hyvä ja nopea yhteys moottoritielle (7 tie) Kotkan ja Porvoon suuntiin.
Soveltuu varastointiin tai tuotantoon, tilaan mahtuu isompiakin koneita!
Kohdetiedot
Sijainti
Osoite: Varastokuja 3, 07900 Loviisa
Kaupunginosa: Vanha Teollisuusalue
Ympäristö: Teollisuusalue
Rakennus/huoneisto
Pinta-alat: Noin 450 m²
Rakennusvuosi: Valmistunut kahdessa osassa, 1. vuonna 1971 ja 2. 1983
Kiinteistötyyppi: Tuotantotila/Hallitila
Tilatyyppi: Avointa hallitilaa
Kunto, varusteet ja palvelut: Tyydyttävä kunto (ulkopuoli) sisäpuoli on hyväkuntoinen, nosto-ovi ja tarvittaessa toimistohuone, wc yhteiskäytössä
Pysäköinti: Pihassa
Lämmitys: Kaasulämmitys
Vapautuu: Heti vapaa/nopeasti sopimuksen mukaan
Vuokrahinta ja kulut
Kuukausivuokra: 5,90 €/m²/kk + alv
Sähkö: Mittauksen mukaan
Vesimaksu: Vuokrattavassa osassa hallia ei ole vettä
Lämmitys: Sopimuksen mukaan
Jäte: Vuokralainen vastaa omista kuluistaan ja järjestelyistä
Auraus: Sisältyy vuokraan
Muuta: Minimisopimuskausi 12 kk, vakuus 3 kk:n vuokraa vastaava summa, luottotietojen oltava kunnossa
Vapautuu
Heti
Siltanosturi
Ota yhteyttä
Tilat.fi
KTM, LKV Antti Soivio
Näytä puhelinnumero
0400 446 553
OTM, LKV Riikka Tuominen
Näytä puhelinnumero
0400 551 790
MBA Susanne Wallenius
Näytä puhelinnumero
0400-128877
Yrityksen virallinen nimi: LKV Tilat.fi Oy.
Toimitilojen välitykseen erikoistunut yritys.
Pyydä lisätietoa
