Vuokrataan liiketilat - Kauniainen
Kirkkotie 15 B, Kauniainen, 02700 Kauniainen #10833199
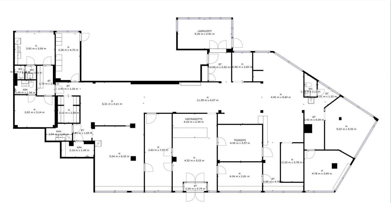
Vapaana liiketila Kauniaisten keskustassa, aivan kauppakeskus Granin vierellä.
Tila soveltuu moneen eri käyttöön.
Tilassa on toiminut mm. eläinlääkäriasema, apteekki ym. myymäläkäyttöä vuosien aikana.
Edellisen vuokralaisen aikana tilassa oli tehty muutostöitä, jotka ovat paikoin keskeneräisiä ja tilamuutokset mahdollisia.
Alkuperäisissä piirustuksissa tilaan oli suunniteltu ruokaravintola.
Ravintolaksi muuttaminen edellyttää niin taloyhtiön muutostyölupaa, kuin rakennusluvan hakemista.
Tilan edustalla terassitasanne.
Tilalla on myös lastauslaituri käytössä.
Lisätietoja ja esittelyt:
Mika Nyman
0400347758
mika.nyman@op.fi
Vesimaksu ennakko 20 € / kk, tasataan kulutuksen mukaan.
Vuokralaisen tehtävä oma sähkösopimus, sekä sopimus tietoliikenneyheyksistä.
Mahd.vapaat autopaikat taloyhtiön isännöitsijän toimiston kautta.
Liiketila on muodostettu kolmesta eri huoneistosta.
Tilassa on aiemmin toiminut apteekki ja eläinlääkäri.
Huoneiston käytössä lastauslaituri, mutta tavarahissi ja kellarikerroksen varasto ei ole käytössä
Vuokrausehdot:
Vuokra on alv:ton
Vuokravakuus 2 kk vuokraa vastaava summa.
Vuokrasopimus joko määräaikainen min. 3 vuotta tai toistaiseksivoimassa oleva, jossa on 1. mahd. irtisanomisaika 12 kk vuokrasopimuksen alkamisesta ja 3 kk irtisanomisaika.
Huoneisto vuokrataan siinä kunnossa kuin se on vuokraushetkellä.
Edellinen vuokralainen on tehnyt tilassa remonttia ja remontti on jäänyt paikoin keskeneräiseksi.
Vuokralaisen on mahdollista tehdä tilamuutoksia / remonttia kustannuksellaan.
Remonttisuunnitelma tulee esittää ja hyväksyttää vuokranantajalla, sekä taloyhtiöllä.
Mikäli tilaan suunnitellaan ravintolaa, tulee tehdä sähköinen hakemus Lupapiste.fi -palvelun kautta.
Palvelu opastaa liitteiden kanssa, tärkeimpänä suunnittelijan laatimat LVIS-suunnitelmat.
Asunto Oy Kirkkotie 15
Asuinkerrostalo
Asunnot 59 kpl
Liikehuoneistot 7 kpl.
Varastotilat 2 kpl.
Valmistunut 1963
Rakennusaine betoni
Tasakatto, peltikate.
Kaukolämpö
Koneellinen ilmanvaihto liiketilassa.
Oma tontti 3023 m².
Yhtiössä on kaapeli-TV ja tietoliikennejärjestelmänä DNA Welho
Huoltoyhtiö: Kotikatu Oy
Muut tilat:
Ilmoitettua pinta-alaa ei ole tarkastusmitattu.
2023
2023 korvausilmaventtiilien suodattimien vaihto.
2022 Ilmanvaihtokanavien ja korvausilmaventtiilien puhdistus.
2020 Piha-alueen kattovalaisimien uusiminen. Julkisivukorjaukset.
2019 Liiketilojen ulko-ovien ja pielilasien uusiminen ( 4 kpl). Pihan maavajoamien korjaus.
2017 Pihan autopaikkojen pääsähkösyöttöjohdon uusiminen. Asuintalon katon vesikourujen ja vesikaton pinnoitus.
2016 Tukimuurien kunnostus ja etupihan osittainen asfaltointi, sadevesien ohjaus ja kasvillisuuden uusiminen.
2015 Arkadipihan ja liiketilojen edustan asfaltointi.
2013 Alemman katon (liiketilat) pinnoitus.
2011 Linjasaneeraus, viemäri-ja käyttövesi putkistojen uusiminen ja
antenni-ja viestintäjärjestelmän sekä sähkönousujen ja ryhmäkeskuksien uusiminen.
Haitta-ainekartoitus tehty urakkakohteissa.
Pidempi korjaushistoria erillinen liite Kiinteistössä suoritettuja korjauksia ja kunnostuksia.
2025 Palovaroittimen asennus asuntoihin
2026-2027 Mahdollinen sähköautojen latausvalmiuden rakentaminen
2025-2029 Vuosittaisia elinkaarikorjauksia
OP Koti Uusimaa Oy LKV
Toimitilapalvelut
Arkadiankatu 23
00100 HELSINKI
Mika Nyman
Toimitilavälittäjä, Kiinteistöarvioija, LKV, YKV, AKA/KHK
Näytä puhelinnumero
0400 347 758
