Vuokrataan toimistotilat, varastotilat - Helsinki
Ruosilantie 14, Konala, 00390 Helsinki #10833004
Monipuolinen ja siisti 2223 m² varasto- ja toimistokokonaisuus loistopaikalta, Konalan ytimestä.
Osoite
Ruosilantie 14, 00390 Helsinki
Tilatyyppi
Toimistotilaa
218 m2
Varastotilaa
2005 m2
Yhteensä
2223 m2
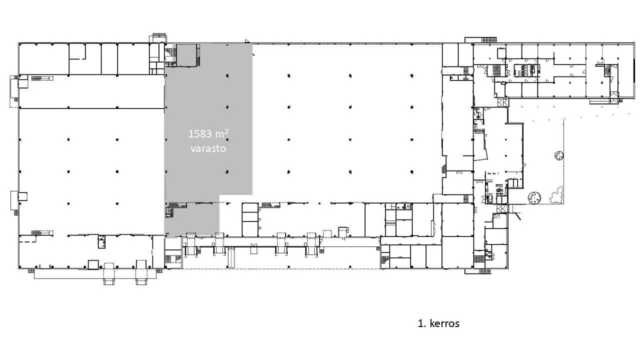
Pohjapiirros
Kiinteistö
Vuokrattava tila koostuu korkeasta varastosta (1 583 m²), siististä ja kompaktista parvivarastosta (422 m²) sekä toimistotiloista (218 m²), jotka tukevat sujuvaa varastointi- ja toimistotyöskentelyä saman katon alla. Korkea varasto on selkeää ja avaraa tilaa, jossa on lastauslaituri ja nosto-ovi, mikä tekee tavaraliikenteestä vaivatonta. Tilat ovat aiemmin toimineet tapahtuma-alan yrityksen käytössä, joten ne soveltuvat erinomaisesti vaativiin logistiikka- ja varastointitarpeisiin.
Kiinteistö on sitoutunut vastuullisuuteen ja energiatehokkuuteen. Katolle asennetut aurinkopaneelit mahdollistavat uusiutuvan energian hyödyntämisen jo nyt, ja syksystä 2025 alkaen lämmitysmuotona toimii maalämpö. Näiden investointien myötä kiinteistö on jatkossa täysin päästötön energian osalta – merkittävä askel kohti kestävää kehitystä ja pienempiä hiilijalanjälkiä myös vuokralaisille.
Kiinteistön vuokralaisia palvelee alueen arkea sujuvoittava lounasravintola sekä hyvät pysäköintimahdollisuudet, jotka varmistavat joustavan asioinnin niin henkilöstölle kuin yhteistyökumppaneille. Selkeä logistiikka-alue, toimivat lastausratkaisut ja tilojen muunneltavuus tekevät kokonaisuudesta käytännöllisen monenlaisiin tarpeisiin.
Sijainti Konalan vahvalla yritysalueella Kehä I:n liittymän välittömässä läheisyydessä takaa sujuvat kulkuyhteydet niin pääväylille kuin pääkaupunkiseudun sisälle. Hyvä saavutettavuus, riittävät pysäköintitilat ja alueen palvelut tekevät Ruosilantie 14:stä houkuttelevan vaihtoehdon yrityksille, jotka arvostavat tehokkuutta, vastuullisuutta ja toimivia logistiikkaratkaisuja.
Kiinteistö on sitoutunut vastuullisuuteen ja energiatehokkuuteen. Katolle asennetut aurinkopaneelit mahdollistavat uusiutuvan energian hyödyntämisen jo nyt, ja syksystä 2025 alkaen lämmitysmuotona toimii maalämpö. Näiden investointien myötä kiinteistö on jatkossa täysin päästötön energian osalta – merkittävä askel kohti kestävää kehitystä ja pienempiä hiilijalanjälkiä myös vuokralaisille.
Kiinteistön vuokralaisia palvelee alueen arkea sujuvoittava lounasravintola sekä hyvät pysäköintimahdollisuudet, jotka varmistavat joustavan asioinnin niin henkilöstölle kuin yhteistyökumppaneille. Selkeä logistiikka-alue, toimivat lastausratkaisut ja tilojen muunneltavuus tekevät kokonaisuudesta käytännöllisen monenlaisiin tarpeisiin.
Sijainti Konalan vahvalla yritysalueella Kehä I:n liittymän välittömässä läheisyydessä takaa sujuvat kulkuyhteydet niin pääväylille kuin pääkaupunkiseudun sisälle. Hyvä saavutettavuus, riittävät pysäköintitilat ja alueen palvelut tekevät Ruosilantie 14:stä houkuttelevan vaihtoehdon yrityksille, jotka arvostavat tehokkuutta, vastuullisuutta ja toimivia logistiikkaratkaisuja.
Vapautuu
Heti
Rakennusvuosi
1971
Saneerausvuosi
2001
Kerros
1 / 3
Energiatehokkuusluokka
Ei lain edellyttämää energiatodistusta
Näkyvällä paikalla
Lastauslaituri
Ota yhteyttä
ScanReal Oy LKV
Opus Business Park
Hitsaajankatu 24
00810 Helsinki
info@scanreal.fi
Puh:
Näytä puhelinnumero
020 730 8830
Sopivat toimitilat yhdellä otolla!
Kartoitamme toimitilatarpeesi ja etsimme yrityksellesi parhaiten sopivat vapaat toimitilat. Koska vuokranantajat maksavat palvelumme, on tämä yrityksellesi veloituksetonta.
OTA YHTEYTTÄ - SOVI NÄYTTÖ!
Kaikki kohteemme eivät ole netissä, kerro tilatarpeesi niin kartoitamme vaihtoehdot.
Palvelumme on tilanhakijalle ilmainen
Pyydä lisätietoa
