Myydään tuotantotilat - Kankaanpää
Venesjärventie 774, Venesjärvi, 38760 Kankaanpää #10832961
Hyväkuntoinen hallikiinteistö Venesjärven keskustassa.
Kolmesta tilasta muodostuvan kokonaisuuden pinta-ala lähes 1,4ha.
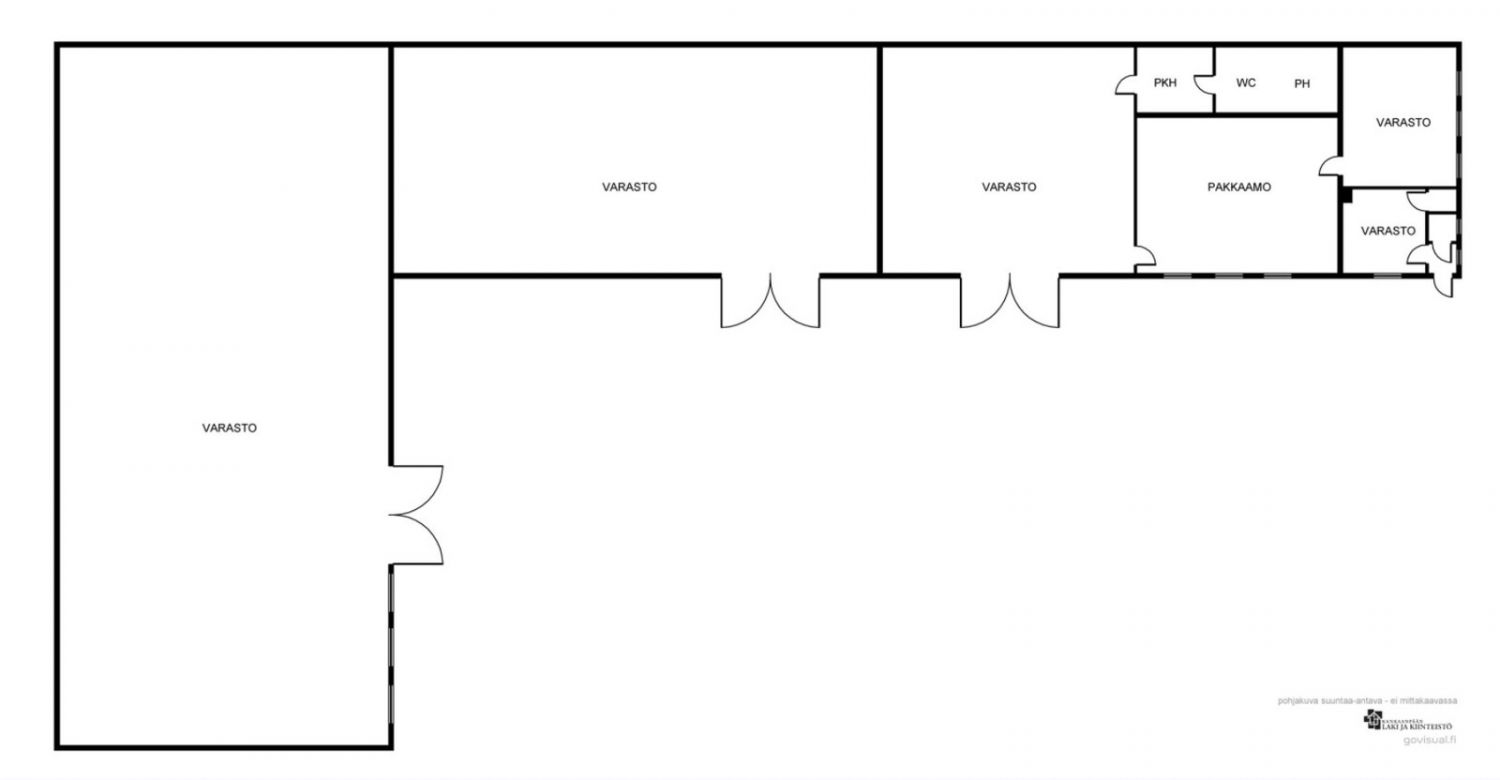
Hallirakennus valmistunut vuonna 1983 ja laajennettu vuonna 1989. Tämän jälkeen rakennusta huollettu säännöllisesti. Rakennuksen kerrosala noin 642 neliötä. Hallitilan sisäseinät peltiverhoiltu, lattioissa epoksimaali. Kolmen hallitilan lisäksi varasto/kylmiötilaa sekä sosiaali- ja toimistotilat. Tiloissa toiminut pitkään elintarvikealan yritys, mutta tilat muuntuvat myös moneen muuhun käyttötarkoitukseen. Suuri asfalttipiha, jossa lisäksi toimistokäytössä ollut entinen asuinrakennus. Asfaltoitua aluetta yhteensä noin 1700 neliötä. Tontti mahdollistaa myös hallirakennuksen läpiajettavaksi muuttamisen. Tontilla lisäksi tenniskenttä, joten liikunnastakin pääsee nauttimaan omalla pihalla. Sähköliittymä 3X63a, kaupungin vesijohto- ja viemäriliittymät. Lisäksi kauppaa seuraa suurin osa irtaimistosta. Hyvin hoidettu kokonaisuus tarjolla. Tule tutustumaan!
Vuosittainen Varainsiirtovero 3%.
Kiinteistön 214-423-3-231 kiinteistövero = 339,43€, 214-423-3-240 = 54,02€, 214-423-3-52 = 25,35€
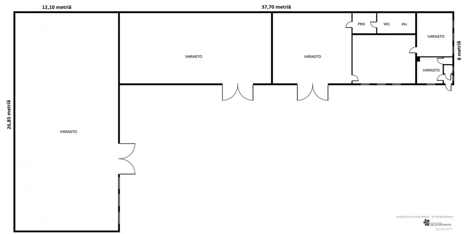
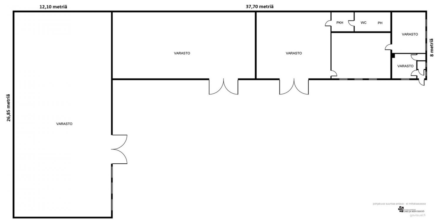
# hallitilaa.
2 kylmiötä.
sosiaalitilat, ylhäällä toimistotilat ja keittiö.
Seinärakenne ulkoapäin (pelti/150mm uretaani/pelti). Kantava rakenne teräspilari. Rakennus kauttaaltaan eristetty. Kaksi uudehkoa, sähkötoimista nosto-ovea. Sisäkorkeus korkeimmillaan noin 5,5metriä. Matala osa noin
3,8metriä. Rakennukset mitat:
Uusin osa: 26,85 X 12,10 metriä. Vanhempi osa 37,70 X 8 metriä. Epoksimaali lattiassa.
Hallirakennuksessa jokaisessa tilassa vesijohtoverkosto ja viemärit. Lisäksi talvella toimivat ulkovesipisteet.
Sisätiloissa paineilmaverkosto.
Hallitilan yläkerrassa keittiö ja toimisto. Toimistorakennuksessa keittiö.

Kankaanpään Laki ja Kiinteistö Oy
Keskuskatu 61
38700 KANKAANPÄÄ
Näytä puhelinnumero
+35825788991
Tuori Juhani
kiinteistönvälittäjä, kaupanvahvistaja
Näytä puhelinnumero
044-553 0215