Vuokrataan tuotantotilat, varastotilat, työtilat, autotalli/-hallitilat - Porvoo
Tolkkistentie 773, 06750 Porvoo #10832943
Korkeaa ja monipuolista hallitilaa Tolkkisten satama-alueelta!
Osoite
Tolkkistentie 773, 06750 Porvoo
Tilatyyppi
Tuotantotilaa
393,5 m2
Varastotilaa
393,5 m2
Työtilaa
393,5 m2
Autotalli/-hallitilaa
393,5 m2
Yhteensä
393,5 m2
Virtuaaliesittely
Vuokra
8,90 €/m²/kk + alv
Muuta
Nyt vuokrattavana moneen yritystoimintaan soveltuva tuotanto-/varastotila Tolkkisten satama-alueella.
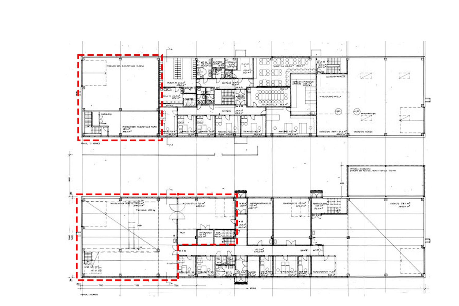
Vuokrattavat tilat muodostuvat isosta tuotantohallitilasta, jonka yhteydessä toisen kerroksen lisävarastotila sekä hitsauspajana toiminut matalampi tila. Tilat ovat merkitty pohjakuvaan punaisella katkoviivalla. Tuotantohallitilan pinta-ala on noin 271 m² ja toisen kerroksen pinta-ala on 48,5 m²:n. Hallista suora kulku hitsauspajaan, jonka pinta-ala on 74 m². Hitsauspajan vapaa korkeus on noin 3 metriä ja siellä on sähkökäyttöinen nosto-ovi (L3 m x K2,5m) sekä runsaasti voimavirtapistokkeita. Tuotantohallin takaosassa on kaksi vesipistettä sekä toisessa kerroksessa vielä yksi vesipiste. Hallin sisätilan korkeus on noin 6 metriä. Tilaan on käyntiovella varustettu sähkökäyttöinen nosto-ovi, jonka mitat 4,5 m x 4,5 m sekä hiljattain uusittu IV-kone. Tiloissa ei ole lattiakaivoja.
Hallissa on kolme ei käytössä olevaa siltanosturia (2t), jotka kulkevat vanhasta hitsauspajasta tuotantotilan puolelle. Vuokralainen saa halutessaan (omakustanteisesti) huollattaa nosturit käyttökuntoon itselleen. Tästä on kuitenkin sovittava erikseen.
Kohde soveltuu moneen käyttöön, mutta erityisesti sellaiselle yritykselle, joka tarvitsee yhteyttä merelle. Tilassa ei ole omaa wc, mutta tilan läheisyydessä on sekä wc että sosiaalitilat vuokralaisen käytössä.
Asfaltoidut ja aidatut piha-alueet. Rakennus ei ole ympäriajettavissa ja päädyssä isommalla yhdistelmällä ahdasta.
Samassa rakennuksessa on lisäksi tarjolla hyväkuntoista toimistotilaa toisesta kerroksesta, kysy tästä tarvittaessa lisää.
Laadukkaat ja monipuoliset tilat satama-alueella!
Kohdetiedot
Sijainti
Katuosoite: Tolkkistentie 773, 06750 Porvoo
Kaupunginosa: Tolkkinen
Ympäristö: Teollisuutta, meri ja satama
Rakennus/huoneisto
Pinta-alat: 271 m² + parvi 48,5 m² + 74 m²
Rakennustyyppi: Teollisuusvarastorakennus
Huoneistoselitelmä: Korkeaa ja matalaa varasto- ja teollisuustilaa, toimistotilaa ja sosiaalitilat
Kerros: 1 + parvi
Kunto, varusteet ja palvelut: Hyvä kunto. Nosto-ovi, parvi, wc:n käyttömahdollisuus
Energiatodistus: Laki ei edellytä todistusta
Vapautuu: Heti vapaa
Pysäköinti: Pihassa
Vuokrahinta ja kulut
Kuukausivuokra: 8,90 €/m²/kk + alv
Vesimaksu: Kulutuksen mukaan
Sähkö: Mittauksen mukaan
Lämmitys: Mittauksen mukaan (kaukolämpö)
Muut maksut: Piha-alueen hoito ja jätehuolto vuokralaisen kustannuksella
Muuta: Minimisopimuskausi 12 kk, vakuus 3kk:n vuokraa vastaava summa, luottotietojen oltava kunnossa
Vuokrattavat tilat muodostuvat isosta tuotantohallitilasta, jonka yhteydessä toisen kerroksen lisävarastotila sekä hitsauspajana toiminut matalampi tila. Tilat ovat merkitty pohjakuvaan punaisella katkoviivalla. Tuotantohallitilan pinta-ala on noin 271 m² ja toisen kerroksen pinta-ala on 48,5 m²:n. Hallista suora kulku hitsauspajaan, jonka pinta-ala on 74 m². Hitsauspajan vapaa korkeus on noin 3 metriä ja siellä on sähkökäyttöinen nosto-ovi (L3 m x K2,5m) sekä runsaasti voimavirtapistokkeita. Tuotantohallin takaosassa on kaksi vesipistettä sekä toisessa kerroksessa vielä yksi vesipiste. Hallin sisätilan korkeus on noin 6 metriä. Tilaan on käyntiovella varustettu sähkökäyttöinen nosto-ovi, jonka mitat 4,5 m x 4,5 m sekä hiljattain uusittu IV-kone. Tiloissa ei ole lattiakaivoja.
Hallissa on kolme ei käytössä olevaa siltanosturia (2t), jotka kulkevat vanhasta hitsauspajasta tuotantotilan puolelle. Vuokralainen saa halutessaan (omakustanteisesti) huollattaa nosturit käyttökuntoon itselleen. Tästä on kuitenkin sovittava erikseen.
Kohde soveltuu moneen käyttöön, mutta erityisesti sellaiselle yritykselle, joka tarvitsee yhteyttä merelle. Tilassa ei ole omaa wc, mutta tilan läheisyydessä on sekä wc että sosiaalitilat vuokralaisen käytössä.
Asfaltoidut ja aidatut piha-alueet. Rakennus ei ole ympäriajettavissa ja päädyssä isommalla yhdistelmällä ahdasta.
Samassa rakennuksessa on lisäksi tarjolla hyväkuntoista toimistotilaa toisesta kerroksesta, kysy tästä tarvittaessa lisää.
Laadukkaat ja monipuoliset tilat satama-alueella!
Kohdetiedot
Sijainti
Katuosoite: Tolkkistentie 773, 06750 Porvoo
Kaupunginosa: Tolkkinen
Ympäristö: Teollisuutta, meri ja satama
Rakennus/huoneisto
Pinta-alat: 271 m² + parvi 48,5 m² + 74 m²
Rakennustyyppi: Teollisuusvarastorakennus
Huoneistoselitelmä: Korkeaa ja matalaa varasto- ja teollisuustilaa, toimistotilaa ja sosiaalitilat
Kerros: 1 + parvi
Kunto, varusteet ja palvelut: Hyvä kunto. Nosto-ovi, parvi, wc:n käyttömahdollisuus
Energiatodistus: Laki ei edellytä todistusta
Vapautuu: Heti vapaa
Pysäköinti: Pihassa
Vuokrahinta ja kulut
Kuukausivuokra: 8,90 €/m²/kk + alv
Vesimaksu: Kulutuksen mukaan
Sähkö: Mittauksen mukaan
Lämmitys: Mittauksen mukaan (kaukolämpö)
Muut maksut: Piha-alueen hoito ja jätehuolto vuokralaisen kustannuksella
Muuta: Minimisopimuskausi 12 kk, vakuus 3kk:n vuokraa vastaava summa, luottotietojen oltava kunnossa
Vapautuu
Heti
Kerros
1 / 2
Katutasossa
Näkyvällä paikalla
Siltanosturi
Ota yhteyttä
Tilat.fi
KTM, LKV Antti Soivio
Näytä puhelinnumero
0400 446 553
OTM, LKV Riikka Tuominen
Näytä puhelinnumero
0400 551 790
KTM, LKV Maria-Sofia Puhakka
Näytä puhelinnumero
0400-150330
MBA, LKV Susanne Wallenius
Näytä puhelinnumero
0400-128877
LKV Tilat.fi Oy on toimitilojen välitykseen erikoistunut yritys.
http://www.tilat.fiPyydä lisätietoa
