Vuokrataan liiketilat - Helsinki
Mannerheimintie 4, Kamppi, 00100 Helsinki #10832190
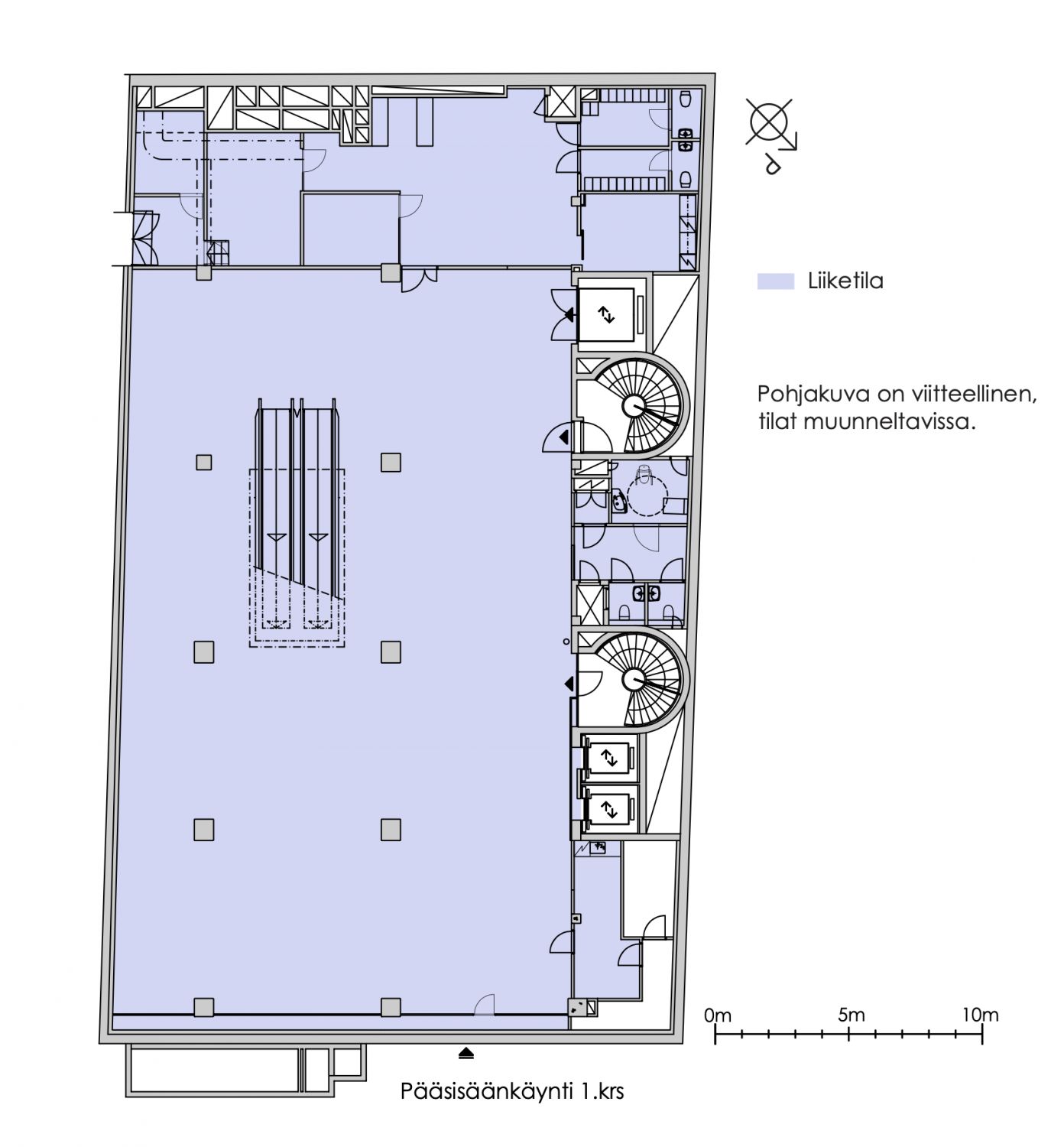
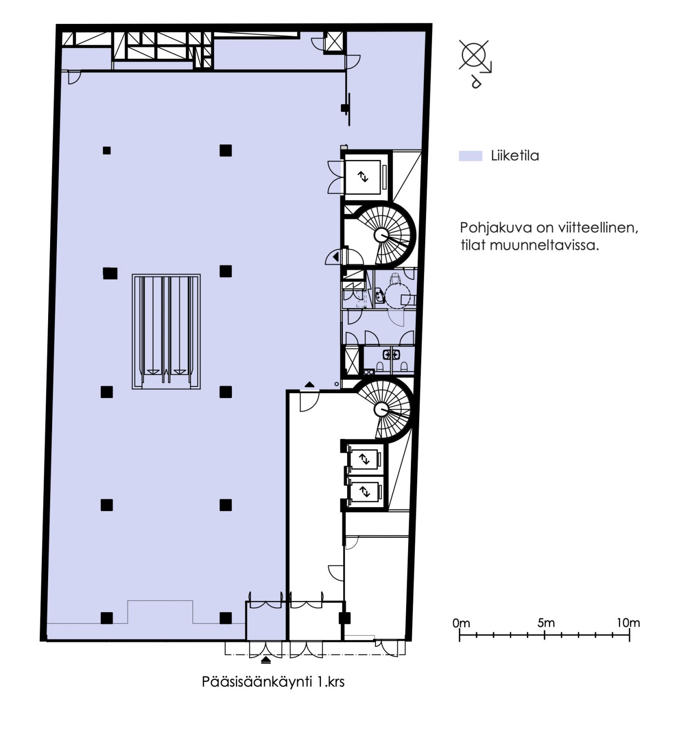
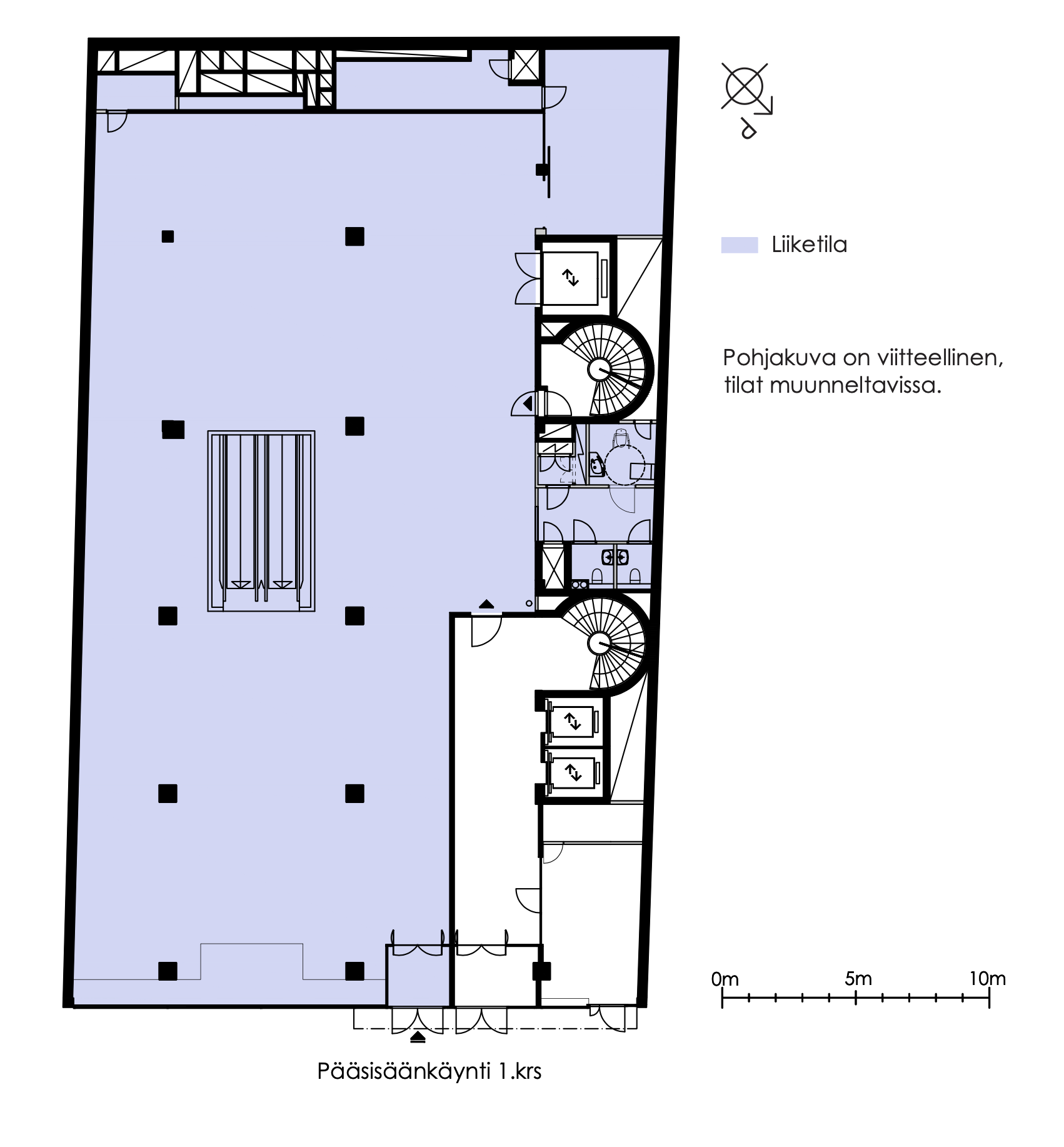
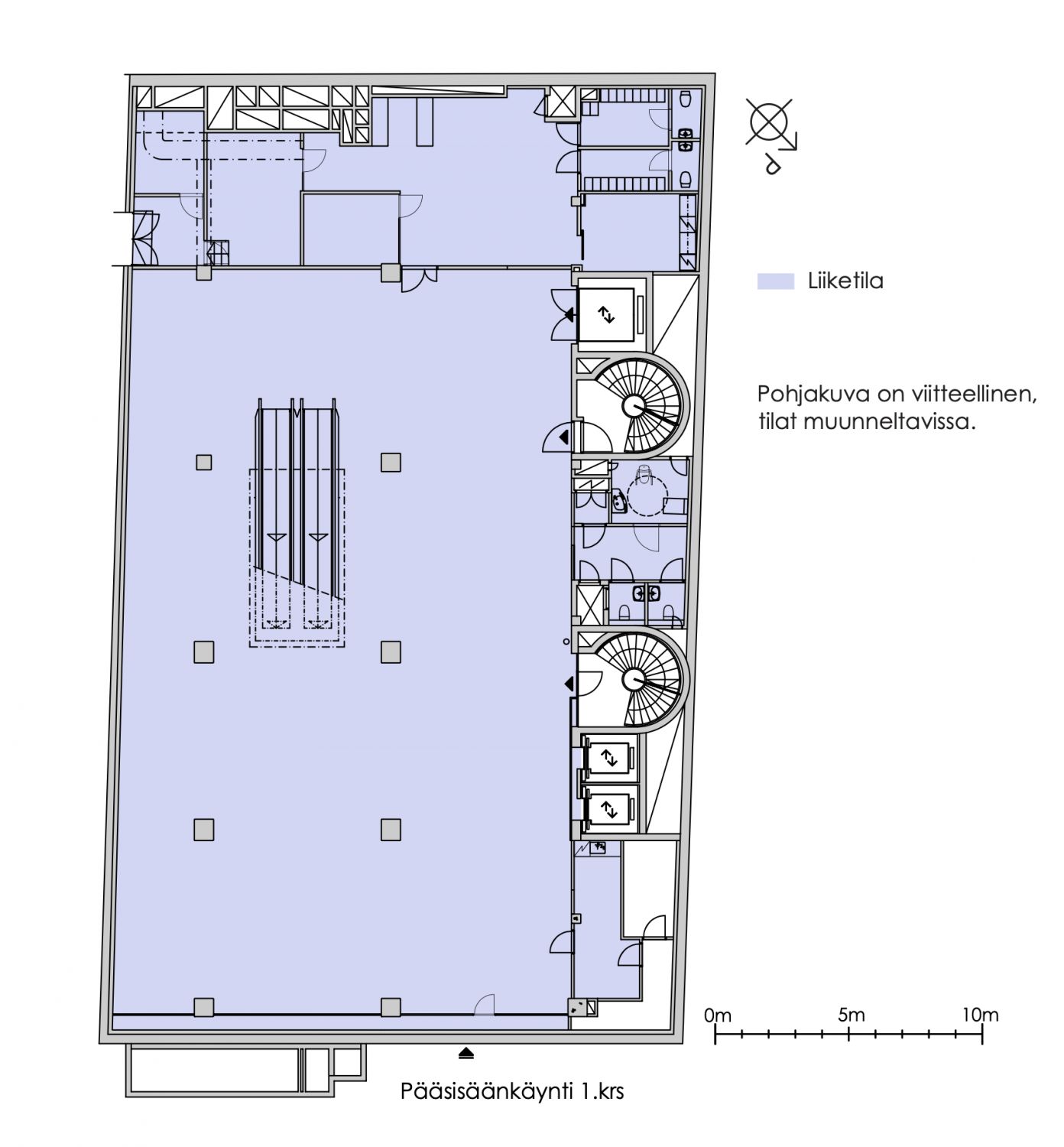
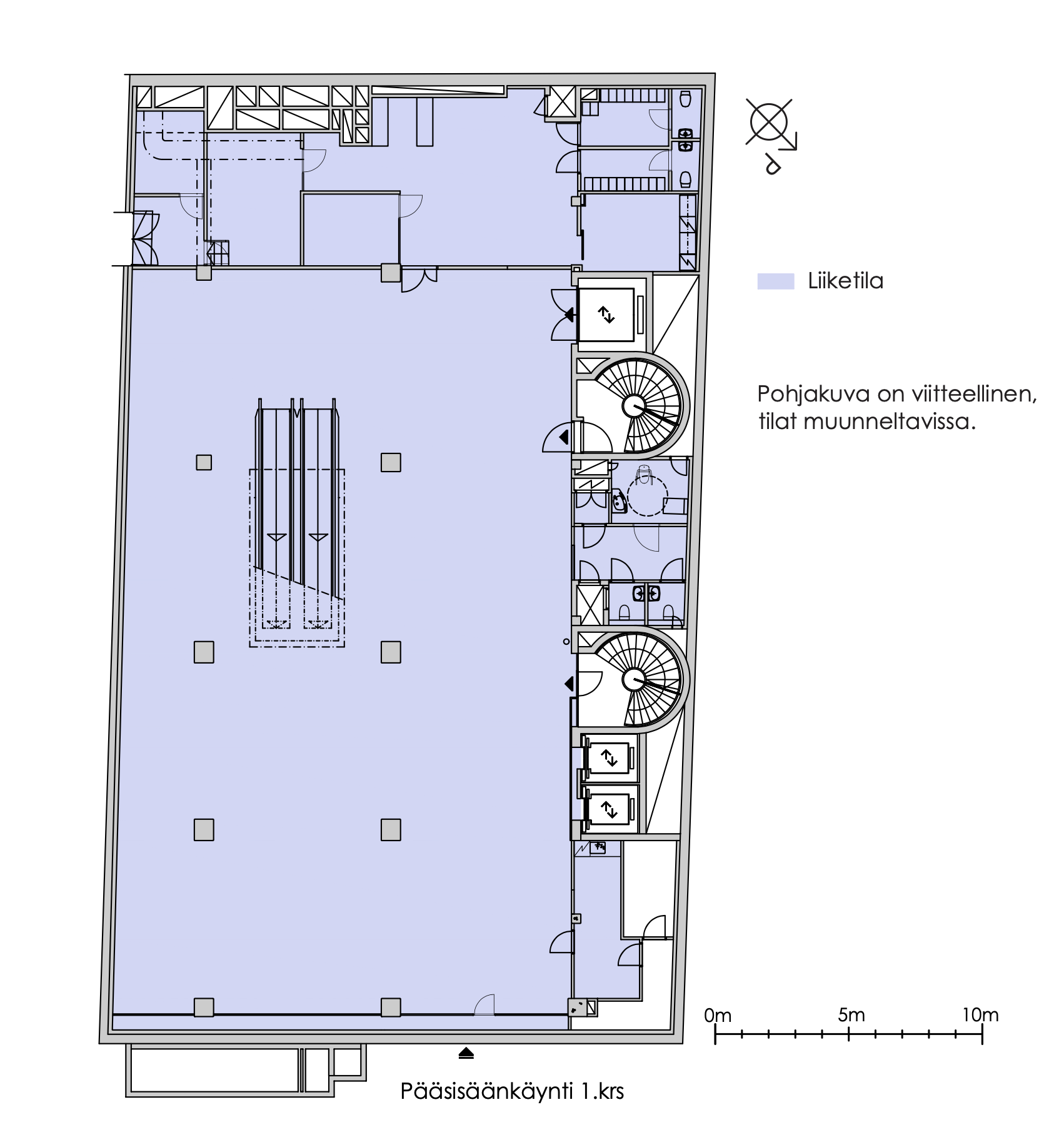
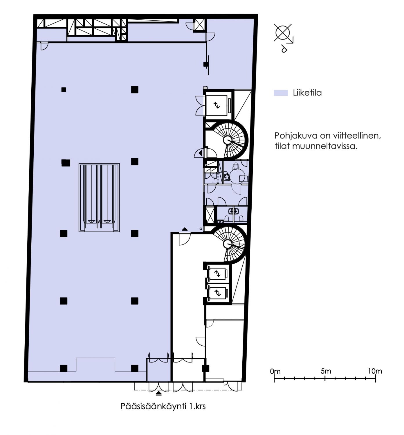
Tasokas liiketila Mannerheimintien sykkeessä vastapäätä Svenska Teatternia. Liiketilassa on mainio näyteikkunanäkyvyys kadulle. Kaksikerroksinen tila on hyvin muunneltavissa vuokralaisen tarpeisiin. Kokonaisuus sisältää 592m² liiketilan katutasossa + 637m² liiketilan K1 kerroksessa.
Osoite
Mannerheimintie 4, 00100 Helsinki
Tilatyyppi
Liiketilaa
1229 m2
Pohjapiirros
Kiinteistö
Tämä kiinteistö sijaitsee loistavalla paikalla, aivan Helsingin liikekeskuksen ytimessä. Kuusikerroksinen rakennus tarjoaa runsaasti toimisto- ja liiketilaa. Kiinteistön liiketiloista on erinomainen näkyvyys Mannerheimintielle.
Kiinteistöltä on hyvät julkiset liikenneyhteydet moneen suuntaan. Rautatieasema sijaitsee lyhyen kävelymatkan päässä ja aivan kiinteistön lähettyvillä ovat Erottajan ja Ylioppilastalon raitiovaunupysäkit. Autot voi pysäköidä joko Aimo Park Iso Erottajalle tai Forumin parkkihalliin. Kiinteistön keskeisen sijainnin ansiosta keskustan monipuoliset palvelut ovat helposti saavutettavissa.
Kiinteistölle on myönnetty BREEAM In-Use Excellent -tason ympäristösertifikaatti. BREEAM (Building Research Establishment Environmental Assessment Method) on kansainvälinen rakennusten ympäristöluokitusjärjestelmä, joka tähtää rakennuksen käytön ympäristövaikutusten vähentämiseen sekä terveellisempien työympäristöjen kehittämiseen.
Kiinteistöltä on hyvät julkiset liikenneyhteydet moneen suuntaan. Rautatieasema sijaitsee lyhyen kävelymatkan päässä ja aivan kiinteistön lähettyvillä ovat Erottajan ja Ylioppilastalon raitiovaunupysäkit. Autot voi pysäköidä joko Aimo Park Iso Erottajalle tai Forumin parkkihalliin. Kiinteistön keskeisen sijainnin ansiosta keskustan monipuoliset palvelut ovat helposti saavutettavissa.
Kiinteistölle on myönnetty BREEAM In-Use Excellent -tason ympäristösertifikaatti. BREEAM (Building Research Establishment Environmental Assessment Method) on kansainvälinen rakennusten ympäristöluokitusjärjestelmä, joka tähtää rakennuksen käytön ympäristövaikutusten vähentämiseen sekä terveellisempien työympäristöjen kehittämiseen.
Sijainti
Kiinteistö sijaitsee aivan Helsingin ydinkeskustassa, Svenska Teaternia vastapäätä. Kaikki julkiset liikennevälineet ovat lyhyen kävelymatkan päässä.
Pysäköinti
Autopaikat Forum-P ja Q-Park Erottaja
Palvelut
Kaikki keskustan palvelut sijaitsevat kävelyetäisyydellä. Työmatkapyöräilijöitä varten kiinteistöstä löytyy polkupyöräparkit sekä sosiaalitilat.
Kulkuyhteydet
Lähimmälle bussipysäkille 550 m
Lähimmälle juna-asemalle 550 m
Lähimmälle metroasemalle 550 m
Lähimmälle raitiovaunupysäkille 100 m
Lentokentälle 30 min
Lähimmälle juna-asemalle 550 m
Lähimmälle metroasemalle 550 m
Lähimmälle raitiovaunupysäkille 100 m
Lentokentälle 30 min
Vapautuu
Kysy
Rakennusvuosi
1965
Kerros
K1-1
Energiatehokkuusluokka
B2018
Ympäristöluokitus
BREEAM In-Use Excellent,GRESB Global Sector Leader 2024
Ota yhteyttä
Sponda Oy
Yrjönkatu 29C, 00100 Helsinki
Näytä puhelinnumero
020 43131
Sirpa Vuorimaa
Director, Retail
Näytä puhelinnumero
+358 40 7654 222
Sponda Oy
https://www.sponda.fiPyydä lisätietoa
