Uudiskohde
Myydään tuotantotilat - Siilinjärvi
Talliomax Perämiehenkuja 5, Perämiehenkuja 5, 70900 Siilinjärvi #10831934
Toivalan yritysalueelle valmistuu vuoden 2025 lopussa hallirakennus, josta myydään 28-106 m2 tuotanto- ja varastotilaa.
Osoite
Perämiehenkuja 5, 70900 Siilinjärvi
Tilatyyppi
Tuotantotilaa
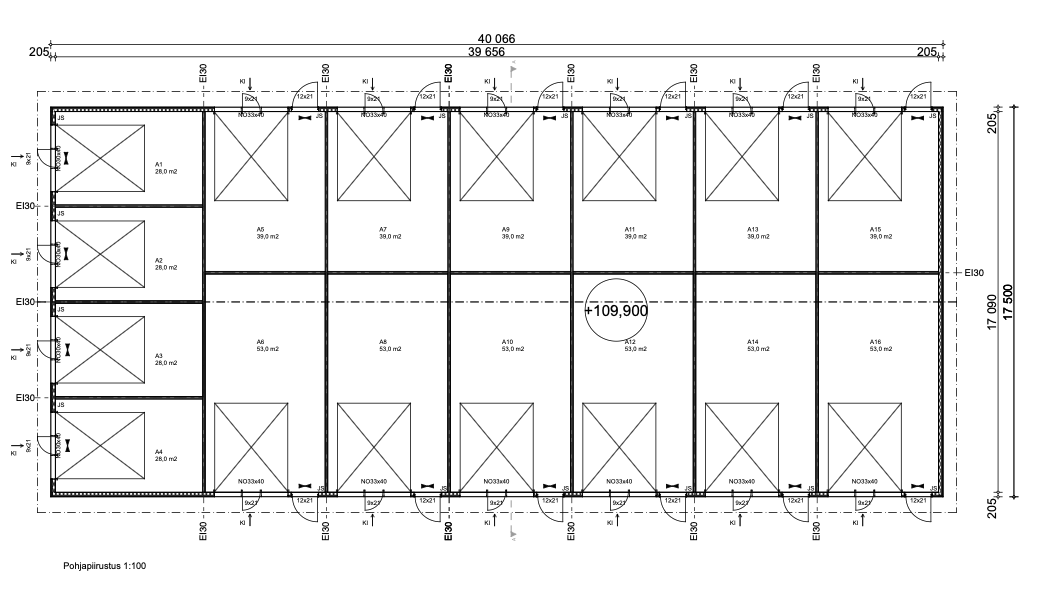
28 - 184 m2
Tilajako
Tiloja vapaana 28-184 m2 tarpeen mukaan.
Pohjapiirros
Tila soveltuu
Studio/ateljé, autokorjaamo, popup, tulityötila, elintarviketila
Myyntihinta
18950
Kiinteistö
Tiloissa vakiona huonekorkeus 5,4 m, nosto-ovi 4 m, kolmivaihesähköt, hiekan- ja öljynerotuskaivo, led-valaistus ja wc-varaus sekä vesipiste.
Hinnat alkaen 18950 euroa (28 m2 tila).
Hinnat alkaen 18950 euroa (28 m2 tila).
Sijainti
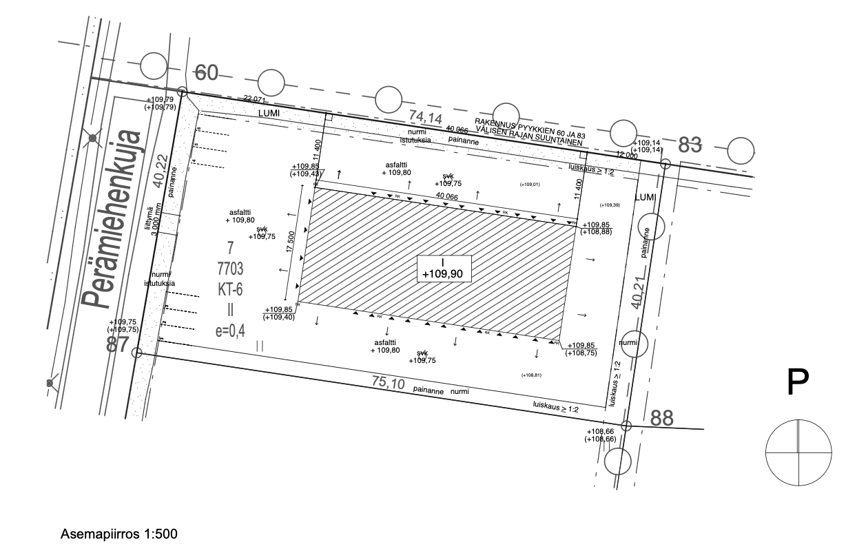
Sijainti 9-tien välittömässä läheisyydessä lentokentän uuden eritasoliittymän lähellä.
Kulkuyhteydet
Kuopion torilta 12 minuuttia.
Vapautuu
Heti
Rakennusvuosi
2025 (uudiskohde)
Kerros
1 / 1
Energiatehokkuusluokka
A2018
Uudiskohde
Ota yhteyttä
Antila Invest Oy
Lentojätkäntie 2 A
45360 Kouvola
Näytä puhelinnumero
0400441414
Talliomax -hallien tilat ovat muunneltavissa ja yhdisteltävissä tarpeidesi mukaan. Voit helposti luoda monikäyttöisen tilan, joka muuntuu elämäntilanteesi mukana.
https://www.talliomax.fiPyydä lisätietoa
