Vuokrataan toimistotilat - Espoo
Metsänpojankuja 1, Pohjois-Tapiola, 02130 Espoo #10831753
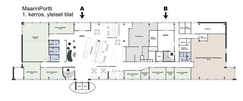
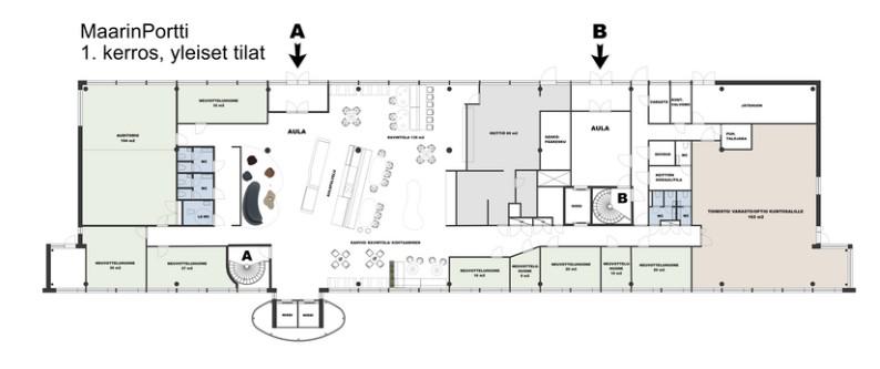
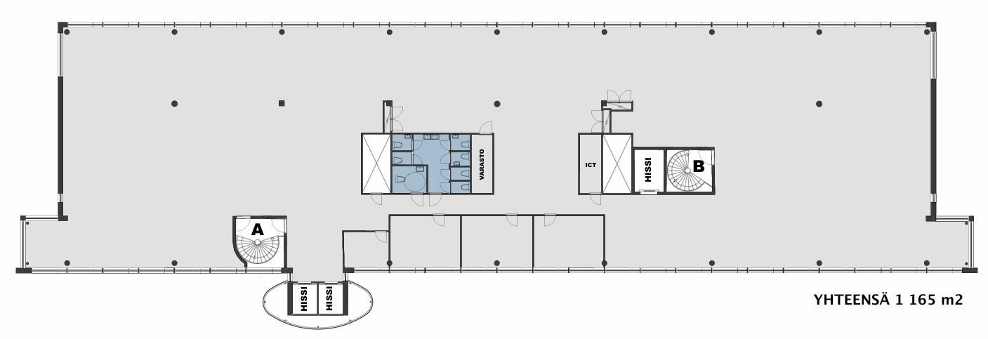
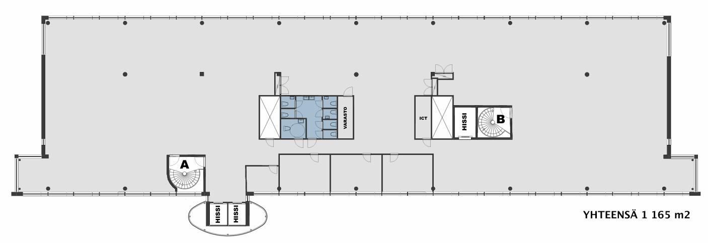
Maarinportti - Toimisto 6180 m²
Osoite
Metsänpojankuja 1, 02130 Espoo
Tilatyyppi
Toimistotilaa
6180 m2
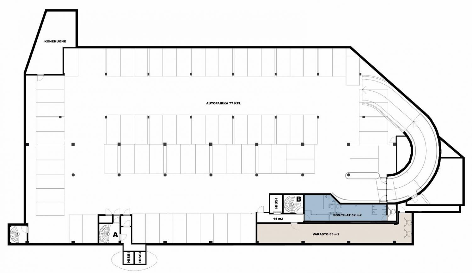
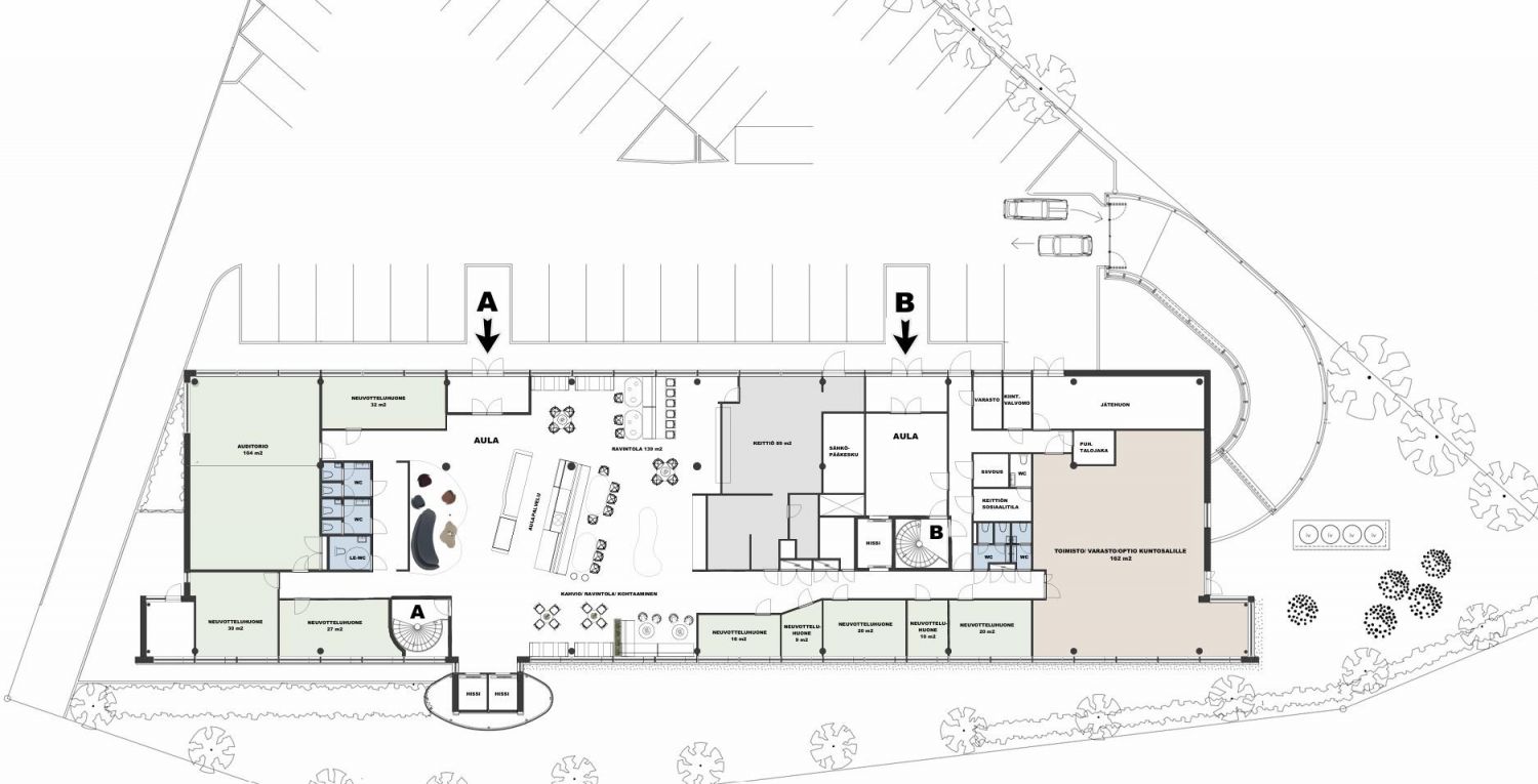
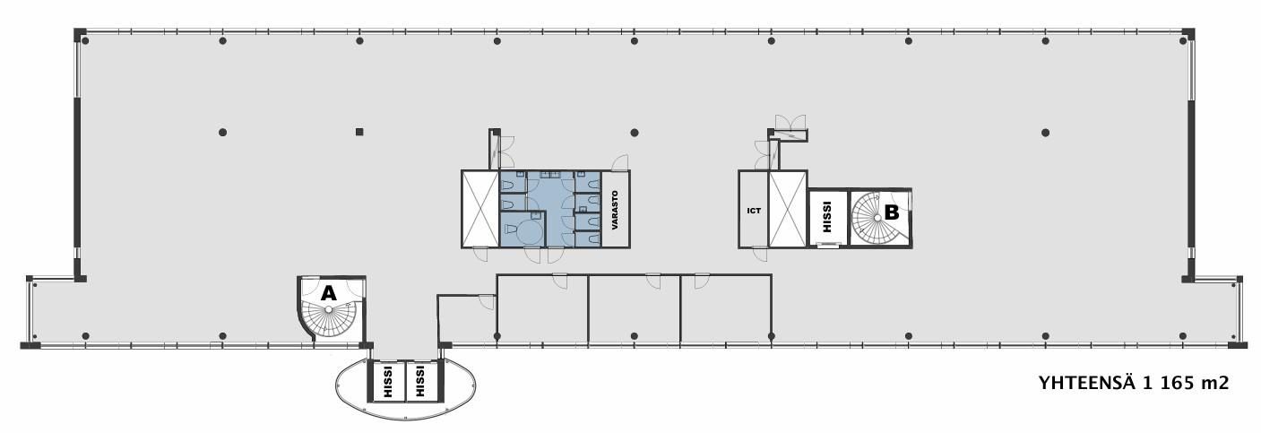
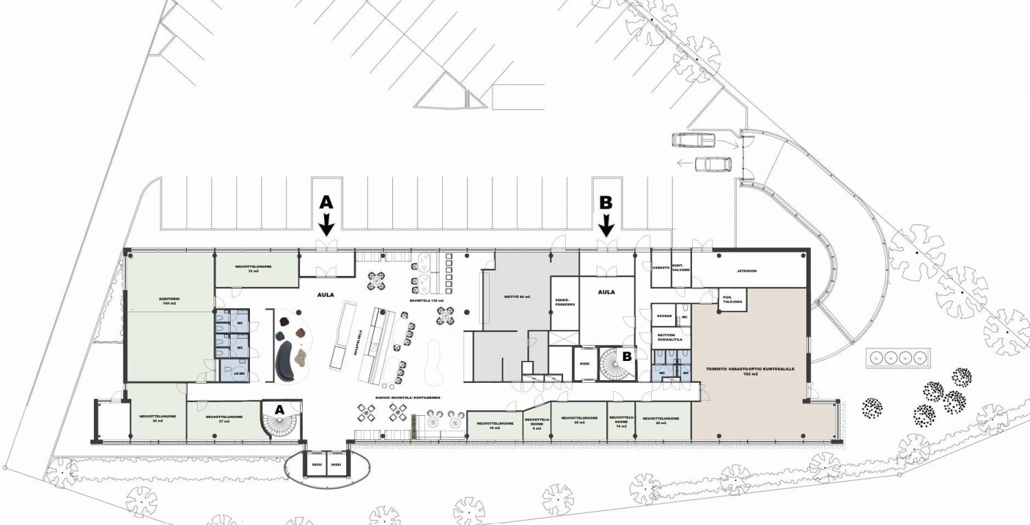
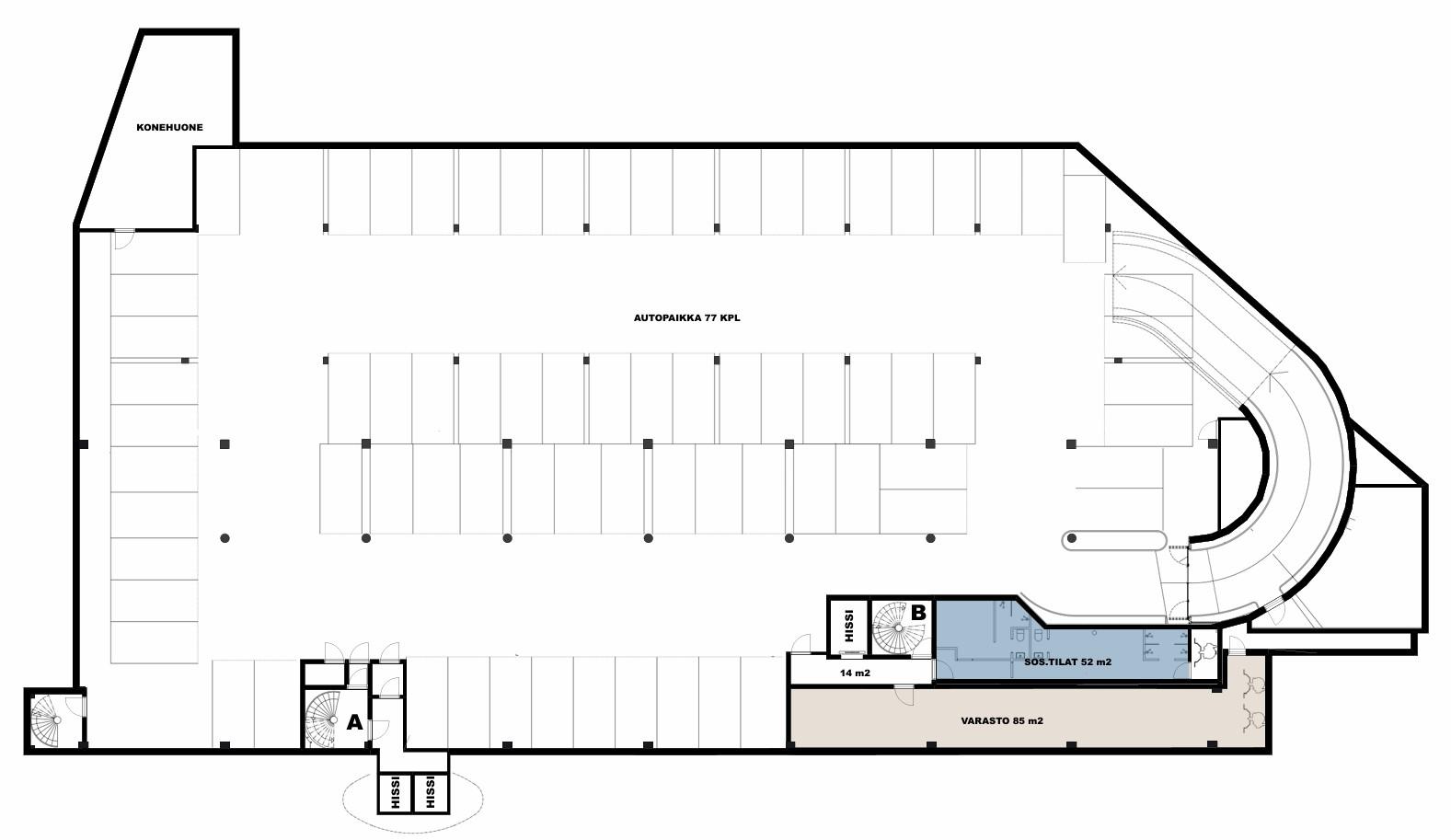
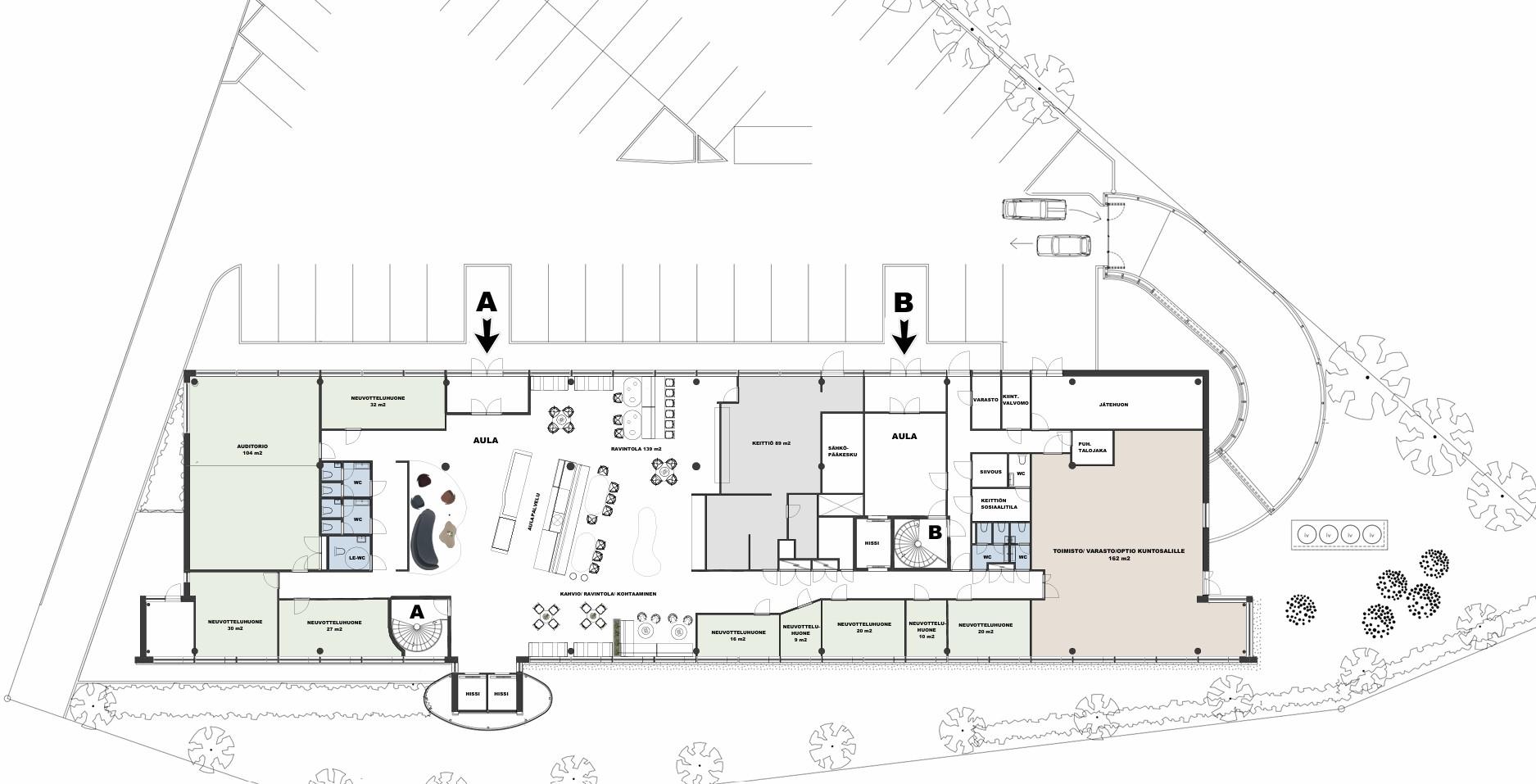
Pohjapiirros
Kiinteistö
Vuokrataan kokonainen toimistorakennus
MaarinPortti on pääkonttoritason toimistokohde, joka valmistuu täysin uudistettuna vuonna 2025. Tarjolla on itsenäinen toimistokokonaisuus, johon saa työpisteet jopa yli 400 henkilön organisaatiolle. Lisäksi käytössä on runsaat liiketoiminnan tukitilat katutasossa ja ylimmässä kerroksessa. Ota yhteyttä, niin kerromme lisää!
Espoon MaarinPortti – Monipuoliset ja mukautuvat toimitilat
MaarinPortti tarjoaa moderneja ja muunneltavia toimitiloja Pohjois-Tapiolassa, jotka suunnitellaan yksilöllisesti vastaamaan yrityksesi tarpeita. Toimistotiloja on tarjolla kokoluokissa 198 m² - 6180 m². Tulevalla asiakkaalla on mahdollisuus vaikuttaa oman toimistonsa lopullisiin materiaali- ja toimitilaratkaisuihin. Muutos on helppoa, sillä käytettävissä on tilasuunnittelijan palvelut, jotta yrityksesi tilaratkaisuista saadaan toimiva ja sujuva kokonaisuus.
Tervetuloa MaarinPorttiin – tulevaisuuden toimitiloihin, joissa yrityksesi voi kasvaa ja menestyä!
Sijainti
MaarinPortti sijaitsee Pohjois-Tapiolassa, Kehä I:n ja Tapiolan liittymän välittömässä läheisyydessä. Tämä 6-kerroksinen toimitilakiinteistö yhdistyy Otaniemen länsiosassa olevaan Maarin alueeseen Kehä I:n yli menevän Maarinsillan kautta. Alueen mittava täydennysrakentaminen ja raidejokeripysäkin valmistuminen tekevät siitä entistä monipuolisemman ja arvokkaamman osan kulttuuriympäristöä.
MaarinPorttiin on helppo saapua niin julkisilla kulkuvälineillä kuin autolla. Kiinteistön oma pysäköintihalli takaa vaivattoman pysäköinnin, ja uudistuksen yhteydessä sinne lisätään myös sähköautojen latauspisteitä. Kehä I:tä pitkin kulkevat lukuisat bussit, ja runkolinja 550 palvelee erityisen hyvin MaarinPorttiin saapuvia. Lähin metroasema, Aalto-yliopisto, on vain 15 minuutin kävelymatkan päässä. Tapiolan keskus ja Kauppakeskus Ainoan kattavat palvelut ovat noin 2 km päässä, ja merellinen Laajalahden luonnonsuojelualue sekä Espoon rantaraitti ovat vain 8 minuutin kävelymatkan päässä.
Palvelut
MaarinPortti tarjoaa laadukkaita palveluita, jotka tukevat yrityksesi toimintaa ja työntekijöiden hyvinvointia. Kiinteistössä on aulapalvelu, lounasravintola, catering, vuokrattavia neuvottelutiloja ja auditorio. 6. kerros voidaan keskittää täysin työhyvinvointia edistäville toiminnoille, kuten aktiivisuuteen ja liikuntaan. Kerroksessa on myös katettu näköalaterassi, joka tarjoaa upeat puitteet rentoutumiseen ja sosiaaliseen kanssakäymiseen.
Lähialueella on lisää palveluita: lounasravintoloita ja ruokakauppa, jotka lisäävät alueen viihtyisyyttä ja käytännöllisyyttä.
Vastuullisuus
MaarinPortti saneerataan vuosien 2024-2025 aikana, ja tavoitteena on saavuttaa LEED Platinum -tason ympäristösertifikaatti. Tämä on kansainvälisen LEED-sertifiointijärjestelmän korkein taso, joka kertoo erinomaisesta ympäristöasioiden huomioimisesta. Saneerauksella pyritään pidentämään kiinteistön elinkaarta, parantamaan energiatehokkuutta ja nostamaan laatutasoa alkuperäistä paremmaksi. Korjausrakentamisessa syntyy uudisrakentamista vähäisemmät materiaalipäästöt, kun kiinteistön runkorakenteet säilytetään.
MaarinPortin modernit toimitilat ovat muunneltavia ja suunnitellaan yksilöllisesti vastaamaan yrityksesi tarpeita. Tulevalla asiakkaalla on mahdollisuus vaikuttaa toimitilaratkaisuihin ja materiaalivalintoihin, mikä tekee tiloista juuri sinun yrityksellesi sopivat.
Ota yhteyttä
Kiinnostuitko? Ota yhteyttä ja tule tutustumaan tiloihin! Toimitilavälityspalvelumme on tilanhakijalle maksuton.
MaarinPortti on pääkonttoritason toimistokohde, joka valmistuu täysin uudistettuna vuonna 2025. Tarjolla on itsenäinen toimistokokonaisuus, johon saa työpisteet jopa yli 400 henkilön organisaatiolle. Lisäksi käytössä on runsaat liiketoiminnan tukitilat katutasossa ja ylimmässä kerroksessa. Ota yhteyttä, niin kerromme lisää!
Espoon MaarinPortti – Monipuoliset ja mukautuvat toimitilat
MaarinPortti tarjoaa moderneja ja muunneltavia toimitiloja Pohjois-Tapiolassa, jotka suunnitellaan yksilöllisesti vastaamaan yrityksesi tarpeita. Toimistotiloja on tarjolla kokoluokissa 198 m² - 6180 m². Tulevalla asiakkaalla on mahdollisuus vaikuttaa oman toimistonsa lopullisiin materiaali- ja toimitilaratkaisuihin. Muutos on helppoa, sillä käytettävissä on tilasuunnittelijan palvelut, jotta yrityksesi tilaratkaisuista saadaan toimiva ja sujuva kokonaisuus.
Tervetuloa MaarinPorttiin – tulevaisuuden toimitiloihin, joissa yrityksesi voi kasvaa ja menestyä!
Sijainti
MaarinPortti sijaitsee Pohjois-Tapiolassa, Kehä I:n ja Tapiolan liittymän välittömässä läheisyydessä. Tämä 6-kerroksinen toimitilakiinteistö yhdistyy Otaniemen länsiosassa olevaan Maarin alueeseen Kehä I:n yli menevän Maarinsillan kautta. Alueen mittava täydennysrakentaminen ja raidejokeripysäkin valmistuminen tekevät siitä entistä monipuolisemman ja arvokkaamman osan kulttuuriympäristöä.
MaarinPorttiin on helppo saapua niin julkisilla kulkuvälineillä kuin autolla. Kiinteistön oma pysäköintihalli takaa vaivattoman pysäköinnin, ja uudistuksen yhteydessä sinne lisätään myös sähköautojen latauspisteitä. Kehä I:tä pitkin kulkevat lukuisat bussit, ja runkolinja 550 palvelee erityisen hyvin MaarinPorttiin saapuvia. Lähin metroasema, Aalto-yliopisto, on vain 15 minuutin kävelymatkan päässä. Tapiolan keskus ja Kauppakeskus Ainoan kattavat palvelut ovat noin 2 km päässä, ja merellinen Laajalahden luonnonsuojelualue sekä Espoon rantaraitti ovat vain 8 minuutin kävelymatkan päässä.
Palvelut
MaarinPortti tarjoaa laadukkaita palveluita, jotka tukevat yrityksesi toimintaa ja työntekijöiden hyvinvointia. Kiinteistössä on aulapalvelu, lounasravintola, catering, vuokrattavia neuvottelutiloja ja auditorio. 6. kerros voidaan keskittää täysin työhyvinvointia edistäville toiminnoille, kuten aktiivisuuteen ja liikuntaan. Kerroksessa on myös katettu näköalaterassi, joka tarjoaa upeat puitteet rentoutumiseen ja sosiaaliseen kanssakäymiseen.
Lähialueella on lisää palveluita: lounasravintoloita ja ruokakauppa, jotka lisäävät alueen viihtyisyyttä ja käytännöllisyyttä.
Vastuullisuus
MaarinPortti saneerataan vuosien 2024-2025 aikana, ja tavoitteena on saavuttaa LEED Platinum -tason ympäristösertifikaatti. Tämä on kansainvälisen LEED-sertifiointijärjestelmän korkein taso, joka kertoo erinomaisesta ympäristöasioiden huomioimisesta. Saneerauksella pyritään pidentämään kiinteistön elinkaarta, parantamaan energiatehokkuutta ja nostamaan laatutasoa alkuperäistä paremmaksi. Korjausrakentamisessa syntyy uudisrakentamista vähäisemmät materiaalipäästöt, kun kiinteistön runkorakenteet säilytetään.
MaarinPortin modernit toimitilat ovat muunneltavia ja suunnitellaan yksilöllisesti vastaamaan yrityksesi tarpeita. Tulevalla asiakkaalla on mahdollisuus vaikuttaa toimitilaratkaisuihin ja materiaalivalintoihin, mikä tekee tiloista juuri sinun yrityksellesi sopivat.
Ota yhteyttä
Kiinnostuitko? Ota yhteyttä ja tule tutustumaan tiloihin! Toimitilavälityspalvelumme on tilanhakijalle maksuton.
Vapautuu
Kysy
Kerros
1-6
Ota yhteyttä
LogisTila Oy
Kylätie 11-13, 00320 HELSINKI
Karoliina Turppo
Näytä puhelinnumero
050 345 3258
Pyydä lisätietoa
