Vuokrataan toimistotilat, varastotilat, muut tilat - Helsinki
Ruosilantie 14, Konala, 00390 Helsinki #10831392
Varasto- ja toimistotilan yhdistelmä Konalasta.
Osoite
Ruosilantie 14, 00390 Helsinki
Tilatyyppi
Toimistotilaa
218 m2
Varastotilaa
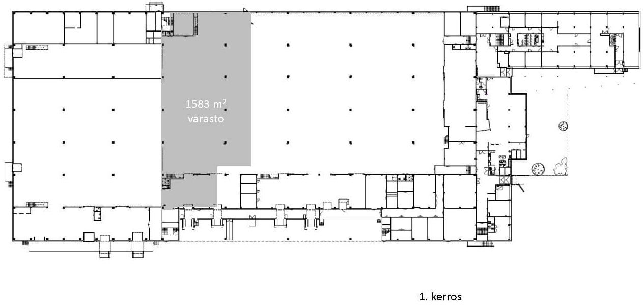
1583 m2
Muuta tilaa
422 m2
Yhteensä
2223 m2
Kiinteistö
Helsingin Konalasta, Ruosilantieltä on vapatumassa vuoden vaihteessa 25-26 yhteensä 2.223 m2:n kokonaisuus, josta 1.583 m2 on korkeaa tuotanto- ja varastotilaa, 422 m2 parvivarastotilaa ja toimistoa 218 m2.
Selkeään tuotanto- ja varastotilaan johtaa nosto-ovi lastauslaiturilta.
Kiinteistö on rakennettu vuonna 1971 ja peruskorjattu vuonna 2000-2001. Lämmitysmuotona on syksystä 2025 alkaen maalämpö ja kiinteistön katolla on aurinkopaneelit. Kiinteistön piha-alue on aidattu.
Selkeään tuotanto- ja varastotilaan johtaa nosto-ovi lastauslaiturilta.
Kiinteistö on rakennettu vuonna 1971 ja peruskorjattu vuonna 2000-2001. Lämmitysmuotona on syksystä 2025 alkaen maalämpö ja kiinteistön katolla on aurinkopaneelit. Kiinteistön piha-alue on aidattu.
Sijainti
Kiinteistö sijaitsee aivan Vihditien läheisyydessä. Vihdintien bussipysäkille on matkaa n. 400 m ja autolla ajaa sekä Kehä III:lta että Kehä I:ltä kohteelle noin viidessä minuutissa. Juna-asemalle (Malminkartano) on matkaa 1,3km.
Pysäköinti
Asfaltoidulla ja aidatulla piha-alueella on pysäköintitilaa, sekä sähköauton latauspisteitä.
Palvelut
Kiinteistöllä on lounasravintola. Kauppakeskus Ristikkoon on matkaa n. 850 m.
Kulkuyhteydet
Autolla ajaa kohteelle sekä Kehä I:ltä että Kehä III:lta noin viidessä minuutissa. Bussipysäkille on matkaa noin 400 m ja Malminkartanon juna-asema on noin 1,3 km päässä.
Muuta
Konala on aktiivinen yritysalue, josta on nopeat yhteydet Vihdintielle, Kehä I:n ja Kehä III:n liittymiin. Ota yhteyttä ja tule tutustumaan tähän toimivaan kokonaisuuteen.
Vapautuu
01.01.2026
Lastauslaituri
Ota yhteyttä
MAP Tilat Oy
Maarit Helander
Näytä puhelinnumero
044 593 8661
Energiakuja 3, 00180 Helsinki
Mika Hermaala
Näytä puhelinnumero
040 192 1313
Pyydä lisätietoa
