Vuokrataan toimistotilat - Espoo
Linnoitustie 3, Leppävaara, 02600 Espoo #10831290
Korkeatasoista toimistotilaa Leppävaarassa, Säteri Business Parkissa.
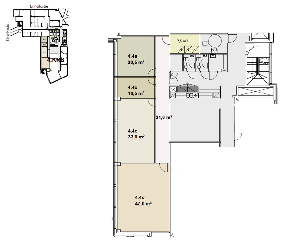
Vuokrattavana 30 m² - 50 m² kokoisia pientoimistotiloja kiinteistön 4. kerroksesta, pientoimistoalueelta. Keittiö-, wc- ja loungetilat ovat vuokralaisten yhteiskäytössä. Vuokraan sisältyy myös kuntosalin käyttöoikeus.
Säteri Business Park koostuu kahdesta toimistotalosta; Linnoituksesta ja Säteristä sekä maanalaisesta parkkihallikerroksesta. Kiinteistössä on tarjolla mm. aulapalvelu, ravintola, parturikampaamo sekä kuntosali saunatiloineen. Ylimmässä kerroksessa on myös viihtyisä terassialue sekä tapahtuma- ja kokoustila. Kiinteistöllä on hyvä sijainti Raide-Jokerin varrella, kävelyetäisyydellä kauppakeskus Sellosta.
Kysy lisää numerosta 044 723 4700 tai info@bref.fi. Palvelumme on tilanhakijoille ilmainen.
Hissi
Bureau Real Estate Finland Oy
Lars Sonckin kaari 16, 02600 Espoo
Näytä puhelinnumero
0447234700
Bureau Real Estate Finland Oy
https://www.bref.fi